Villa unique et prête à emménager à Roulers sur un terrain de 987 m²
8800 Roeselare—Réf. 7630008
Située dans un quartier calme et adapté aux enfants à Roulers, cette maison prête à emménager séduit par ses volumes généreux et son jardin ensoleillé avec piscine.
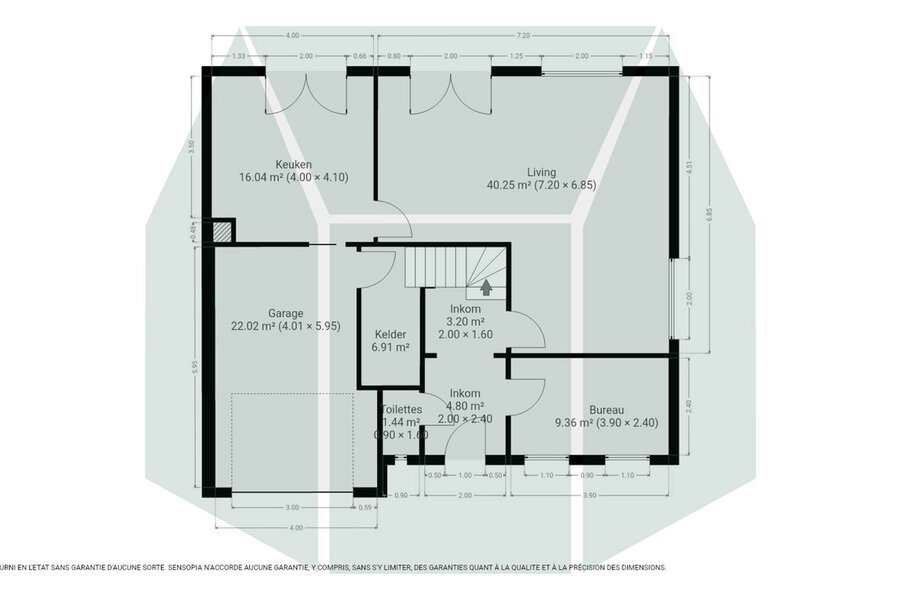
Au rez-de-chaussée, vous découvrirez un hall d’entrée donnant accès à un bureau séparé et à des toilettes indépendantes. Le séjour lumineux est doté d’une agréable cheminée au gaz et offre une vue sur le jardin orienté plein sud avec piscine, équipée d’un volet automatique, d’un éclairage et chauffée par une pompe à chaleur. La cuisine entièrement équipée dispose d’un élégant plan de travail en granit et communique avec le garage à porte automatique, où se trouvent également 2 panneaux solaires et 3 batteries domestiques. À l’extérieur, vous profiterez de deux terrasses carrelées et d’un jardin entièrement clôturé en bois, idéal pour la détente et l’intimité.
Au premier étage, le hall de nuit dessert quatre chambres ainsi qu’une salle de bains spacieuse et rénovée avec douche à l’italienne et lavabo.
La maison dispose d’un vide sanitaire et d’un grenier de rangement. En outre, elle bénéficie d’un certificat énergétique EPC C favorable, d’une installation électrique conforme et ne contient pas d’amiante, ce qui signifie qu’aucun travaux obligatoires ne sont à prévoir.
| ID de propriété | 7630008 |
|---|---|
| Prix demandé | € 679.000 |
| Type de maison | Villa |
| Surface habitable | 224 m² |
| Terrasopp. | - |
| Superficie du terrain | 987 m² |
| Année de construction | 1976 |
| Année de rénovation | - |
| Chambres à coucher | 5 |
| Salles de bains | 1 |
| Garages | - |
| Salles de douche | 1 |
| Revenu cadastral | € 1.093 |
|---|---|
| EPC | 207 kWh/m² |
| Code unique | - |
| Zone inondable | Non communiqué |
| Prescriptions urbanistiques | - |
| Permis de lotir | - |
| Occupation urbanistique | Zone d'habitat |
| Droit de préemption | Non |
| Assignation | - |
| Décision judiciaire | - |
Immo Emeraude Kortrijk Brugsesteenweg 95-97, 8500 Courtrai
- Téléphone:+32.56.94.29.42
- Courriel:info.emeraude@dlgroupe.com
- Site web:www.immo-emeraude.com


























