PAAL - Ruime langgevelhoeve op landelijke, centrale locatie
Maalbeekstraat 100, 3583 Paal—Réf. # 7598813
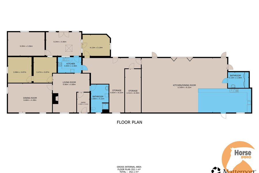
PAAL - Ruime langgevelhoeve op een zeer landelijke, doch centrale locatie.
De eigendom omslaat maar liefst 5ha28ca en meet 125m aan de straat.
Deze hoeve heeft een voorgevel van maar liefst 37m en is momenteel aan de linkerzijde ingericht als een woonhuis en aan de rechterzijde bestaat ze uit een grote inpandige schuur waar op vandaag een pop-up fietscafé 'De Merelhoeve' gevestigd is.
Deze ruimte is ideaal voor het inrichten van een kantoorruimte, B&B, kangoeroewoning,...
De hoeve is te renoveren doch werd het schrijnwerk reeds vernieuwd en is het dak in goede staat. Het gaat dus voornamelijk over een totale herinrichting waarbij men tot 1.000m³ mag voorzien als woning.
Er is een oude stenen stal aan de linkerzijde van de hoeve en 2 houten stalgebouwen achter de hoeve.
Vraagprijs : 1.045.000 euro (voor het perceel op 5a28a)
Ideaal voor wie op zoek is naar hoeve om naar zijn hand te zetten op een TOPlocatie met uitzicht op 5ha eigen weiland.
De eigendom omslaat maar liefst 5ha28ca en meet 125m aan de straat.
Deze hoeve heeft een voorgevel van maar liefst 37m en is momenteel aan de linkerzijde ingericht als een woonhuis en aan de rechterzijde bestaat ze uit een grote inpandige schuur waar op vandaag een pop-up fietscafé 'De Merelhoeve' gevestigd is.
Deze ruimte is ideaal voor het inrichten van een kantoorruimte, B&B, kangoeroewoning,...
De hoeve is te renoveren doch werd het schrijnwerk reeds vernieuwd en is het dak in goede staat. Het gaat dus voornamelijk over een totale herinrichting waarbij men tot 1.000m³ mag voorzien als woning.
Er is een oude stenen stal aan de linkerzijde van de hoeve en 2 houten stalgebouwen achter de hoeve.
Vraagprijs : 1.045.000 euro (voor het perceel op 5a28a)
Ideaal voor wie op zoek is naar hoeve om naar zijn hand te zetten op een TOPlocatie met uitzicht op 5ha eigen weiland.
| ID de propriété | # 7598813 |
|---|---|
| Prix demandé | € 1.045.000 |
| Type de maison | Villa |
| Surface habitable | 350 m² |
| Terrasopp. | - |
| Superficie du terrain | 52.850 m² |
| Année de construction | 1800 |
| Année de rénovation | 1984 |
| Chambres à coucher | 1 |
| Salles de bains | 1 |
| Garages | 1 |
| Salles de douche | - |
| Revenu cadastral | € 1.280 |
|---|---|
| EPC | 489 kWh/m² |
| Code unique | 20260329-0003835550-RES-1 |
| Zone inondable | Non situé dans une zone sensible |
| Prescriptions urbanistiques | Oui |
| Permis de lotir | Non |
| Occupation urbanistique | Zone agricole à valeur paysagère |
| Droit de préemption | Non |
| Assignation | Non |
| Décision judiciaire | - |
Horse Immo Hoogstraat 20, 9340 Lede
- Téléphone:+32.53.60.65.66
- Courriel:info@horse-immo.be
- Site web:www.horse-immo.be


























