Terrain à batir de 1050 m² avec maison 4 façades sur mesure
Geraardsbergse steenweg 256, 9860 Oosterzele—Réf. 6884369
Dans la région rurale d’Oosterzele, Unicas offre une opportunité unique : la combinaison des lots 3 et 4 en une maison de type sur un terrain de plus de 1 050 m². Une formule parfaite pour ceux qui recherchent plus d'espace, une liberté d'aménagement et une maison économe en énergie, construite avec des matériaux durables.
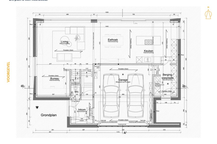
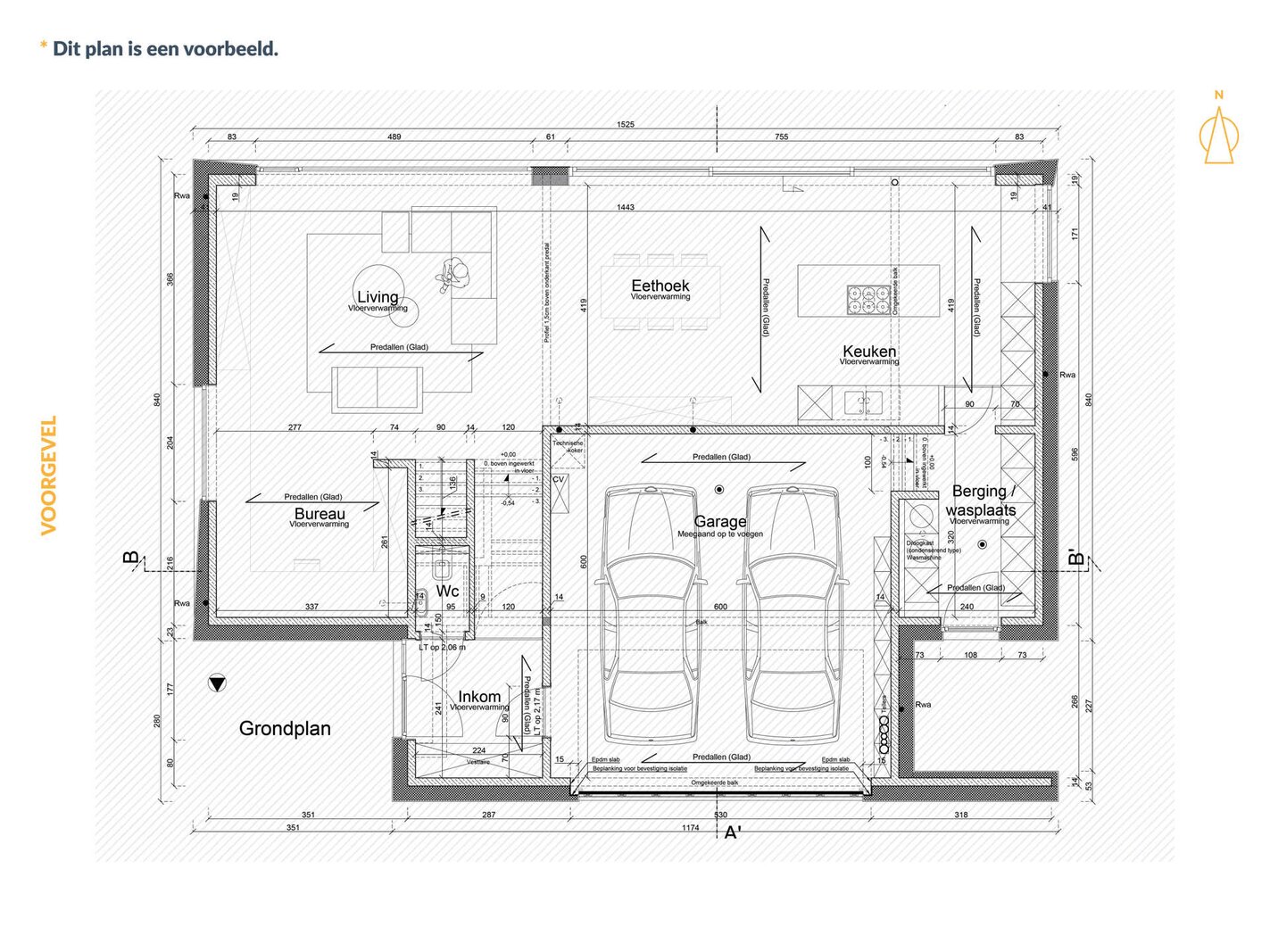
La maison proposée est un exemple de ce qui est possible sur ce terrain et a une surface habitable de 200 m². Vous profiterez d'une conception bien pensée avec de grandes fenêtres, beaucoup de lumière et une disposition confortable sur deux étages. Au rez-de-chaussée, vous trouverez une cuisine ouverte, une salle à manger, un coin salon confortable, un bureau spacieux, une buanderie/rangement pratique, des toilettes séparées pour les invités et un garage intérieur pouvant accueillir deux voitures.
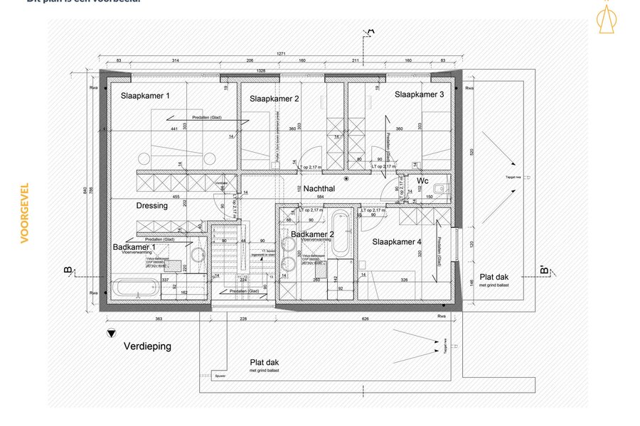
À l'étage, vous trouverez 4 chambres de taille normale, dont une chambre principale avec dressing et salle de bains en suite. Il y a également une deuxième salle de bains et des toilettes supplémentaires à l'étage.
En tant qu'acheteur, vous pouvez choisir la finition et l'agencement, dans la limite des possibilités techniques. La pompe à chaleur, le chauffage par le sol, la ventilation équilibrée et les panneaux solaires garantissent également une faible consommation d'énergie et un confort de vie moderne.
Curieux de découvrir les possibilités ? Contactez-nous au 0488 300 301 ou à l’adresse info@unicas.be.
La maison proposée est un exemple de ce qui est possible sur ce terrain et a une surface habitable de 200 m². Vous profiterez d'une conception bien pensée avec de grandes fenêtres, beaucoup de lumière et une disposition confortable sur deux étages. Au rez-de-chaussée, vous trouverez une cuisine ouverte, une salle à manger, un coin salon confortable, un bureau spacieux, une buanderie/rangement pratique, des toilettes séparées pour les invités et un garage intérieur pouvant accueillir deux voitures.
À l'étage, vous trouverez 4 chambres de taille normale, dont une chambre principale avec dressing et salle de bains en suite. Il y a également une deuxième salle de bains et des toilettes supplémentaires à l'étage.
En tant qu'acheteur, vous pouvez choisir la finition et l'agencement, dans la limite des possibilités techniques. La pompe à chaleur, le chauffage par le sol, la ventilation équilibrée et les panneaux solaires garantissent également une faible consommation d'énergie et un confort de vie moderne.
Curieux de découvrir les possibilités ? Contactez-nous au 0488 300 301 ou à l’adresse info@unicas.be.
| ID de propriété | 6884369 |
|---|---|
| Prix demandé | € 921.922 |
| Type de maison | Villa |
| Surface habitable | 200 m² |
| Terrasopp. | - |
| Superficie du terrain | 1.050 m² |
| Année de construction | - |
| Année de rénovation | - |
| Chambres à coucher | 4 |
| Salles de bains | 2 |
| Garages | 2 |
| Salles de douche | - |
| Revenu cadastral | - |
|---|---|
| EPC | - |
| Code unique | - |
| Zone inondable | Non communiqué |
| Prescriptions urbanistiques | - |
| Permis de lotir | Oui |
| Occupation urbanistique | Autre |
| Droit de préemption | - |
| Assignation | - |
| Décision judiciaire | - |
Unicas Kerkstraat 38, 1755 Gooik
- Téléphone:+32.488.30.03.01
- Courriel:info@unicas.be
- Site web:www.unicas.be
Agence












