Charmante herenwoning met 7 slaapkamers! Veldstraat 14, 9100 Sint-Niklaas
Ref. 1469947

ERA Wonen
Vraagprijs€ 549.000
Perceelopp.158 m²
Woonopp.278 m²

Contacteer ERA Wonen

[[ DIT PAND NEEMT DEEL AAN DE ERA OPEN HUIZEN DAG OP 14/3 VAN 11:00 TOT 12:00 ]] eze prachtige herenwoning ademt karakter en biedt tegelijk het comfort van vandaag. Met haar authentieke elementen zoals hoge plafonds, grote ruimtes en stijlvolle details, vormt ze een unieke combinatie van charme, ruimte en modern wooncomfort.

Kelder: In de kelder bevindt zich een handige bergkelder, ideaal als wijnkelder of extra opbergruimte.
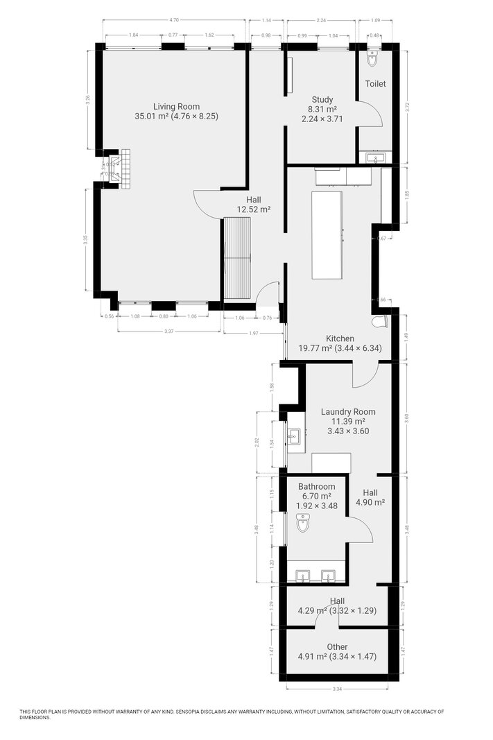
GLV:  Op het gelijkvloers verwelkomt de riante inkomhal (13m²) je in stijl. Aan de linkerzijde bevindt zich een praktische bureauruimte (6m²) met bijhorend toilet (4m²) — perfect voor wie een thuisbureau of zelfstandige activiteit wenst. Aan de rechterzijde vinden we de ruime en lichtrijke leefruimte (35m²) met gezellige open haard, gevolgd door de keuken(20m²) uitgerust met ingemaakte kasten, oven, ingebouwde koffiezet en gasfornuis. Naast de keuken bevindt zich een wasplaats (11m²), een hal (9m²) en de eerste badkamer (7m²) met inloopdouche, wastafel en apart toilet. Achteraan kan eenvoudig een aangename stadstuin gecreëerd worden, en via deze tuin bereik je de garage( 28m²) met automatische poort.
1steV: De eerste verdieping biedt een ruime nachthal, drie slaapkamers (23-15-14m²) en een riante tweede badkamer (18m²) met luxueuze afwerking: een apart toilet, ruim ligbad en inloopdouche. Daarnaast is er een handige bureauruimte van 3 m².
2deV: De tweede verdieping is volledig omgevormd tot een volwaardige woonlaag met nachthal (4m²) en vier extra slaapkamers van respectievelijk 18 m², 17 m², 16 m² en 14 m².

Vastgoed ID1469947
Vraagprijs€ 549.000
WoningtypeVilla
Woonopp.278 m²
Terrasopp. -
Perceelopp.158 m²
Bouwjaar1937
Renovatiejaar -
Slaapkamers7
Badkamers2
Garages1
Douchekamers -

Kadastraal Inkomen€ 1.001
EPC270 kWh/m²
Unieke code-
OverstromingsgebiedNiet gelegen in gevoelig gebied
Stedenbouwkundige vergunning-
Verkavelingsvergunning Nee
Stedenbouwkundige bestemming Woongebied
Voorkooprecht Nee
Dagvaarding Nee
Rechterlijke beslissing-

ERA Wonen Gentse Baan  45A, 9100 Sint-Niklaas

  • Maandag - VrijdagOpen van 09.00 - 12.00 – 13.00 - 18.00
  • Zaterdag Enkel op afspraak
  • Zondag Gesloten

Contacteer ERA Wonen