Herenhuis met Receptiezalen
7503 Tournai Froyennes—Ref. 7183521
Wij nodigen u uit om dit prachtige herenhuis met ontvangstzalen van meer dan 600m² te ontdekken, gelegen in de buitenwijken van Doornik, waar charme, authenticiteit en royale volumes de sleutelwoorden zijn.
Het pand bestaat onder meer uit:
Een zaal van 90m² met toegang tot buiten
Een zaal van 60m²
Een ontvangstruimte van 50m² met bar
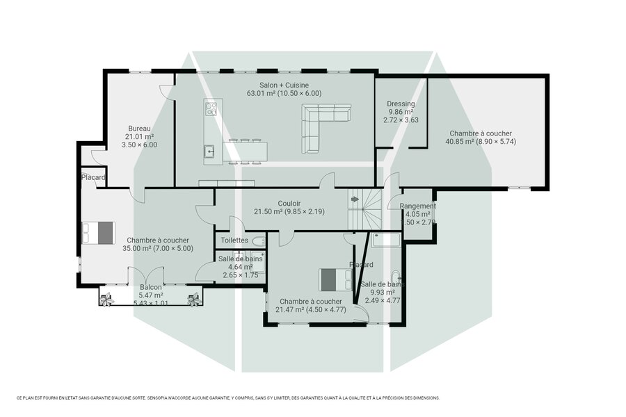
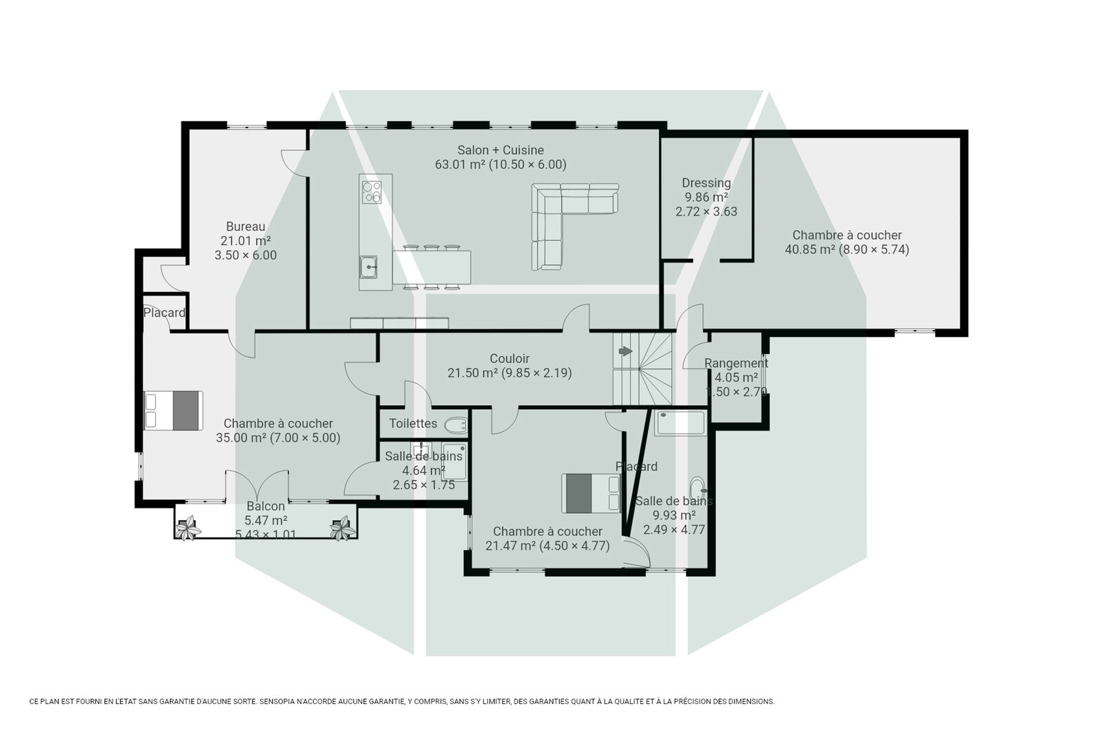
5 slaapkamers en 3 badkamers
Een woonkamer van 60m²
De begane grond bestaat uit een marmeren inkomhal die toegang geeft tot de zalen en de woonruimtes op de verdieping.
De drie zalen van 90m², 60m² en 50m², evenals de bar, werden volledig gerenoveerd in 2023. Een professionele keuken is ideaal geplaatst om de ruimtes te bedienen. Aparte dames- en herentoiletten vervolledigen dit niveau.
De eerste verdieping beschikt over een ruime woonkamer van 60m² met open keuken, een bureau, twee slaapkamers en twee badkamers.
De tweede verdieping, ingericht in 2021, omvat een nachthal met zithoek, twee slaapkamers en een douchekamer.
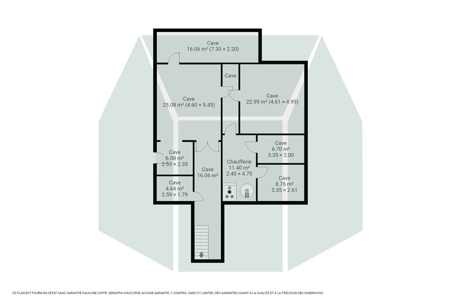
De kelderverdieping is verdeeld in verschillende kelders met een totale oppervlakte van 120m².
Buiten: Aangelegde en omheinde tuin, 2 ingerichte terrassen, eeuwenoude boom, privéparking, automatische poort met laadpalen voor elektrische voertuigen.
Kenmerken: 14 fotovoltaïsche panelen, aluminium/houten ramen met dubbele beglazing, centrale verwarming op stookolie, conforme elektriciteit.
De mogelijkheden zijn talrijk: zaalverhuur voor privé- en professionele evenementen, restaurant, kantoren, maatschappelijke zetel, coworkingruimte, gastenkamers…
Bent u op zoek naar een pand met een uniek potentieel, dichtbij de grote invalswegen en de stad, en houdt u van charme en authenticiteit? Wacht dan niet langer en contacteer ons voor een bezoek aan dit juweeltje, verscholen in een tuin met eeuwenoude bomen.
De prijs is als volgt samengesteld:
Vastgoed: €1.200.000
Handelsfonds: €200.000
Deze advertentie is niet contractueel en vormt geen aanbod. De eigenaars behouden zich het recht voor om te beslissen over de aanvaarding of niet van elk bod dat voor hun eigendom wordt ingediend.
| Vastgoed ID | 7183521 |
|---|---|
| Vraagprijs | € 1.400.000 |
| Woningtype | Villa |
| Woonopp. | 735 m² |
| Terrasopp. | 100 m² |
| Perceelopp. | 1.767 m² |
| Bouwjaar | - |
| Renovatiejaar | - |
| Slaapkamers | 5 |
| Badkamers | 3 |
| Garages | - |
| Douchekamers | - |
| Kadastraal Inkomen | € 1.789 |
|---|---|
| EPC | 268 kWh/m² |
| Unieke code | 20210906001872 |
| Overstromingsgebied | Niet medegedeeld |
| Stedenbouwkundige vergunning | - |
| Verkavelingsvergunning | - |
| Stedenbouwkundige bestemming | Andere |
| Voorkooprecht | - |
| Dagvaarding | - |
| Rechterlijke beslissing | - |
Immo Emeraude Tournai Boulevard du Roi Albert 44, 7500 Doornik
- Telefoon:+32.69.64.69.64
- Email:info.emeraude@dlgroupe.com
- Website:www.immo-emeraude.com
- Maandag - DonderdagOpen van 09.00 - 12.00 – 13.30 - 18.30
- Vrijdag Open van 09.00 - 12.00 – 13.30 - 18.00
- Zaterdag Open van 09.00 - 12.00
- Zondag Gesloten
Makelaar











































