Villa met 1000 m² tuin, 5 slpkmrs en zonnepanelen
Dreefstraat 30, 9552 Herzele—Ref. 1438882
Deze woning beschikt over 5 slaapkamers, waarvan één momenteel als bureau wordt gebruikt. De volledig uitgeruste open keuken sluit mooi aan op de lichtrijke leefruimte, waar grote ramen, screens, rolluiken en een pelletkachel zorgen voor optimaal wooncomfort.
Daarnaast biedt de woning een grote garage, carport en dubbele oprit. Er zijn 30 zonnepanelen aanwezig, evenals twee badkamers, een aparte dressing en een kruipzolder. Buiten geniet u van een ruim tuinhuis, twee terrassen en een uitgestrekte tuin van 1000 m².
De woning ligt in een rustige, groene en kindvriendelijke straat met veel privacy, terwijl winkels, scholen en openbaar vervoer op wandelafstand te bereiken zijn. Dankzij de nabijheid van de N42 en de centrale ligging tussen Aalst, Gent en Brussel geniet u van een uitstekende bereikbaarheid.
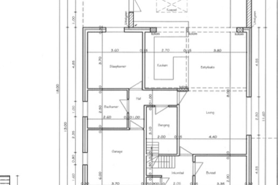
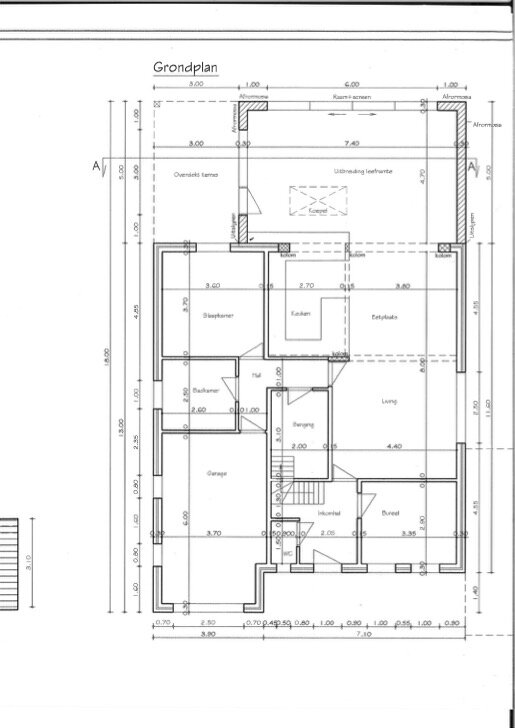
Indeling:
-1ste V: Inkomhal 8 m², apart toilet 1 m², bureau 9 m², garage 22 m², living met open keuken 80 m², slaapkamer 14 m², dressing 6 m², badkamer 6 m².
-2de V: 3 slaapkamers (13 m², 13 m², 12 m²), badkamer 9 m², berging 7 m² en kruipzolder.
Wenst u een bezoek? Contacteer ons gerust voor een afspraak.
| Vastgoed ID | 1438882 |
|---|---|
| Vraagprijs | € 599.000 |
| Woningtype | Villa |
| Woonopp. | 240 m² |
| Terrasopp. | - |
| Perceelopp. | 1.498 m² |
| Bouwjaar | 1990 |
| Renovatiejaar | - |
| Slaapkamers | 4 |
| Badkamers | 2 |
| Garages | 1 |
| Douchekamers | - |
| Kadastraal Inkomen | € 1.041 |
|---|---|
| EPC | 341 kWh/m² |
| Unieke code | 20250320-0003558406-RES-1 |
| Overstromingsgebied | Niet gelegen in gevoelig gebied |
| Stedenbouwkundige vergunning | - |
| Verkavelingsvergunning | Nee |
| Stedenbouwkundige bestemming | Woongebied |
| Voorkooprecht | Nee |
| Dagvaarding | - |
| Rechterlijke beslissing | - |
ERA Wonen Gentse Baan 45A, 9100 Sint-Niklaas
- Telefoon:+32.3.296.37.69
- Email:wonen@era.be
- Website:www.era.be/nl/era-wonen
- Maandag - VrijdagOpen van 09.00 - 12.00 – 13.00 - 18.00
- Zaterdag Enkel op afspraak
- Zondag Gesloten




































