Laatste luxueuze nieuwbouwvilla met uniek groen zicht
Kraaienbroekstraat , 1700 Dilbeek—Ref. 6990044
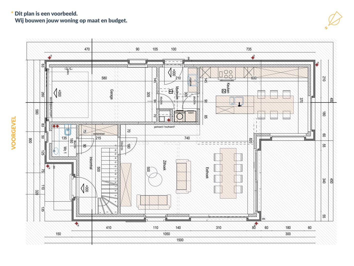
Dit nieuwbouwproject heeft omwille van zijn ligging alle troeven in handen om als jouw ideale thuisbasis te fungeren. Alle invalswegen naar Brussel en andere grote stedelijke centra liggen in de nabijheid. Deze ruime nieuwbouwwoning in het project Kraaienbroekveld combineert een doordachte indeling met een stijlvolle architectuur. Op het gelijkvloers bevindt zich een royale inkomhal met gastentoilet, een inpandige garage, een praktische wasplaats/berging en een open leefruimte met keuken, eetruimte en zithoek. De keuken en eethoek genieten van een mooi zicht op de tuin.
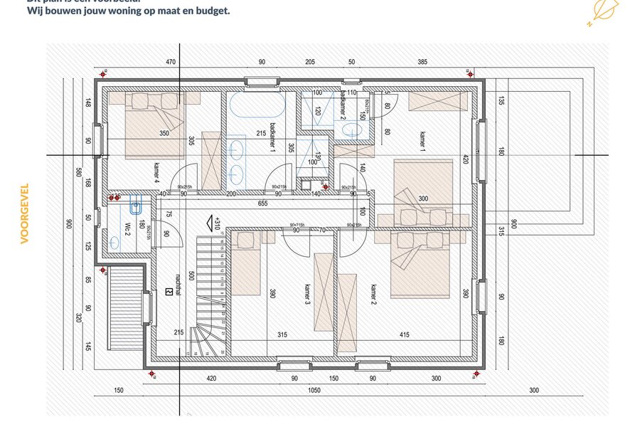
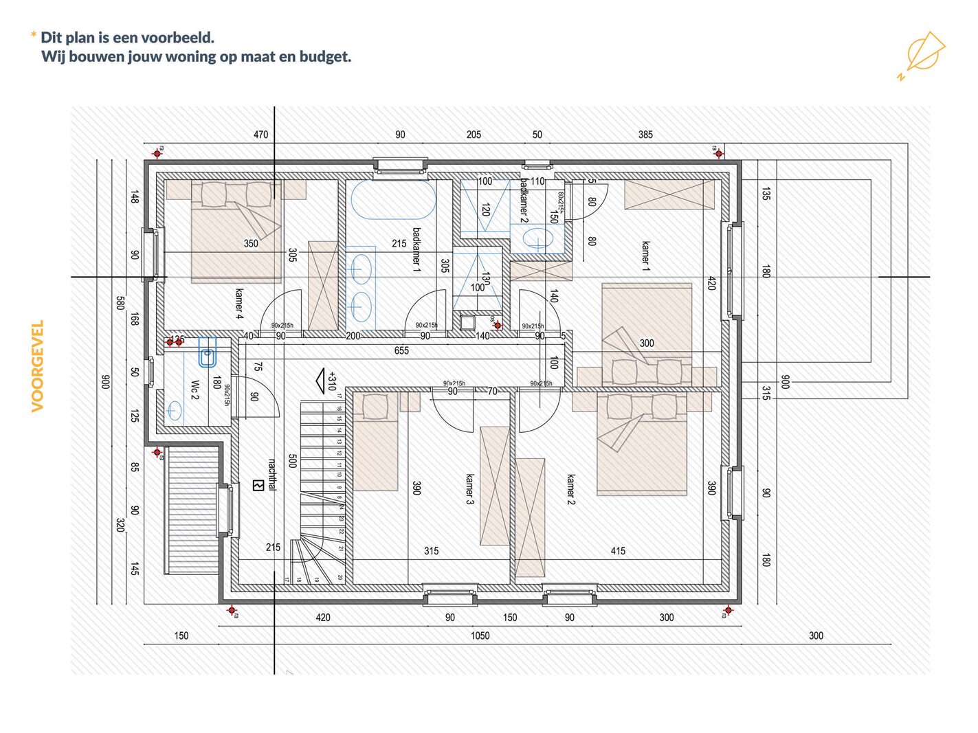
De eerste verdieping telt vier volwaardige slaapkamers, een aparte douchekamer, een ruime badkamer met bad, douche en dubbele lavabo, en een afzonderlijk toilet op de nachthal.
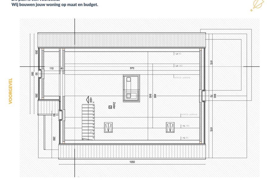
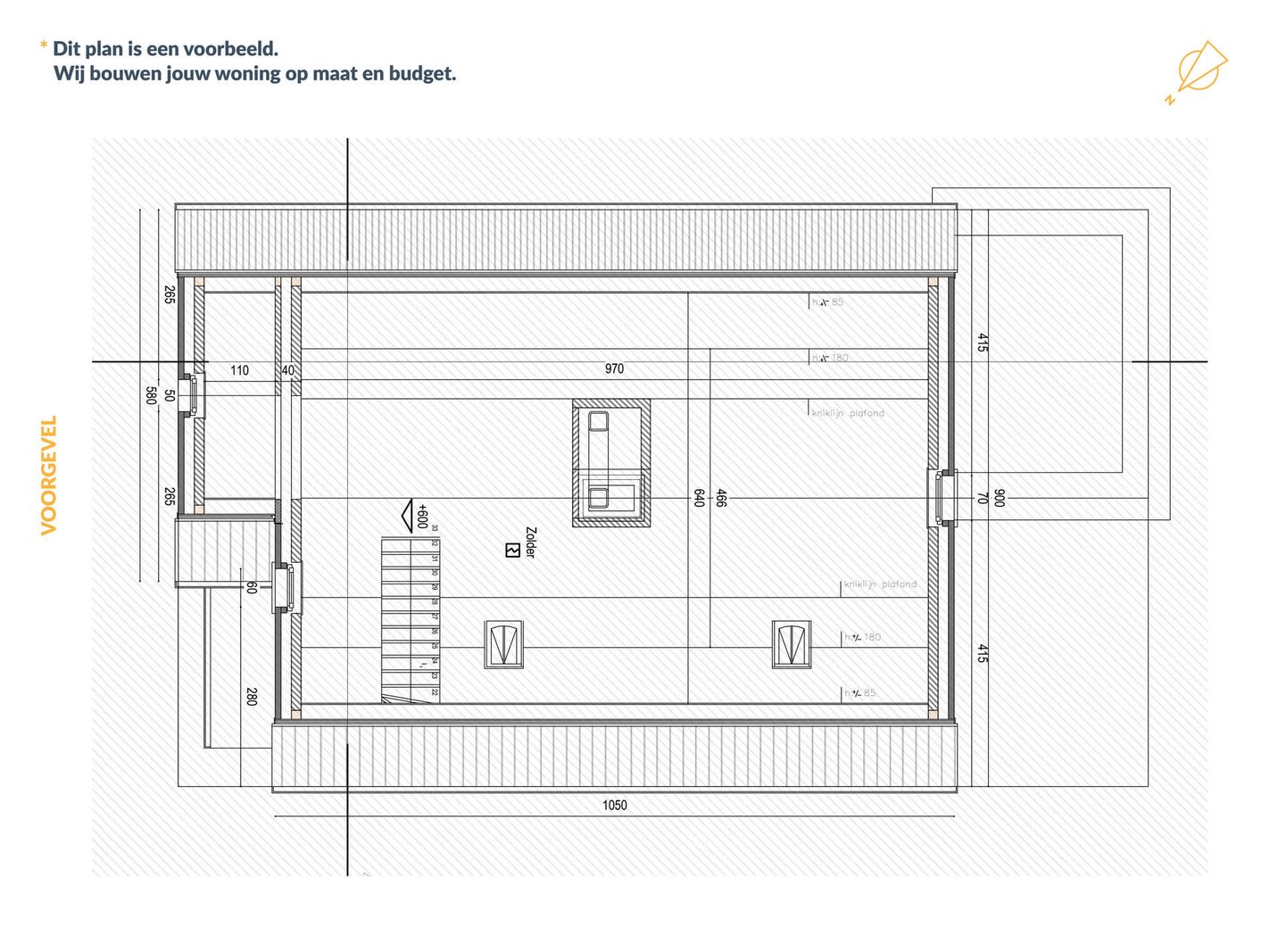
Via een vaste trap bereik je de zolderverdieping van 54,6 m² die nog volledig naar wens kan worden ingericht als extra kamer, bureau of hobbyruimte.
Een woning met veel potentieel in een harmonieus en stijlvol nieuwbouwproject in het groene Dilbeek. Met ruime budgetten voor afwerking en de nieuwste technieken zoals geothermie, is deze woning een ideale combinatie van luxe, esthetiek en duurzaamheid in een rustige en goed gelegen buurt in Dilbeek. De vraagprijs voor dit getekend plan is €920.710 excl. btw & kosten.
De eerste verdieping telt vier volwaardige slaapkamers, een aparte douchekamer, een ruime badkamer met bad, douche en dubbele lavabo, en een afzonderlijk toilet op de nachthal.
Via een vaste trap bereik je de zolderverdieping van 54,6 m² die nog volledig naar wens kan worden ingericht als extra kamer, bureau of hobbyruimte.
Een woning met veel potentieel in een harmonieus en stijlvol nieuwbouwproject in het groene Dilbeek. Met ruime budgetten voor afwerking en de nieuwste technieken zoals geothermie, is deze woning een ideale combinatie van luxe, esthetiek en duurzaamheid in een rustige en goed gelegen buurt in Dilbeek. De vraagprijs voor dit getekend plan is €920.710 excl. btw & kosten.
| Vastgoed ID | 6990044 |
|---|---|
| Vraagprijs | € 920.710 |
| Woningtype | Villa |
| Woonopp. | 275 m² |
| Terrasopp. | - |
| Perceelopp. | 669 m² |
| Bouwjaar | - |
| Renovatiejaar | - |
| Slaapkamers | 4 |
| Badkamers | 2 |
| Garages | 1 |
| Douchekamers | 2 |
| Kadastraal Inkomen | - |
|---|---|
| EPC | - |
| Unieke code | - |
| Overstromingsgebied | Niet gelegen in gevoelig gebied |
| Stedenbouwkundige vergunning | - |
| Verkavelingsvergunning | Ja |
| Stedenbouwkundige bestemming | Andere |
| Voorkooprecht | - |
| Dagvaarding | - |
| Rechterlijke beslissing | - |
Unicas Kerkstraat 38, 1755 Gooik
- Telefoon:+32.488.30.03.01
- Email:info@unicas.be
- Website:www.unicas.be















