Unieke eigendom met woning & bijgebouw in Sint-Michiels
Veldstraat 69, 8200 Sint Michiels—Réf. 7578
Ontdek deze unieke en idyllische eigendom in de Veldstraat, waar karakter, ruimte en veelzijdigheid naadloos samenkomen.
De eigendom omvat twee volwaardige entiteiten: een charmante gezinswoning vooraan en een ruim, volledig ingericht bijgebouw achteraan de tuin. Ideaal voor wie wonen en werken wil combineren, een kangoeroewoning zoekt of extra rendement wenst.
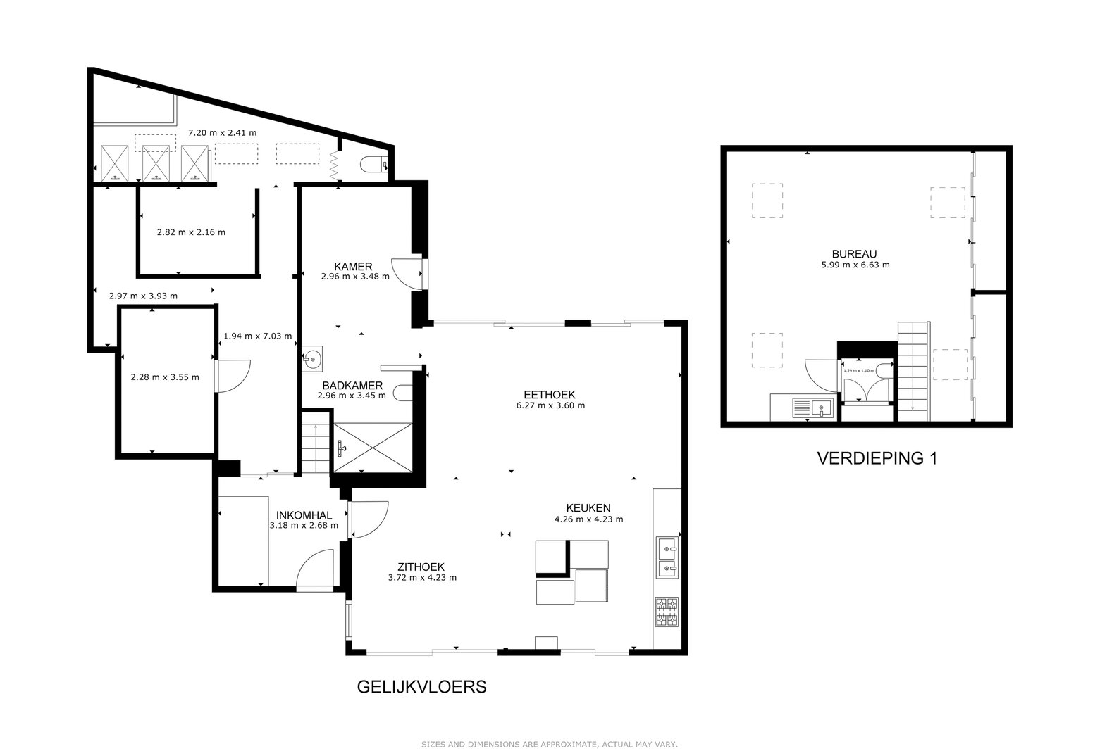
De hoofdwoning verwelkomt u via een ruime inkomhal met gastentoilet en leidt naar de lichtrijke leefruimte met open keuken, volledig gericht naar de zonnige tuin. Verder beschikt u over een authentieke badkamer/wasruimte en een bureau. Op de eerste verdieping bevinden zich twee ruime slaapkamers en een badkamer, terwijl de zolder een polyvalente ruimte of bijzondere kinderkamer biedt.
Achteraan de tuin bevindt zich het absolute surplus: een bijgebouw met leefruimte, slaapkamer, badkamer, kantoorinrichting, wellness (spa & sauna) én een afgesloten garage.
Technisch is de eigendom asbestveilig, met aandachtspunten op elektrisch vlak, wat ruimte biedt tot verdere optimalisatie.
Een eigendom die u niet enkel bekijkt, maar ervaart. Zeldzame kans op topligging.
Interesse?
| ID de propriété | 7578 |
|---|---|
| Prix demandé | € 940.000 |
| Type de maison | Villa |
| Surface habitable | 411 m² |
| Terrasopp. | 20 m² |
| Superficie du terrain | 821 m² |
| Année de construction | 1935 |
| Année de rénovation | - |
| Chambres à coucher | 4 |
| Salles de bains | 2 |
| Garages | - |
| Salles de douche | - |
| Revenu cadastral | € 1.229 |
|---|---|
| EPC | 385 kWh/m² |
| Code unique | 20260318-0003786150-RES-2 |
| Zone inondable | Non situé dans une zone sensible |
| Prescriptions urbanistiques | - |
| Permis de lotir | - |
| Occupation urbanistique | Autre |
| Droit de préemption | Non |
| Assignation | Non |
| Décision judiciaire | Non |
Altro Brugge Koning Albert I-laan 207, 8200 Brugge
- Téléphone:+32.50.22.33.44
- Courriel:info@altro-vastgoed.be
- Site web:www.altro-vastgoed.be




























