Villa de 3 chambres prête à emménager à vendre à Meise.
Jan Hammeneckerstraat 28, 1861 Meise—Réf. 1487210
À vendre à Meise : maison individuelle prête à emménager, avec un accès rapide à Anvers et Bruxelles.
Cette villa spacieuse et moderne est située sur un terrain de 612 m². Toutes les commodités, telles que les commerces, les écoles et les transports en commun, se trouvent à proximité immédiate. L'autoroute vous permet de rejoindre facilement Bruxelles et Anvers. D'autres villages tels que Londerzeel, Kapelle-op-den-Bos et Grimbergen sont très facilement accessibles. Le jardin est entièrement clos et orienté à l'ouest, ce qui vous permet de profiter longtemps du soleil couchant l'après-midi.
Pièces principales :
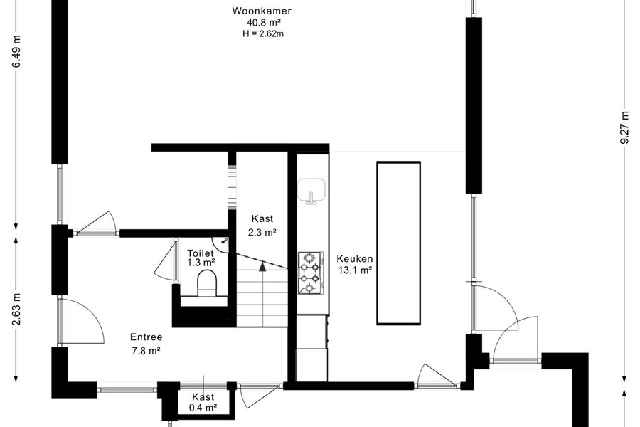
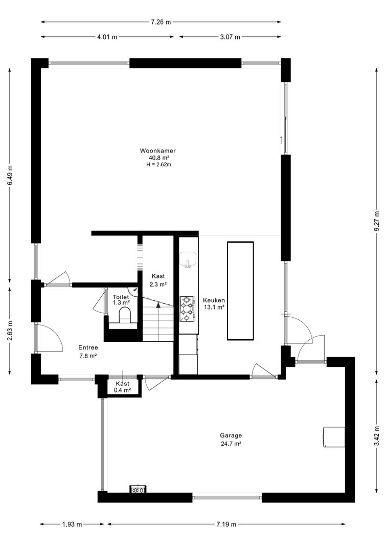
• Grand salon (40 m²) très lumineux.
• Cuisine entièrement équipée (13 m²) avec coin repas et appareils électroménagers modernes.
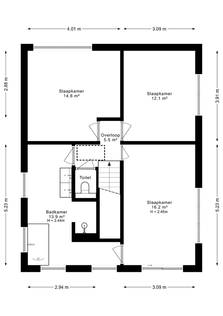
• Trois chambres (12 m², 15 m², 16 m²).
• Salle de bains (14 m²) avec baignoire, douche à l'italienne et double lavabo.
• Garage (25 m²) avec porte sectionnelle automatique.
• Grenier (10 m²) accessible par une échelle escamotable.
• Grande terrasse et maison fermée.
Atouts :
• Maison prête à emménager avec 3 chambres.
• Situation centrale à proximité des écoles, des commerces et des transports en commun, avec une bonne desserte vers Anvers et Bruxelles.
• Bonne note EPC (B) et certificat d'électricité conforme.
Vous souhaitez visiter ? Contactez ERA LEUS & TOYE au 02/335.11.12 et prenez rendez-vous avec Thierry Van Campenhout.
| ID de propriété | 1487210 |
|---|---|
| Prix demandé | € 675.000 |
| Type de maison | Villa |
| Surface habitable | 172 m² |
| Terrasopp. | - |
| Superficie du terrain | 612 m² |
| Année de construction | 2010 |
| Année de rénovation | - |
| Chambres à coucher | 3 |
| Salles de bains | 1 |
| Garages | 1 |
| Salles de douche | - |
| Revenu cadastral | € 1.369 |
|---|---|
| EPC | 139 kWh/m² |
| Code unique | 20230802-0002956627-RES-1 |
| Zone inondable | Non situé dans une zone sensible |
| Prescriptions urbanistiques | Oui |
| Permis de lotir | Non |
| Occupation urbanistique | Zone d'habitat |
| Droit de préemption | Non |
| Assignation | Non |
| Décision judiciaire | - |
ERA Leus & Toye Parklaan 28, 1930 Zaventem
- Téléphone:+32.2.725.20.02
- Courriel:leus@era.be
- Site web:www.era.be/nl/era-leus-vastgoed
























