Villa de luxe avec vue verdoyante dans une rue sans issue
Kraaienbroekstraat , 1700 Dilbeek—Réf. 7627612
Découvrez le dernier lot disponible dans le charmant projet résidentiel à Dilbeek. Cette villa 4 façades combine une disposition réfléchie avec une situation calme dans une rue sans issue et un jardin orienté sud-ouest.
La maison est conçue dans un style architectural classique en parfaite harmonie avec l’ensemble du quartier. Dans ce cadre, vous avez encore la liberté de choisir les finitions de façade et les matériaux.
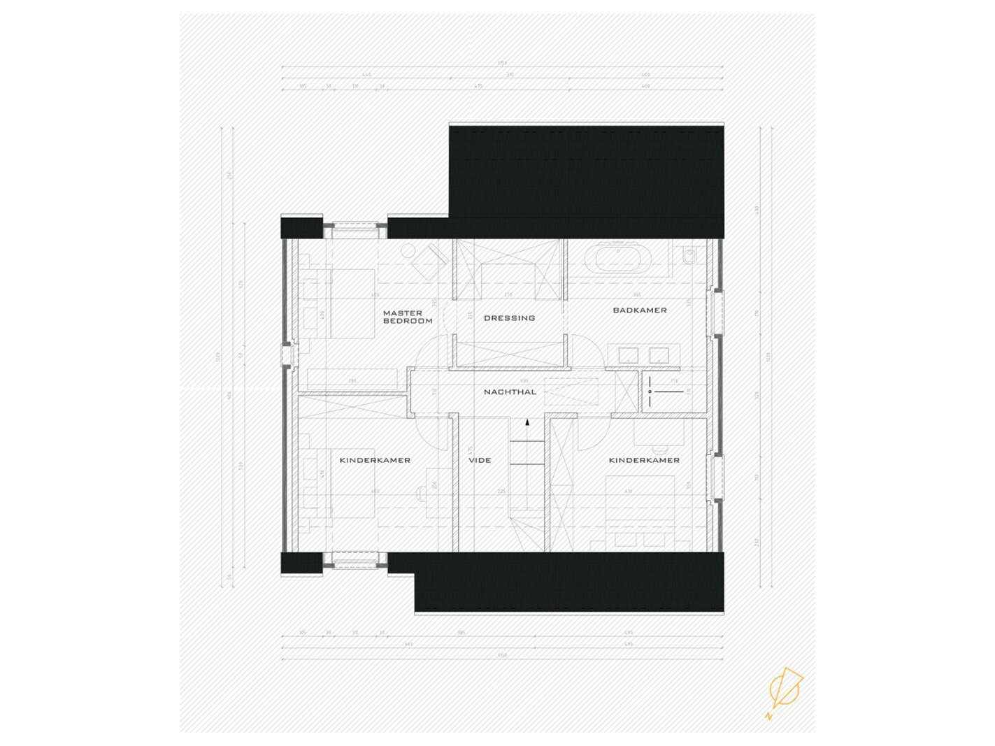
Le rez-de-chaussée prévoit un hall d’entrée avec toilette invités, un bureau séparé, un espace de vie lumineux avec salon et salle à manger, ainsi qu’une cuisine ouverte avec vue sur le jardin. Vous disposez également d’un garage intégré offrant suffisamment d’espace pour une voiture ainsi qu’un espace de rangement pratique. À l’étage, vous trouverez trois chambres spacieuses, dont une suite parentale avec dressing, ainsi qu’une salle de bains équipée d’une double vasque, d’une douche et d’une baignoire. Un espace ouvert dans le hall de nuit apporte davantage de luminosité et une sensation d’espace. Le grenier offre encore de nombreuses possibilités et peut être aménagé selon vos besoins en chambres supplémentaires, espace hobby ou bureau.
Cette maison est proposée sur plan à un prix indicatif, mais peut encore être entièrement adaptée à vos souhaits. Vous préférez un espace de vie plus grand à la place du garage ou une autre configuration ? Nous réalisons votre habitation sur mesure. Contactez-nous pour découvrir les possibilités.
La maison est conçue dans un style architectural classique en parfaite harmonie avec l’ensemble du quartier. Dans ce cadre, vous avez encore la liberté de choisir les finitions de façade et les matériaux.
Le rez-de-chaussée prévoit un hall d’entrée avec toilette invités, un bureau séparé, un espace de vie lumineux avec salon et salle à manger, ainsi qu’une cuisine ouverte avec vue sur le jardin. Vous disposez également d’un garage intégré offrant suffisamment d’espace pour une voiture ainsi qu’un espace de rangement pratique. À l’étage, vous trouverez trois chambres spacieuses, dont une suite parentale avec dressing, ainsi qu’une salle de bains équipée d’une double vasque, d’une douche et d’une baignoire. Un espace ouvert dans le hall de nuit apporte davantage de luminosité et une sensation d’espace. Le grenier offre encore de nombreuses possibilités et peut être aménagé selon vos besoins en chambres supplémentaires, espace hobby ou bureau.
Cette maison est proposée sur plan à un prix indicatif, mais peut encore être entièrement adaptée à vos souhaits. Vous préférez un espace de vie plus grand à la place du garage ou une autre configuration ? Nous réalisons votre habitation sur mesure. Contactez-nous pour découvrir les possibilités.
| ID de propriété | 7627612 |
|---|---|
| Prix demandé | € 916.233 |
| Type de maison | Villa |
| Surface habitable | 244 m² |
| Terrasopp. | - |
| Superficie du terrain | 669 m² |
| Année de construction | - |
| Année de rénovation | - |
| Chambres à coucher | 3 |
| Salles de bains | 1 |
| Garages | 1 |
| Salles de douche | 1 |
| Revenu cadastral | - |
|---|---|
| EPC | - |
| Code unique | - |
| Zone inondable | Non situé dans une zone sensible |
| Prescriptions urbanistiques | - |
| Permis de lotir | Oui |
| Occupation urbanistique | Autre |
| Droit de préemption | - |
| Assignation | - |
| Décision judiciaire | - |
Unicas Kerkstraat 38, 1755 Gooik
- Téléphone:+32.488.30.03.01
- Courriel:info@unicas.be
- Site web:www.unicas.be













