Schitterend luchtig appartement
Kloosterbempden 8 bus A, 3680 Maaseik—Réf. APP939
BEKIJK DE VIDEO EN VOEL METEEN DE SFEER VAN DIT APPARTEMENT!!
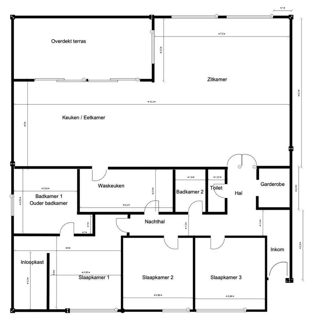
Deze prachtige loft van maar liefst 245m² op de tweede/bovenste verdieping biedt volop ruimte en comfort. Het beschikt o.a. over een royale luchtige leefruimte met open keuken, drie slaapkamers, twee moderne badkamers en een ruim overdekt terras. Daarnaast zijn er twee autostandplaatsen en een extra berging in de kelder.
=> Ligging
Het appartement is gelegen op slechts 150m van de gezellige Markt van Maaseik en vlak aan de Nederlandse grens.
=> Tweede/bovenste verdieping
- Ruime inkomhal met vestiairekasten
- Apart gastentoilet met fonteintje
- Royale leefruimte met veel lichtinval en gashaard
- Moderne open keuken met toegang tot het terras
- Vast bureelhoekje in de leefruimte/keuken
- Praktische berging/wasplaats
- Nachtgang
- Ouderlijke slaapkamer met dressing en ensuite badkamer
- Deze badkamer is voorzien van een dubbele wastafel, toilet, inloopdouche en ligbad
- Twee extra slaapkamers
- Tweede badkamer met wastafel en inloopdouche
- Overdekt terras gericht op het zonnige zuidwesten
=> Kelder
- Twee autostandplaatsen
- Berging
Deze prachtige loft van maar liefst 245m² op de tweede/bovenste verdieping biedt volop ruimte en comfort. Het beschikt o.a. over een royale luchtige leefruimte met open keuken, drie slaapkamers, twee moderne badkamers en een ruim overdekt terras. Daarnaast zijn er twee autostandplaatsen en een extra berging in de kelder.
=> Ligging
Het appartement is gelegen op slechts 150m van de gezellige Markt van Maaseik en vlak aan de Nederlandse grens.
=> Tweede/bovenste verdieping
- Ruime inkomhal met vestiairekasten
- Apart gastentoilet met fonteintje
- Royale leefruimte met veel lichtinval en gashaard
- Moderne open keuken met toegang tot het terras
- Vast bureelhoekje in de leefruimte/keuken
- Praktische berging/wasplaats
- Nachtgang
- Ouderlijke slaapkamer met dressing en ensuite badkamer
- Deze badkamer is voorzien van een dubbele wastafel, toilet, inloopdouche en ligbad
- Twee extra slaapkamers
- Tweede badkamer met wastafel en inloopdouche
- Overdekt terras gericht op het zonnige zuidwesten
=> Kelder
- Twee autostandplaatsen
- Berging
| ID de propriété | APP939 |
|---|---|
| Prix demandé | € 629.500 |
| Type de maison | Appartement |
| Surface habitable | 245 m² |
| Terrasopp. | - |
| Superficie du terrain | - |
| Année de construction | 2017 |
| Année de rénovation | - |
| Chambres à coucher | 3 |
| Salles de bains | 2 |
| Garages | 2 |
| Salles de douche | - |
| Revenu cadastral | € 1.628 |
|---|---|
| EPC | 139 kWh/m² |
| Code unique | 20250508 |
| Zone inondable | Non situé dans une zone sensible |
| Prescriptions urbanistiques | Oui |
| Permis de lotir | Non |
| Occupation urbanistique | Zone d'habitat |
| Droit de préemption | Non |
| Assignation | - |
| Décision judiciaire | Non |
Nicole Janssen Koning Albertlaan 6, 3680 Maaseik
- Téléphone:+32.89.56.57.06
- Courriel:nicole@nicolejanssen.be
- Site web:www.nicolejanssen.be
- Lundi - VendrediOuvert du 09.00 - 12.00 – 13.30 - 17.00
- Samedi Uniquement sur rendez-vous
- Dimanche Fermé
Agence





































