Maison 4 chambres à Grimbergen
Zilvermeeuwlaan 1, 1850 Grimbergen—Réf. 1460414
À vendre : spacieuse maison 4 façades à Grimbergen, située Zilvermeeuwlaan dans un emplacement unique, proche de la forêt, du parc et des grands axes.
Construite en 1971, cette propriété allie un style charmant à un terrain orienté sud-ouest, offrant une luminosité naturelle toute la journée et un espace extérieur agréable. L’environnement verdoyant garantit calme et intimité, tandis que la proximité des axes principaux facilite l’accès aux villes voisines.
Pièces principales :
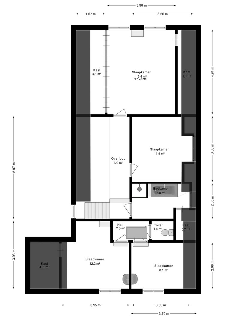
• Hall d’entrée (12,7 m²) donnant accès aux pièces de vie
• Séjour spacieux (52,0 m²) baigné de lumière
• Cuisine (13,8 m²) avec vue sur le jardin
• Hall de nuit (9,2 m²) desservant les chambres
• 4 chambres (8,1 m² ; 12,2 m² avec placards intégrés ; 11,9 m² ; 23,5 m²)
• Salle de bain (5,8 m²)
• 2 toilettes séparées (1,4 m² et 1,3 m²)
• Garage (29,4 m²)
Atouts :
• Emplacement unique dans un cadre verdoyant
• Style charmant de 1971
• Terrain orienté sud-ouest pour une luminosité optimale
Contactez dès aujourd’hui votre agent ERA pour organiser une visite.
Votre maison de rêve! On trouve!
| ID de propriété | 1460414 |
|---|---|
| Prix demandé | € 650.000 |
| Type de maison | Villa |
| Surface habitable | 181 m² |
| Terrasopp. | - |
| Superficie du terrain | 1.100 m² |
| Année de construction | 1971 |
| Année de rénovation | - |
| Chambres à coucher | 4 |
| Salles de bains | 1 |
| Garages | 1 |
| Salles de douche | - |
| Revenu cadastral | € 1.971 |
|---|---|
| EPC | 376 kWh/m² |
| Code unique | 20251208-0003753053-RES-1 |
| Zone inondable | Non communiqué |
| Prescriptions urbanistiques | Oui |
| Permis de lotir | Oui |
| Occupation urbanistique | Zone d'habitat |
| Droit de préemption | Non |
| Assignation | Non |
| Décision judiciaire | - |
ERA Leus & Toye Parklaan 28, 1930 Zaventem
- Téléphone:+32.2.725.20.02
- Courriel:leus@era.be
- Site web:www.era.be/nl/era-leus-vastgoed





























