Propriété exceptionnelle située à Kain
7540 Tournai Kain—Réf. 6615867
Historique
L’Abbaye fut fondée par 13 soeurs cisterciennes en 1238. Elles choisirent ce
lieu pour son calme et sa sérénité en vue de s’y installer. Au regard du nombre
important de saules qu’il y avait dans la région, elles décidèrent d’appeler cette
abbaye, le Saulchoir.
L’abbaye sera habitée et entretenue par les soeurs religieuses pendant cinq
siècles et demi. Suite à la Révolution Française et à l’incendie de l’Abbaye en
1797, les soeurs seront contraintes de se retirer dans une ferme à proximité.
A partir de 1797, le bâtiment passera entre les mains de divers propriétaires
non-religieux pour revenir dans les mains des Dominicains en 1900.
En 1903, les Pères dominicains en firent un couvent d’étude théologique de
grande portée. Ils formèrent des sommités et y abritèrent d’illustres retraitants.
La vie des “Pères blancs” pouvait se résumer en ces termes: recueillement,
étude, paix et intimité avec Dieu. A la veille de la Deuxième Guerre Mondiale,
les Pères dominicains se retirèrent en France.
A partir de 1939, la propriété fut vendue à un spéculateur qui détruisit une partie
du bâtiment pour en vendre les matériaux.
C’est en 1942 que l’Abbaye du Saulchoir se transforma en Carmel avec l’arrivée
des religieuses carmélites. Elles en firent un couvent et restèrent pieuses et
discrètes dans le village de Kain.
De 1997 à 2006, le Carmel fut occupé par une communauté laïque d’une
vingtaine de personnes qui y vécurent ensemble selon des principes d’écologie,
de partage et de solidarité.
Depuis 2007, le site est exploité par la société «Alter Eco», spécialisée en écoconstruction.
L’Abbaye fut fondée par 13 soeurs cisterciennes en 1238. Elles choisirent ce
lieu pour son calme et sa sérénité en vue de s’y installer. Au regard du nombre
important de saules qu’il y avait dans la région, elles décidèrent d’appeler cette
abbaye, le Saulchoir.
L’abbaye sera habitée et entretenue par les soeurs religieuses pendant cinq
siècles et demi. Suite à la Révolution Française et à l’incendie de l’Abbaye en
1797, les soeurs seront contraintes de se retirer dans une ferme à proximité.
A partir de 1797, le bâtiment passera entre les mains de divers propriétaires
non-religieux pour revenir dans les mains des Dominicains en 1900.
En 1903, les Pères dominicains en firent un couvent d’étude théologique de
grande portée. Ils formèrent des sommités et y abritèrent d’illustres retraitants.
La vie des “Pères blancs” pouvait se résumer en ces termes: recueillement,
étude, paix et intimité avec Dieu. A la veille de la Deuxième Guerre Mondiale,
les Pères dominicains se retirèrent en France.
A partir de 1939, la propriété fut vendue à un spéculateur qui détruisit une partie
du bâtiment pour en vendre les matériaux.
C’est en 1942 que l’Abbaye du Saulchoir se transforma en Carmel avec l’arrivée
des religieuses carmélites. Elles en firent un couvent et restèrent pieuses et
discrètes dans le village de Kain.
De 1997 à 2006, le Carmel fut occupé par une communauté laïque d’une
vingtaine de personnes qui y vécurent ensemble selon des principes d’écologie,
de partage et de solidarité.
Depuis 2007, le site est exploité par la société «Alter Eco», spécialisée en écoconstruction.
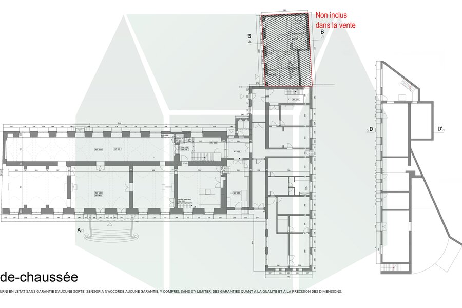
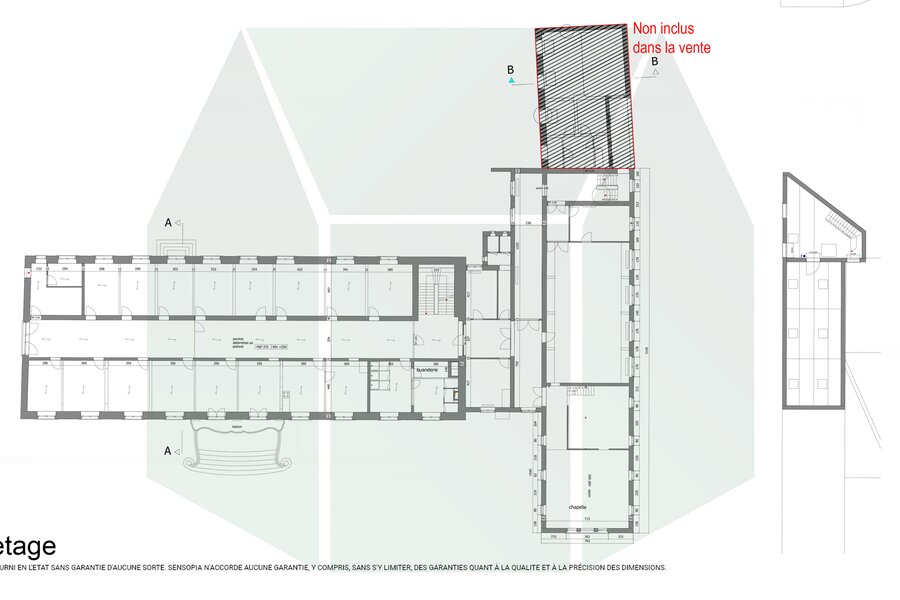
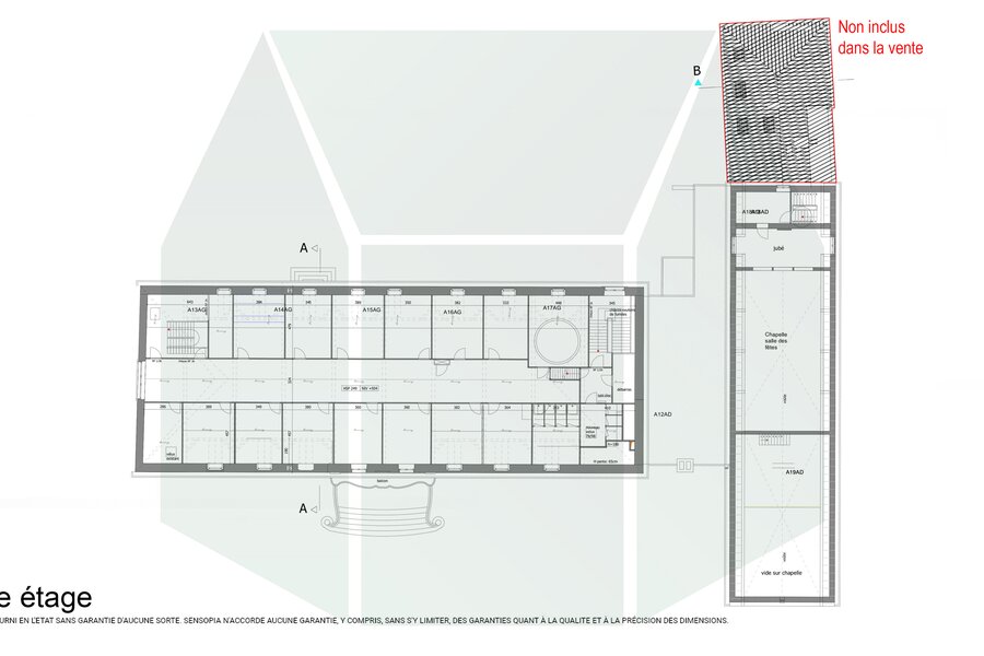
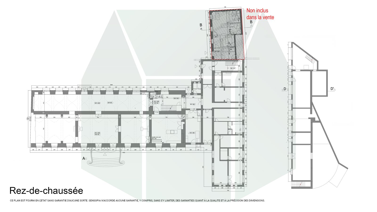
| ID de propriété | 6615867 |
|---|---|
| Prix demandé | € 1.350.000 |
| Type de maison | Bâtiment historique |
| Surface habitable | 3.000 m² |
| Terrasopp. | - |
| Superficie du terrain | 14.229 m² |
| Année de construction | 1238 |
| Année de rénovation | - |
| Chambres à coucher | 30 |
| Salles de bains | 4 |
| Garages | - |
| Salles de douche | 4 |
| Revenu cadastral | € 3.192 |
|---|---|
| EPC | 346 kWh/m² |
| Code unique | 20190711015952 |
| Zone inondable | Non communiqué |
| Prescriptions urbanistiques | Oui |
| Permis de lotir | Non |
| Occupation urbanistique | Parc |
| Droit de préemption | Non |
| Assignation | - |
| Décision judiciaire | - |
Immo Emeraude Tournai Boulevard du Roi Albert 44, 7500 Tournai
- Téléphone:+32.69.64.69.64
- Courriel:info.emeraude@dlgroupe.com
- Site web:www.immo-emeraude.com
- Lundi - JeudiOuvert du 09.00 - 12.00 – 13.30 - 18.30
- Vendredi Ouvert du 09.00 - 12.00 – 13.30 - 18.00
- Samedi Ouvert du 09.00 - 12.00
- Dimanche Fermé
Agence



































