Excusief nieuwbouw appartement
aaigemdorp 38, 9420 aaigem—Réf. Jolina
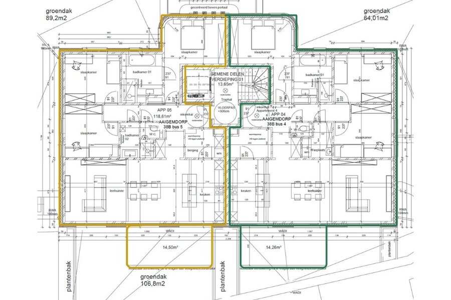
Prachtig, ruim en lichtrijk appartement met drie slaapkamers op de eerste verdieping van het prestigieuze nieuwbouwproject "Villa Jolina".
Achter de prestigieuse voorgevel liggen 7 exclusieve appartementen, gelegen aan het rond punt in Aaigem op minder dan 10 minuutjes van de afrit Erpe-Mere aan de E40, erg centraal gelegen tussen Gent en Brussel.
Achter de villa ligt een heel grote mooie tuin en kijk je uit op de groene velden, het uitzicht kan niet mooier zijn.
Het appartement heeft een zuid - terras van 18m2 en een ondergrondse afgesloten parkeergarage van 33 m2 deze is in de prijs inbegrepen. In de tuin light nog een polyvalente ruimte die je als bewoner kan gebruiken om familie uit te nodigen of een koffie te drinken met de buren en te genieten van de tuin.
Indeling:
Inkomhal, toilet, berging met aansluiting voor wasmachine, leefruimte met open keuken , zithoek, eethoek, aangrenzend terras, 3 slaapkamers, een badkamer met wastafel, inloopdouche en ligbad. berging naast de keuken.
De appartementen zijn uiteraard uiterst energie zuinig met GEO thermische boringen, vloerverwarming, zonnescreens enzovoort voldoen ze aan de nieuwste normen
De bouw is momenteel in afwerkingsfase, de eerste appartementen worden begin 2026 opgeleverd.
Aarzel niet mij te contacteren voor bijkomende informatie of een bezoek.
An - 0476/752972
Achter de prestigieuse voorgevel liggen 7 exclusieve appartementen, gelegen aan het rond punt in Aaigem op minder dan 10 minuutjes van de afrit Erpe-Mere aan de E40, erg centraal gelegen tussen Gent en Brussel.
Achter de villa ligt een heel grote mooie tuin en kijk je uit op de groene velden, het uitzicht kan niet mooier zijn.
Het appartement heeft een zuid - terras van 18m2 en een ondergrondse afgesloten parkeergarage van 33 m2 deze is in de prijs inbegrepen. In de tuin light nog een polyvalente ruimte die je als bewoner kan gebruiken om familie uit te nodigen of een koffie te drinken met de buren en te genieten van de tuin.
Indeling:
Inkomhal, toilet, berging met aansluiting voor wasmachine, leefruimte met open keuken , zithoek, eethoek, aangrenzend terras, 3 slaapkamers, een badkamer met wastafel, inloopdouche en ligbad. berging naast de keuken.
De appartementen zijn uiteraard uiterst energie zuinig met GEO thermische boringen, vloerverwarming, zonnescreens enzovoort voldoen ze aan de nieuwste normen
De bouw is momenteel in afwerkingsfase, de eerste appartementen worden begin 2026 opgeleverd.
Aarzel niet mij te contacteren voor bijkomende informatie of een bezoek.
An - 0476/752972
| ID de propriété | Jolina |
|---|---|
| Prix demandé | € 512.700 |
| Type de maison | Appartement |
| Surface habitable | 120 m² |
| Terrasopp. | 18 m² |
| Superficie du terrain | - |
| Année de construction | 2025 |
| Année de rénovation | - |
| Chambres à coucher | 3 |
| Salles de bains | 1 |
| Garages | 1 |
| Salles de douche | - |
| Revenu cadastral | - |
|---|---|
| EPC | - |
| Code unique | |
| Zone inondable | Non situé dans une zone sensible |
| Prescriptions urbanistiques | - |
| Permis de lotir | - |
| Occupation urbanistique | Zone d'habitat |
| Droit de préemption | - |
| Assignation | - |
| Décision judiciaire | - |
Van de Casseye 9550 Herzele
- Téléphone:+32.4.76.75.29.72
- Courriel:avdc@argospm.com
- Site web:.















