Nieuwbouwmogelijkheid in het centrum van De Pinte
Polderdreef 7, 9840 Nazareth-De Pinte—Réf. 4153642
Op een uitzonderlijke locatie in het hart van De Pinte, ligt deze bouwgrond van 700 m² met zuidgerichte tuin. Momenteel staat er een te renoveren woning, maar het perceel biedt ook de mogelijkheid om een volledig nieuwe, vrijstaande woning te realiseren.
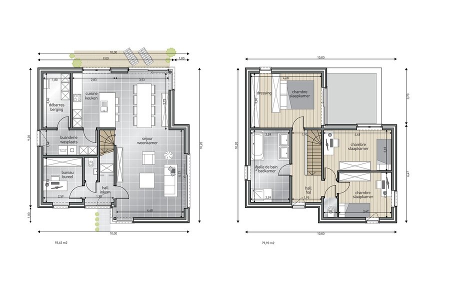
Als voorbeeld tonen we je graag een moderne nieuwbouwwoning met een doordachte indeling: drie volwaardige slaapkamers, een ruime badkamer, een lichtrijke leefruimte met open keuken en eetplaats, grote raampartijen en een gezellig terras.
De woning heeft een breedte van 10 meter en een maximale diepte van 10,20 meter, ideaal voor dit perceel. Indien gewenst, kan deze woning ook gebouwd worden met een hellend zadeldak.
Dankzij de geldende verkavelingsvoorschriften zijn er ruime bouwmogelijkheden:
Daarnaast is het ook toegelaten om een praktijkruimte aan huis in te richten tot 100 m², op voorwaarde dat het wonen steeds de hoofdfunctie blijft.
Kortom, dit perceel biedt je de vrijheid om jouw droomwoning te bouwen, of dat nu een moderne villa, landelijke woning of tijdloze gezinswoning is.
Heb je al interesse of wens je meer info over het voorbeeldplan of andere mogelijkheden? Neem dan gerust vrijblijvend contact met ons op.
Als voorbeeld tonen we je graag een moderne nieuwbouwwoning met een doordachte indeling: drie volwaardige slaapkamers, een ruime badkamer, een lichtrijke leefruimte met open keuken en eetplaats, grote raampartijen en een gezellig terras.
De woning heeft een breedte van 10 meter en een maximale diepte van 10,20 meter, ideaal voor dit perceel. Indien gewenst, kan deze woning ook gebouwd worden met een hellend zadeldak.
Dankzij de geldende verkavelingsvoorschriften zijn er ruime bouwmogelijkheden:
- Vrijstaande bouwvorm
- Gelijkvloerse bouwdiepte tot 20 meter
- Verdieping tot 12 à 15 meter diep
- Minstens 4 meter afstand tot de perceelgrenzen
- Zadeldak tot 45° helling toegestaan
- Bijgebouw (garage of berging) mogelijk achteraan (tot 30 m²)
Daarnaast is het ook toegelaten om een praktijkruimte aan huis in te richten tot 100 m², op voorwaarde dat het wonen steeds de hoofdfunctie blijft.
Kortom, dit perceel biedt je de vrijheid om jouw droomwoning te bouwen, of dat nu een moderne villa, landelijke woning of tijdloze gezinswoning is.
Heb je al interesse of wens je meer info over het voorbeeldplan of andere mogelijkheden? Neem dan gerust vrijblijvend contact met ons op.
| ID de propriété | 4153642 |
|---|---|
| Prix demandé | € 794.400 |
| Type de maison | Villa |
| Surface habitable | - |
| Terrasopp. | - |
| Superficie du terrain | 700 m² |
| Année de construction | 2025 |
| Année de rénovation | - |
| Chambres à coucher | 3 |
| Salles de bains | 1 |
| Garages | - |
| Salles de douche | - |
| Revenu cadastral | € 711 |
|---|---|
| EPC | - |
| Code unique | - |
| Zone inondable | Non situé dans une zone sensible |
| Prescriptions urbanistiques | Oui |
| Permis de lotir | Oui |
| Occupation urbanistique | Zone d'habitat |
| Droit de préemption | Non |
| Assignation | Non |
| Décision judiciaire | - |
Casteels Vastgoed Heusdenbaan 46 B002, 9090 Melle
- Téléphone:+32.9.230.99.10
- Courriel:hello@casteelsvastgoed.be
- Site web:www.casteelsvastgoed.be
Agence

























