Landelijke villa in Sint-Denijs
Zandbeekstraat 7, 8554 Zwevegem Sint-Denijs—Réf. 7592754
Dans le cadre verdoyant et rural de Sint-Denijs, nous vous présentons cette élégante villa de caractère, située sur un magnifique terrain de pas moins de 6.298 m². Une propriété unique avec une vue panoramique, idéale pour ceux qui recherchent qualité, calme, intimité et espace, avec la possibilité de garder des animaux grâce aux prairies et aux écuries entièrement aménagées.
Dès l’entrée dans la maison, vous ressentez immédiatement une agréable sensation d’espace et de tranquillité. La villa est particulièrement bien entretenue, réalisée avec des matériaux de qualité et entièrement prête à être habitée.
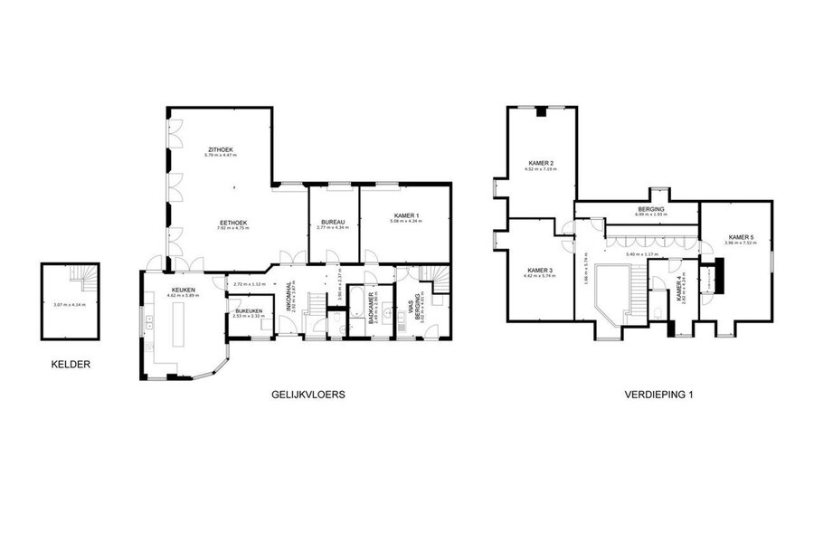
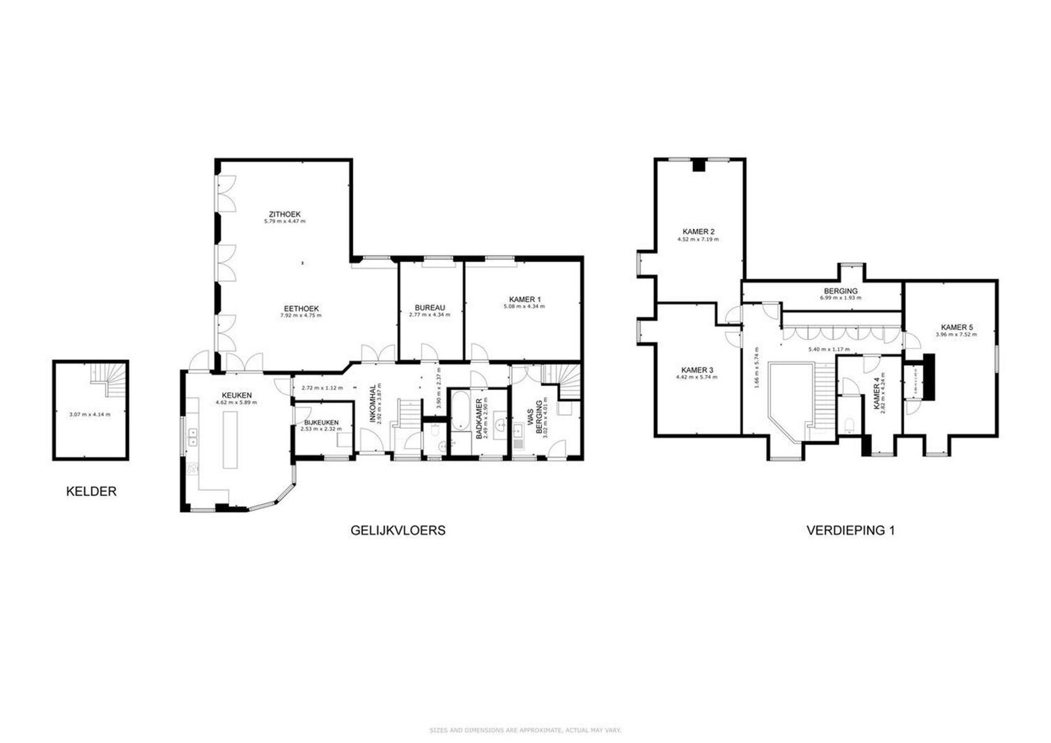
Au rez-de-chaussée, vous accédez à la maison par un hall d’entrée spacieux avec toilette invités. Celui-ci mène à un séjour lumineux offrant une atmosphère chaleureuse et une belle vue sur le jardin. La cuisine entièrement équipée avec une arrière-cuisine pratique y est attenante. Le rez-de-chaussée comprend également un bureau, une chambre, une salle de bains, une buanderie et un accès à la cave.
À l’étage, vous trouverez trois chambres spacieuses, un espace de rangement ainsi qu’une deuxième salle de bains, offrant un confort supplémentaire pour toute la famille.
Parmi les autres atouts, on retrouve un double garage ainsi qu’un vaste grenier.
Dès l’entrée dans la maison, vous ressentez immédiatement une agréable sensation d’espace et de tranquillité. La villa est particulièrement bien entretenue, réalisée avec des matériaux de qualité et entièrement prête à être habitée.
Au rez-de-chaussée, vous accédez à la maison par un hall d’entrée spacieux avec toilette invités. Celui-ci mène à un séjour lumineux offrant une atmosphère chaleureuse et une belle vue sur le jardin. La cuisine entièrement équipée avec une arrière-cuisine pratique y est attenante. Le rez-de-chaussée comprend également un bureau, une chambre, une salle de bains, une buanderie et un accès à la cave.
À l’étage, vous trouverez trois chambres spacieuses, un espace de rangement ainsi qu’une deuxième salle de bains, offrant un confort supplémentaire pour toute la famille.
Parmi les autres atouts, on retrouve un double garage ainsi qu’un vaste grenier.
| ID de propriété | 7592754 |
|---|---|
| Prix demandé | € 1.075.000 |
| Type de maison | Villa |
| Surface habitable | 304 m² |
| Terrasopp. | - |
| Superficie du terrain | 6.298 m² |
| Année de construction | 1992 |
| Année de rénovation | - |
| Chambres à coucher | 4 |
| Salles de bains | 2 |
| Garages | 2 |
| Salles de douche | - |
| Revenu cadastral | - |
|---|---|
| EPC | 211 kWh/m² |
| Code unique | 3786398 |
| Zone inondable | Non situé dans une zone sensible |
| Prescriptions urbanistiques | Oui |
| Permis de lotir | - |
| Occupation urbanistique | Zone agricole à valeur paysagère |
| Droit de préemption | Non |
| Assignation | Non |
| Décision judiciaire | - |
Altro Kortrijk Doorniksesteenweg 61/0021, 8500 Kortrijk
- Téléphone:+32.56.19.19.00
- Courriel:info@altro-vastgoed.be
- Site web:www.altro-vastgoed.be



















