Verrassend ruime, stijlvolle woning te Sint-Katelijne-Waver
Vestinglaan 61, 2860 Sint-katelijne-waver—Réf. 6620
Surprenante villa spacieuse et élégante à Sint-Katelijne-Waver.
Cette villa contemporaine est située à proximité de plusieurs écoles et de l'hôpital AZ Sint Maarten. Sa situation pratique en fait également un excellent point de départ pour ceux qui se rendent à Malines, Anvers, Bruxelles ou Louvain.
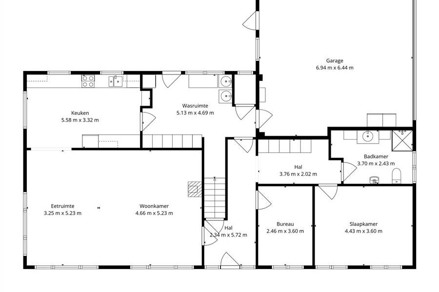
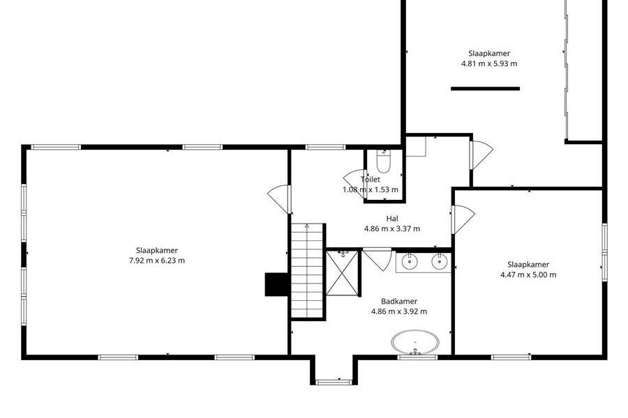
Cette propriété est économe en énergie, notamment grâce à un grand nombre de panneaux solaires, et dispose d'un agencement fonctionnel offrant de nombreuses possibilités pour, par exemple, une famille nombreuse et/ou un bureau à domicile. Le hall d'entrée spacieux avec les toilettes pour invités donne accès au salon lumineux avec la cuisine attenante. La cuisine spacieuse est pratique et dispose de nombreux espaces de rangement. Au rez-de-chaussée, vous trouverez également deux chambres à coucher, dont l'une est actuellement utilisée comme bureau, une salle de bains avec douche, une buanderie/rangement et un double garage intérieur. L'étage supérieur abrite pas moins de 3 chambres, une salle de bains avec baignoire balnéo autoportante et douche à l'italienne, ainsi qu'une salle de toilettes séparée. Un dressing spacieux peut être annexé à la chambre principale. La plus grande pièce offre de nombreuses possibilités, par exemple un bureau, un hobby ou une séparation en plusieurs pièces. À l'arrière de la maison, vous pouvez vous détendre sur la grande terrasse avec bain à remous et dans l'agréable jardin parfaitement exposé au sud-ouest.
La facilité d'accès est garantie grâce à sa situation centrale entre Bruxelles et Anvers, à proximité des principales voies d'accès, de la gare et de la piste cyclable.
Venez découvrir les atouts de cette magnifique propriété sur place et prenez rendez-vous : 015/755 444 ou info@immovercammen.be
Cette villa contemporaine est située à proximité de plusieurs écoles et de l'hôpital AZ Sint Maarten. Sa situation pratique en fait également un excellent point de départ pour ceux qui se rendent à Malines, Anvers, Bruxelles ou Louvain.
Cette propriété est économe en énergie, notamment grâce à un grand nombre de panneaux solaires, et dispose d'un agencement fonctionnel offrant de nombreuses possibilités pour, par exemple, une famille nombreuse et/ou un bureau à domicile. Le hall d'entrée spacieux avec les toilettes pour invités donne accès au salon lumineux avec la cuisine attenante. La cuisine spacieuse est pratique et dispose de nombreux espaces de rangement. Au rez-de-chaussée, vous trouverez également deux chambres à coucher, dont l'une est actuellement utilisée comme bureau, une salle de bains avec douche, une buanderie/rangement et un double garage intérieur. L'étage supérieur abrite pas moins de 3 chambres, une salle de bains avec baignoire balnéo autoportante et douche à l'italienne, ainsi qu'une salle de toilettes séparée. Un dressing spacieux peut être annexé à la chambre principale. La plus grande pièce offre de nombreuses possibilités, par exemple un bureau, un hobby ou une séparation en plusieurs pièces. À l'arrière de la maison, vous pouvez vous détendre sur la grande terrasse avec bain à remous et dans l'agréable jardin parfaitement exposé au sud-ouest.
La facilité d'accès est garantie grâce à sa situation centrale entre Bruxelles et Anvers, à proximité des principales voies d'accès, de la gare et de la piste cyclable.
Venez découvrir les atouts de cette magnifique propriété sur place et prenez rendez-vous : 015/755 444 ou info@immovercammen.be
| ID de propriété | 6620 |
|---|---|
| Prix demandé | € 969.000 |
| Type de maison | Villa |
| Surface habitable | 321 m² |
| Terrasopp. | - |
| Superficie du terrain | 1.518 m² |
| Année de construction | 2003 |
| Année de rénovation | - |
| Chambres à coucher | 5 |
| Salles de bains | 2 |
| Garages | 2 |
| Salles de douche | - |
| Revenu cadastral | € 1.744 |
|---|---|
| EPC | 121 kWh/m² |
| Code unique | 20250930-0003697466-RES-2 |
| Zone inondable | - |
| Prescriptions urbanistiques | Oui |
| Permis de lotir | Oui |
| Occupation urbanistique | - |
| Droit de préemption | Non |
| Assignation | Non |
| Décision judiciaire | - |
Immo Vercammen Mechelbaan 509, 2580 Putte
- Téléphone:+32.15.75.54.44
- Courriel:info@immovercammen.be
- Site web:www.immovercammen.be
Agence




























