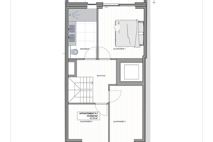
Res. Park Lane Nieuwbouw Penthouse met 3 slaapkamers op de 6 de 7 de V in de Rogierlaan 55 te Oostende. Rogierlaan 55 bus 0601, 8400 Oostende
Réf. 99

Immobiliën VYVA bv
Prix demand造650.000
Superficie du terrainInconnu
Surface habitable132 m²

Contact Immobiliën VYVA bv

Residentieel wonen in de nieuwbouw Res. Park Lane. Deze Residentie bestaat uit 6 appartementen. 5 appartementen met 2 slaapkamers, ruime living met balkon, volledig inger keuken met berging, badkamer met instapdouche en dubbel lavabomeubel, afz. toilet, mooi zonnig terras, extra indiviuele berging op het gv, een fietsenberging die rechtstreeks uitgeeft op straat, één duplex appartement op de 6 de en 7 de v met 3 slaapkamers en ruime zonovergoten terrassen. De 1 ste v heeft een rechtstreekse toegang via het terras naar een privé stadstuin. De Res. Park Lane heeft een hoogkwalitatieve afwerking die u volgens eigen smaak nog kan personaliseren. In de verkoopprijs van ieder appartement is een budget voorzien voor de keuken, badkamer en vloeren. Elk appartement is aangesloten op een warmtepomp in combinatie met vloerverwarming. Pluspunt : 1 appartement per verdieping. Het gebouw is gelegen in een residentiële straat nabij het Leopoldpark en op wandelafstand van zee, strand, winkels en horeca. Er is bovendien een vlotte verbinding met het openbaar vervoer.Voor meer info mail naar info@vyva.be of tel. naar 0475 51 80 62 .

ID de propriété99
Prix demand造650.000
Type de maisonPenthouse
Surface habitable132 m²
Terrasopp.42 m²
Superficie du terrain -
Année de construction2026
Année de rénovation -
Chambres à coucher3
Salles de bains1
Garages -
Salles de douche1

Revenu cadastral-
EPC30 kWh/m²
Code unique
Zone inondableNon situé dans une zone sensible
Prescriptions urbanistiques Oui
Permis de lotir Non
Occupation urbanistique Zone d'habitat
Droit de préemption Non
Assignation Non
Décision judiciaire Non

Contact Immobiliën VYVA bv