Cette grange aménagée unique et entièrement rénovée
Grote Vijverselenweg 4, 1750 Lennik—Réf. 1432040
Construction écologique selon les normes les plus récentes, avec des matériaux durables et naturels, et équipée de 15 panneaux solaires.
Cette habitation dispose d’un aménagement pratique avec des placards intégrés, une grande luminosité et une vue imprenable sur la vallée verte grâce aux grandes baies vitrées.
Elle est équipée de châssis en aluminium avec double vitrage et d’un système de chauffage central par pompe à chaleur air/eau avec chauffage par le sol.
Caractéristiques particulières :
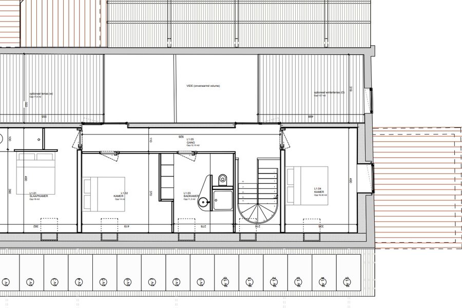
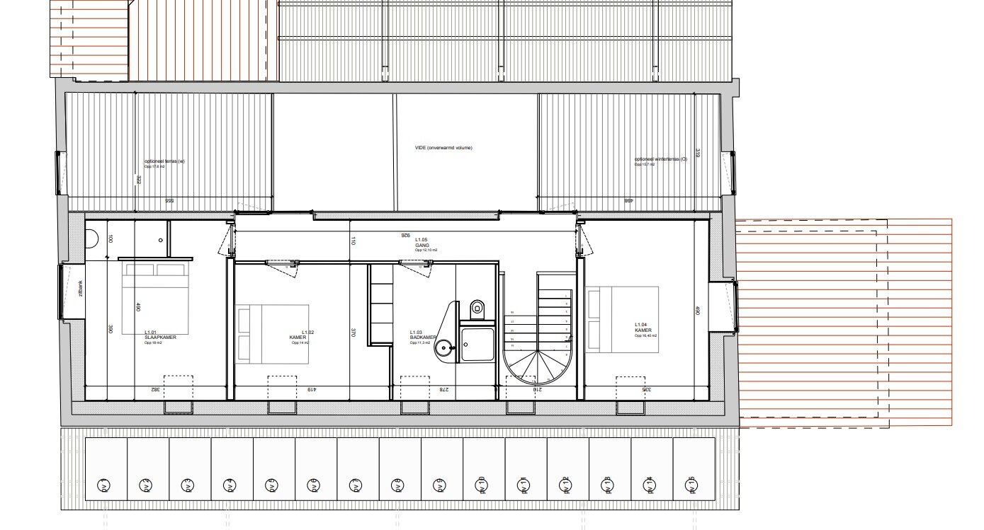
• 3 chambres – 2 salles de bains
• Grandes terrasses, orientées sud et partiellement couvertes
Disposition :
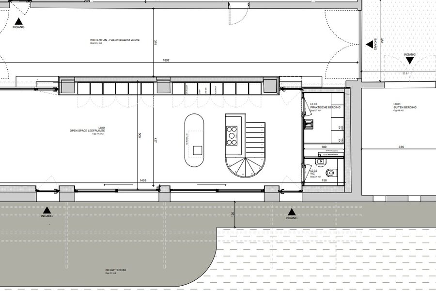
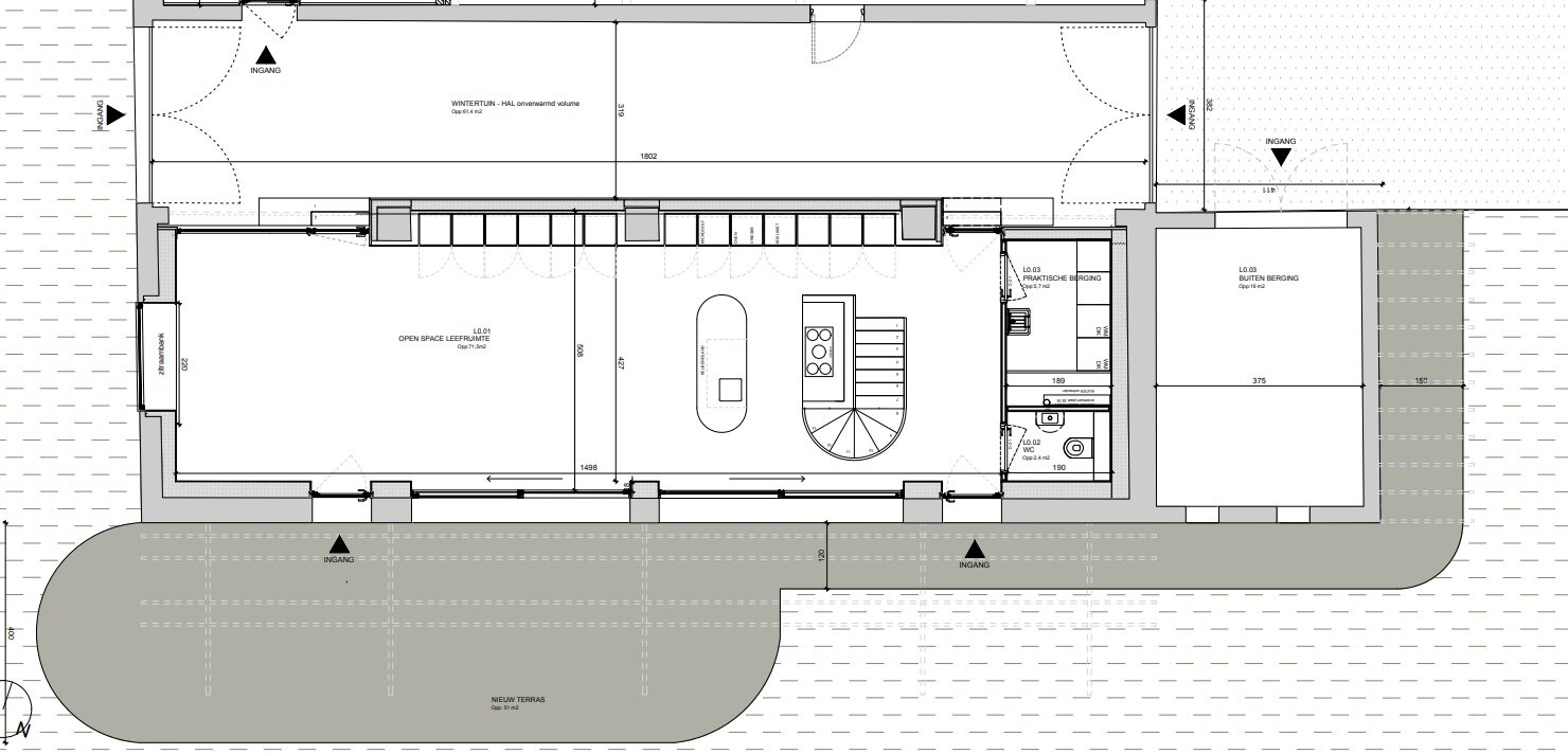
Rez-de-chaussée : local de rangement extérieur, impressionnante véranda/jardin d’hiver, hall d’entrée avec escalier unique, local technique/buanderie, WC séparé, vaste séjour lumineux avec magnifique cuisine ouverte.
Terrasse orientée sud attenante aux espaces de vie. Côté nord : carport couvert avec possibilité de stationner 2 voitures.
Étage : hall de nuit, 3 grandes chambres dont une avec douche, salle de bain avec douche à l’italienne et WC, et 2 terrasses couvertes.
PEB en cours (nouvelle construction)
Provision pour la consommation privée d’électricité : 220 €/mois
Possibilité de louer le pré attenant.
Possibilité de louer le studio adjacent en supplément.
Disponible à partir du 01/10/2025
Cette habitation dispose d’un aménagement pratique avec des placards intégrés, une grande luminosité et une vue imprenable sur la vallée verte grâce aux grandes baies vitrées.
Elle est équipée de châssis en aluminium avec double vitrage et d’un système de chauffage central par pompe à chaleur air/eau avec chauffage par le sol.
Caractéristiques particulières :
• 3 chambres – 2 salles de bains
• Grandes terrasses, orientées sud et partiellement couvertes
Disposition :
Rez-de-chaussée : local de rangement extérieur, impressionnante véranda/jardin d’hiver, hall d’entrée avec escalier unique, local technique/buanderie, WC séparé, vaste séjour lumineux avec magnifique cuisine ouverte.
Terrasse orientée sud attenante aux espaces de vie. Côté nord : carport couvert avec possibilité de stationner 2 voitures.
Étage : hall de nuit, 3 grandes chambres dont une avec douche, salle de bain avec douche à l’italienne et WC, et 2 terrasses couvertes.
PEB en cours (nouvelle construction)
Provision pour la consommation privée d’électricité : 220 €/mois
Possibilité de louer le pré attenant.
Possibilité de louer le studio adjacent en supplément.
Disponible à partir du 01/10/2025
| ID de propriété | 1432040 |
|---|---|
| Prix demandé | € 2.300 |
| Type de maison | Villa |
| Surface habitable | 266 m² |
| Terrasopp. | - |
| Superficie du terrain | 1.600 m² |
| Année de construction | - |
| Année de rénovation | - |
| Chambres à coucher | 3 |
| Salles de bains | - |
| Garages | - |
| Salles de douche | - |
| Revenu cadastral | - |
|---|---|
| EPC | - |
| Code unique | - |
| Zone inondable | Non situé dans une zone sensible |
| Prescriptions urbanistiques | Non |
| Permis de lotir | Non |
| Occupation urbanistique | - |
| Droit de préemption | Non |
| Assignation | - |
| Décision judiciaire | - |
ERA Innova Alsembergsesteenweg 570, 1653 Beersel
- Téléphone:+ 32.2.523.55.52
- Courriel:innova@era.be
- Site web:www.era.be/nl/era-innova
Agence






















