Propriété équestre avec maison en pierre rénovée à Vielsalm
Rue du Vivier 30, 6690 Vielsalm—Réf. 1443022
L’agence ERA B-Lux a le plaisir de vous présenter cette superbe propriété équestre située à Vielsalm, alliant charme à l’ancienne et qualité de rénovation soignée.
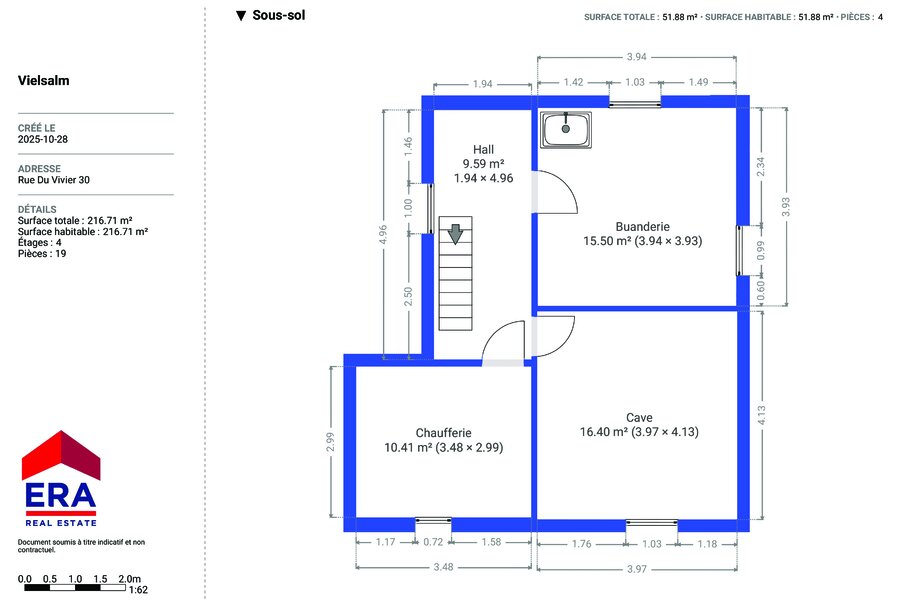
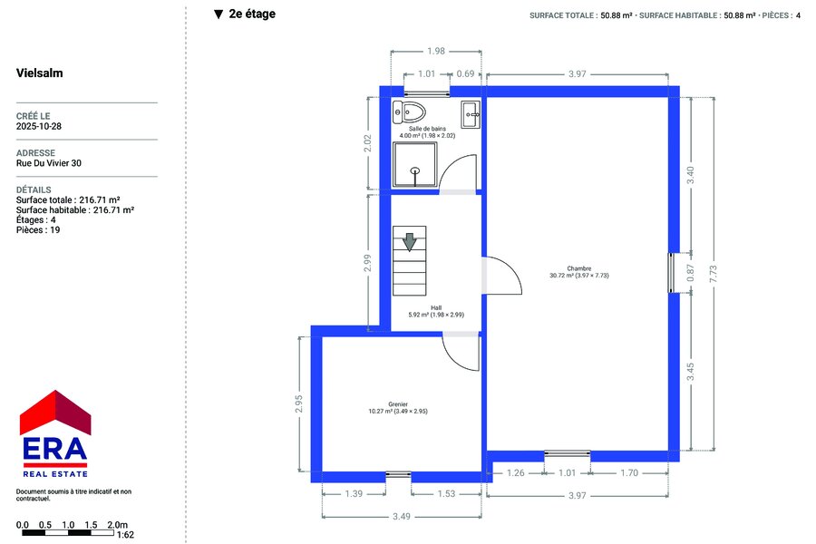
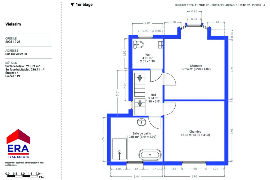
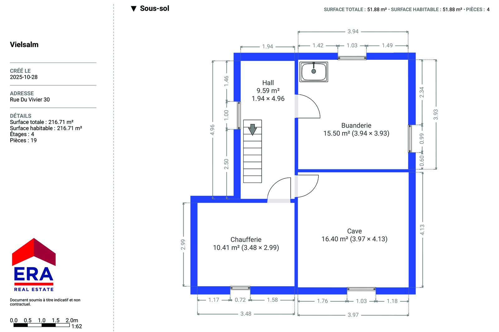
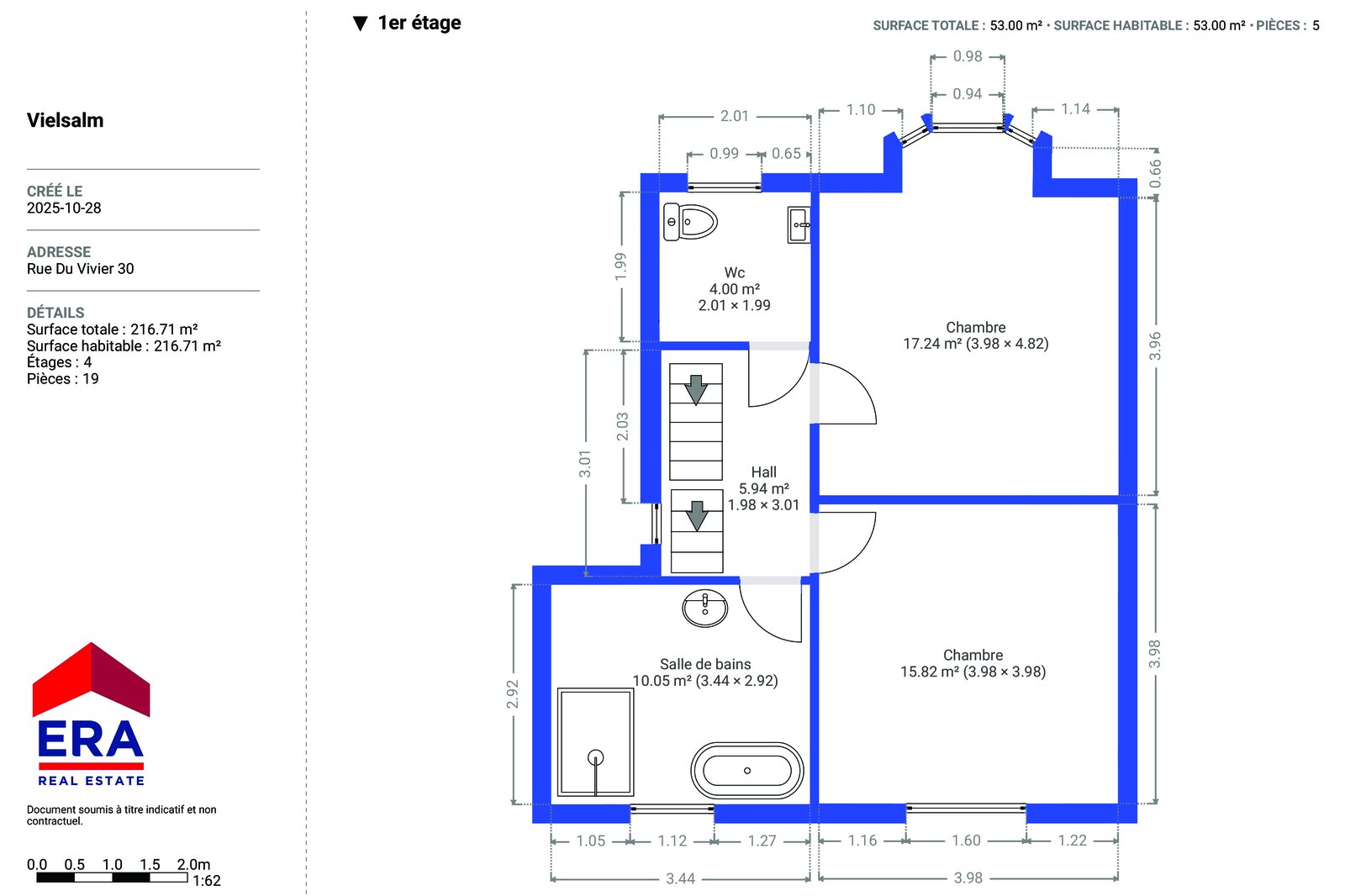
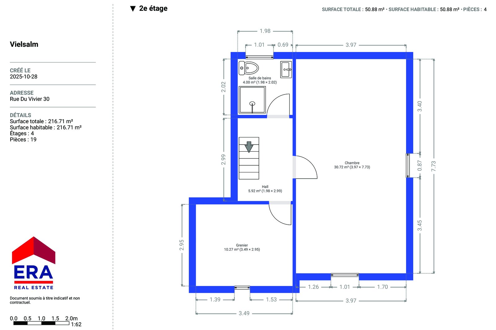
La maison principale en pierre, récemment rénovée, offre environ 210 m² habitables et se compose de 4 chambres, 2 salles de bains et 3 WC. Vous y trouverez également une cuisine neuve et entièrement équipée, ainsi qu’un intérieur lumineux et chaleureux où aucun travaux ne sont à prévoir.
La propriété s’étend sur près de 2 hectares de terrain, parfaitement adaptée aux amateurs de chevaux ou de nature.
Les installations comprennent :
• une piste en sable de 2100 m²,
• des paddocks aménagés,
• un grand garage pouvant accueillir plusieurs véhicules, servir de stockage ou d’atelier,
• et une grange en pierres comprenant 4 boxes et offrant un potentiel d’aménagement en habitation secondaire, gîte ou espace professionnel (à restaurer).
Un bien rare qui combine authenticité, confort et cadre de vie exceptionnel, idéal pour les passionnés d’espace et de nature.
Intéressé(e)? Contactez l’agence ERA B-LUX au +32 61 21 07 50 pour plus d’informations.
| ID de propriété | 1443022 |
|---|---|
| Prix demandé | € 650.000 |
| Type de maison | Villa |
| Surface habitable | 216 m² |
| Terrasopp. | - |
| Superficie du terrain | 18.031 m² |
| Année de construction | 1934 |
| Année de rénovation | - |
| Chambres à coucher | 3 |
| Salles de bains | 2 |
| Garages | 1 |
| Salles de douche | - |
| Revenu cadastral | € 724 |
|---|---|
| EPC | 488 kWh/m² |
| Code unique | 20251114010243 |
| Zone inondable | Non situé dans une zone sensible |
| Prescriptions urbanistiques | - |
| Permis de lotir | Non |
| Occupation urbanistique | - |
| Droit de préemption | Non |
| Assignation | Non |
| Décision judiciaire | - |
ERA B-Lux Chaussée de Liège 76, 6900 Marche-en-Famenne
- Téléphone:+32.84.31.18.88
- Courriel:info@erablux.be
- Site web:www.era.be/fr/era-b-lux
Agence





















