**** Compromis in opmaak ....
Bergstraat 1-3, 9820 Merelbeke—Réf. PL.25.238
NET VERKOCHT
Gelegen in één van de mooiste groene residentiële lanen van Merelbeke.
Met comfortabele toegankelijkheid naar zowel Gent centrum als alle invalswegen, autosnelwegen E40 en E17, bedrijvencentra zoals Merelbeke, Zwijnaarde, ... en (universitaire) ziekenhuizen.
Op een mooi discreet perceel met een prachtig aangelegde voor- & achtertuin met rondom rijpere bomen en kleurrijke bloemenpracht. En een rustgevende terrasvijver. Zowel vooraan als achteraan terrasaangelegenheden. Komt u opgereden op de oprijlaan waarna u de wagen(s) kan stallen onder de dubbele carport of in de dubbele garage. Waarbij, van zodra de inkomhall van de villa is betreden, zowel de luxe afwerking, het karakter als de lichtinval direct een diepe indruk maken.
Inderdaad, de architect en de eigenaar hebben niet gespaard op de dure, duurzame en kwaliteitsvolle materialen. Perfect onderhouden.
De villa werd door de tijd heen steeds gemoderniseerd en geactualiseerd. De architect en bouwheer hebben geopteerd voor een centrale inplanting op het perceel. Waardoor extra licht, zicht en groen vanuit alle zichtpunten en met een uitgesproken ' feel good '.
Een échte 'leef & karakter' villa en met de grootste liefde onderhouden.
Comfortabel toegankelijke ruimtes en met aanwezigheid van een lift.
2 huisnummers - mits aanpassing mogelijkheid zakelijk gebruik.
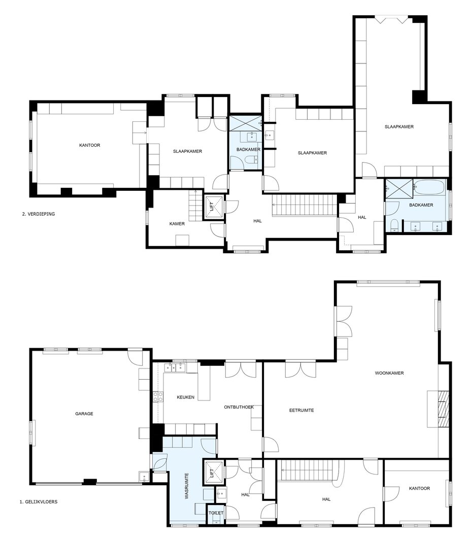
FOTOMEMORANDUM TER BESCHIKKING. De plannetjes geven inzicht in de huidige indelingen. Extra verhoogde plafonds ... . Volledig in te richten 2de verdiep met mogelijkheid van extra slaapkamer, atelier, ... .
Voor alle informatie neemt u vrijblijvend contact op met Patrick Landuyt
Gelegen in één van de mooiste groene residentiële lanen van Merelbeke.
Met comfortabele toegankelijkheid naar zowel Gent centrum als alle invalswegen, autosnelwegen E40 en E17, bedrijvencentra zoals Merelbeke, Zwijnaarde, ... en (universitaire) ziekenhuizen.
Op een mooi discreet perceel met een prachtig aangelegde voor- & achtertuin met rondom rijpere bomen en kleurrijke bloemenpracht. En een rustgevende terrasvijver. Zowel vooraan als achteraan terrasaangelegenheden. Komt u opgereden op de oprijlaan waarna u de wagen(s) kan stallen onder de dubbele carport of in de dubbele garage. Waarbij, van zodra de inkomhall van de villa is betreden, zowel de luxe afwerking, het karakter als de lichtinval direct een diepe indruk maken.
Inderdaad, de architect en de eigenaar hebben niet gespaard op de dure, duurzame en kwaliteitsvolle materialen. Perfect onderhouden.
De villa werd door de tijd heen steeds gemoderniseerd en geactualiseerd. De architect en bouwheer hebben geopteerd voor een centrale inplanting op het perceel. Waardoor extra licht, zicht en groen vanuit alle zichtpunten en met een uitgesproken ' feel good '.
Een échte 'leef & karakter' villa en met de grootste liefde onderhouden.
Comfortabel toegankelijke ruimtes en met aanwezigheid van een lift.
2 huisnummers - mits aanpassing mogelijkheid zakelijk gebruik.
FOTOMEMORANDUM TER BESCHIKKING. De plannetjes geven inzicht in de huidige indelingen. Extra verhoogde plafonds ... . Volledig in te richten 2de verdiep met mogelijkheid van extra slaapkamer, atelier, ... .
Voor alle informatie neemt u vrijblijvend contact op met Patrick Landuyt
| ID de propriété | PL.25.238 |
|---|---|
| Prix demandé | Sur demande |
| Type de maison | Villa |
| Surface habitable | 511 m² |
| Terrasopp. | - |
| Superficie du terrain | 1.874 m² |
| Année de construction | 1977 |
| Année de rénovation | 2020 |
| Chambres à coucher | 4 |
| Salles de bains | 2 |
| Garages | 2 |
| Salles de douche | 2 |
| Revenu cadastral | € 3.170 |
|---|---|
| EPC | 230 kWh/m² |
| Code unique | UC3574669-RES-2 |
| Zone inondable | Non situé dans une zone sensible |
| Prescriptions urbanistiques | Oui |
| Permis de lotir | Non |
| Occupation urbanistique | Zone d'habitat |
| Droit de préemption | Non |
| Assignation | Non |
| Décision judiciaire | Non |
PL-Real Estate Nazarethstraat 6, 9840 De Pinte
- Téléphone:+32.477.62.47.90
- Courriel:Patrick.Landuyt@PL-RealEstate.com
- Site web:www.PL-RealEstate.com
Agence




















