Statige villa nabij het golf- en meerdomein te Keerbergen
Oude Boomstraat 3, 3140 Keerbergen—Réf. 6902
Dans un quartier très résidentiel et recherché, à proximité du lac de Keerbergen, vous trouverez cette villa de caractère et majestueuse avec une généreuse surface habitable de pas moins de 377 m². Située sur un terrain de 3.293 m², cette propriété bénéficie de la tranquillité, de l'intimité et d'un environnement verdoyant.
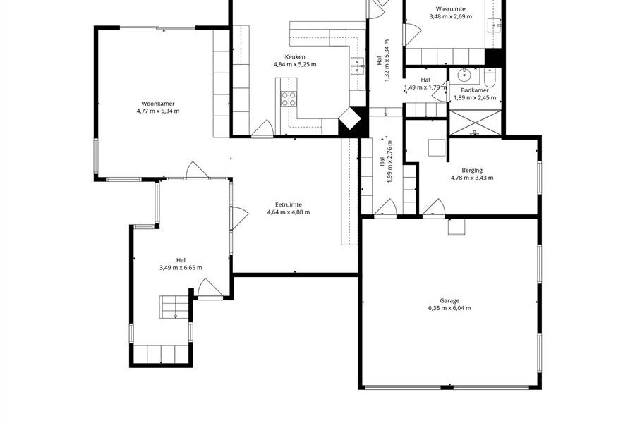
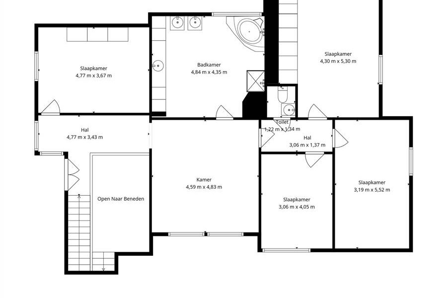
Vous entrez dans la propriété par le hall d'entrée avec les toilettes d'invités. Le salon spacieux et lumineux se connecte parfaitement à la salle à manger, idéale pour les moments familiaux et les réceptions. La cuisine entièrement équipée offre tout le confort nécessaire aux amateurs de cuisine. De plus, à ce niveau, vous trouverez une buanderie/rangement pratique, une salle de bains rénovée et un double garage. Le palier spacieux donne accès à quatre chambres généreuses, chacune avec beaucoup d'espace et de lumière. La deuxième salle de bains est équipée d'une baignoire et d'une douche, assurant un confort optimal pour toute la famille. Enfin, la propriété dispose d'un grenier de rangement, idéal pour un espace de stockage supplémentaire.
A l'extérieur, il est agréable de se détendre dans le jardin joliment aménagé et sur la terrasse couverte et chauffée.
Le double garage intérieur et la longue allée offrent un espace de stationnement plus que suffisant.
Cette propriété est la combinaison idéale d'espace, de confort et d'emplacement, parfaite pour ceux qui recherchent une expérience de vie exclusive dans un environnement vert et paisible.
Vous entrez dans la propriété par le hall d'entrée avec les toilettes d'invités. Le salon spacieux et lumineux se connecte parfaitement à la salle à manger, idéale pour les moments familiaux et les réceptions. La cuisine entièrement équipée offre tout le confort nécessaire aux amateurs de cuisine. De plus, à ce niveau, vous trouverez une buanderie/rangement pratique, une salle de bains rénovée et un double garage. Le palier spacieux donne accès à quatre chambres généreuses, chacune avec beaucoup d'espace et de lumière. La deuxième salle de bains est équipée d'une baignoire et d'une douche, assurant un confort optimal pour toute la famille. Enfin, la propriété dispose d'un grenier de rangement, idéal pour un espace de stockage supplémentaire.
A l'extérieur, il est agréable de se détendre dans le jardin joliment aménagé et sur la terrasse couverte et chauffée.
Le double garage intérieur et la longue allée offrent un espace de stationnement plus que suffisant.
Cette propriété est la combinaison idéale d'espace, de confort et d'emplacement, parfaite pour ceux qui recherchent une expérience de vie exclusive dans un environnement vert et paisible.
| ID de propriété | 6902 |
|---|---|
| Prix demandé | € 898.000 |
| Type de maison | Villa |
| Surface habitable | 377 m² |
| Terrasopp. | - |
| Superficie du terrain | 3.293 m² |
| Année de construction | 1990 |
| Année de rénovation | - |
| Chambres à coucher | 4 |
| Salles de bains | 2 |
| Garages | 2 |
| Salles de douche | - |
| Revenu cadastral | € 3.455 |
|---|---|
| EPC | 234 kWh/m² |
| Code unique | 20260314-0003823773-RES-1 |
| Zone inondable | - |
| Prescriptions urbanistiques | Oui |
| Permis de lotir | - |
| Occupation urbanistique | Parc résidentiel |
| Droit de préemption | Non |
| Assignation | Non |
| Décision judiciaire | - |
Immo Vercammen Mechelbaan 509, 2580 Putte
- Téléphone:+32.15.75.54.44
- Courriel:info@immovercammen.be
- Site web:www.immovercammen.be


































