HEUSDEN-ZOLDER - Hoeve met paardenaccommodatie
Obbeekstraat 20 en 22, 3550 Heusden-Zolder—Réf. # 7653634
HEUSDEN-ZOLDER - Hoeve met paardenaccommodatie
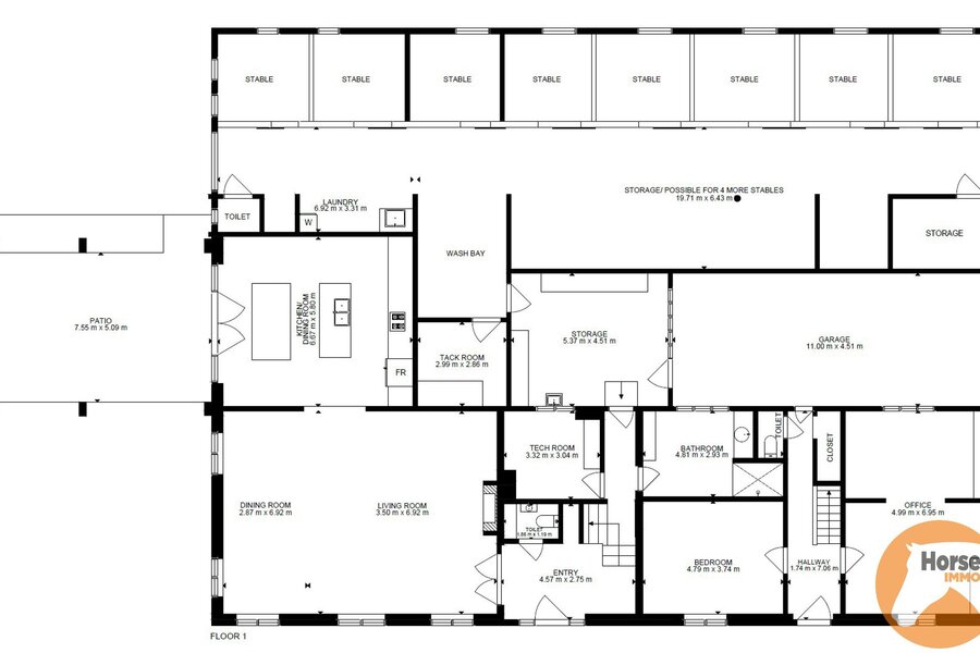
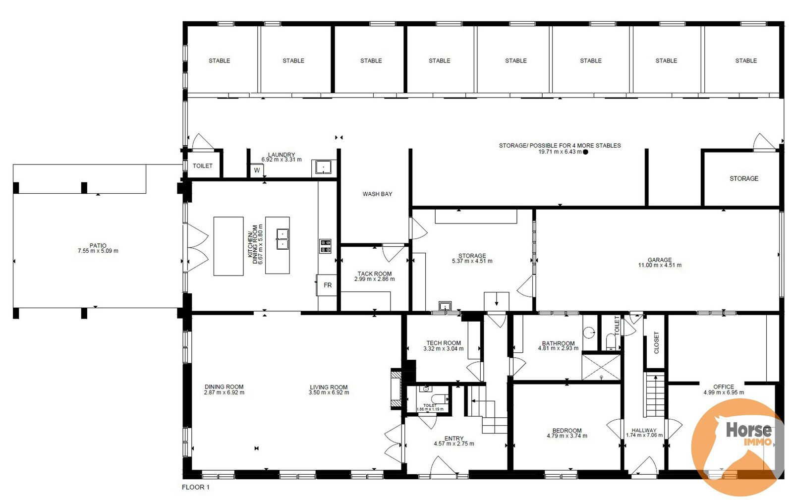
Deze statige hoeve onderging in 2008 een totaalrenovatie waarbij er veel aandacht werd besteed aan kwalitatieve materialen. De hoeve is zeer groot en omvat momenteel aan de linkerzijde het woongedeelte en aan de rechterzijde een 2e woongedeelte (momenteel kantoor). Direct aanpalend aan de achterzijde van de hoeve en met een directe toegang vanuit de woning werd er in 2008 een stalgebouw aangebouwd waarin diverse opslagruimtes en zadelkamer, een wasplaats met solarium en 8 nette paardenboxen. Er is tevens ruimte om nog 4 bijkomende boxen te plaatsen in dit gebouw alsook treffen we hier nog een zeer praktisch garage met hoge poort.
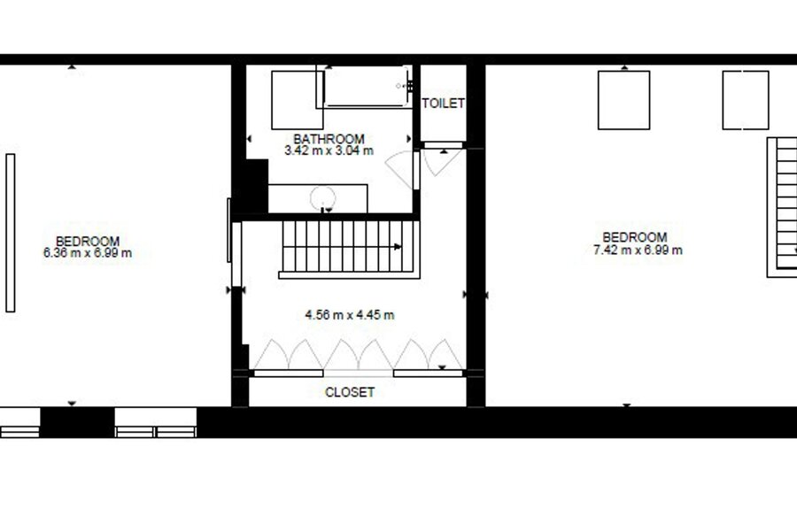
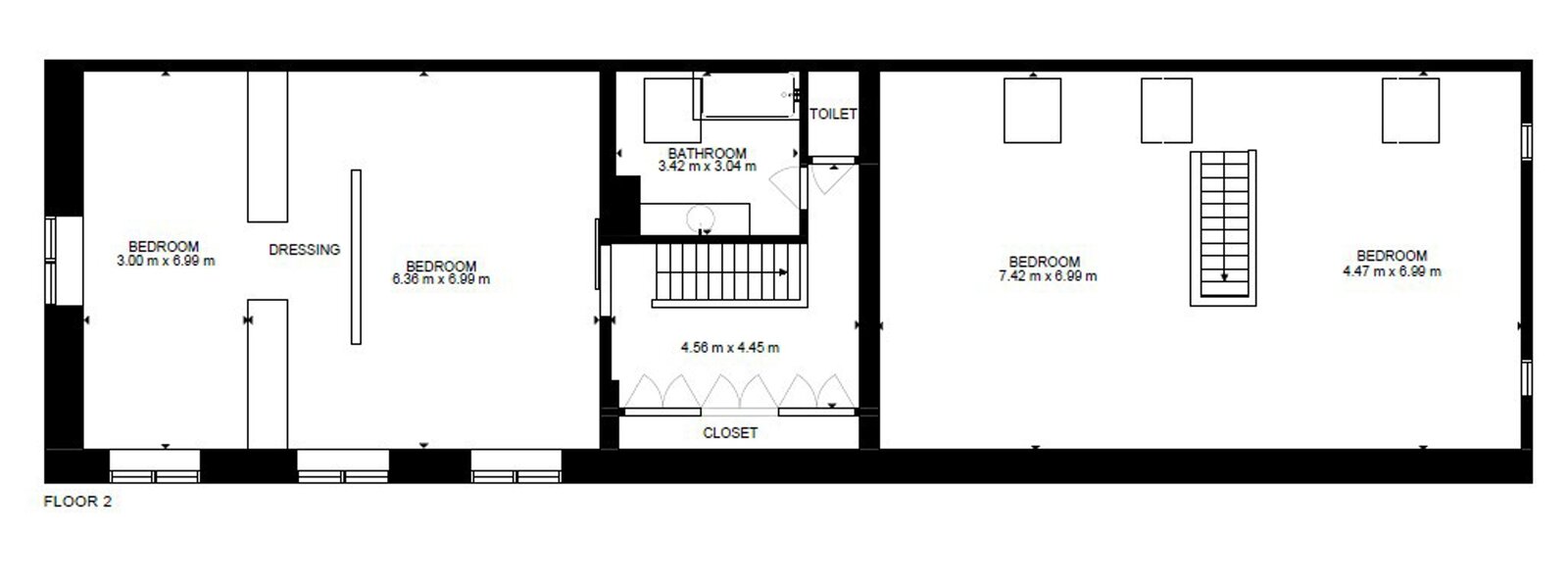
Op de eerste verdieping treffen 2 dressings en enorm ruime slaapkamers waar zeer eenvoudig meerdere kamers kunnen gecreëerd worden.
Dankzij de 2 huisnummers, 2 toegangen, 2 trappen, enz ... kan deze woning perfect dienen als kangoeroewoning. Zie ook plannen.
Buiten werd alles netjes ingericht.
De eb en vloed piste heeft een afmeting van 25m x 50m en is voorzien van de nodige verlichting. Er zijn nog 5 weides voorzien van houten omheining.
De weides zijn achteraan te betreden met vrachtwagen of tractor en er is voldoende opslag voor tractor, hooi ea.
De eigendom is onmiddellijk vrij en u kan bovendien meteen wonen en paarden stallen zonder bijkomend werk.
Bovendien kan er 1ha5 bijkomend weiland aangekocht worden.
Voor meer informatie of een bezoek, kan u ons steeds contacteren: 053/60.65.66
Deze statige hoeve onderging in 2008 een totaalrenovatie waarbij er veel aandacht werd besteed aan kwalitatieve materialen. De hoeve is zeer groot en omvat momenteel aan de linkerzijde het woongedeelte en aan de rechterzijde een 2e woongedeelte (momenteel kantoor). Direct aanpalend aan de achterzijde van de hoeve en met een directe toegang vanuit de woning werd er in 2008 een stalgebouw aangebouwd waarin diverse opslagruimtes en zadelkamer, een wasplaats met solarium en 8 nette paardenboxen. Er is tevens ruimte om nog 4 bijkomende boxen te plaatsen in dit gebouw alsook treffen we hier nog een zeer praktisch garage met hoge poort.
Op de eerste verdieping treffen 2 dressings en enorm ruime slaapkamers waar zeer eenvoudig meerdere kamers kunnen gecreëerd worden.
Dankzij de 2 huisnummers, 2 toegangen, 2 trappen, enz ... kan deze woning perfect dienen als kangoeroewoning. Zie ook plannen.
Buiten werd alles netjes ingericht.
De eb en vloed piste heeft een afmeting van 25m x 50m en is voorzien van de nodige verlichting. Er zijn nog 5 weides voorzien van houten omheining.
De weides zijn achteraan te betreden met vrachtwagen of tractor en er is voldoende opslag voor tractor, hooi ea.
De eigendom is onmiddellijk vrij en u kan bovendien meteen wonen en paarden stallen zonder bijkomend werk.
Bovendien kan er 1ha5 bijkomend weiland aangekocht worden.
Voor meer informatie of een bezoek, kan u ons steeds contacteren: 053/60.65.66
| ID de propriété | # 7653634 |
|---|---|
| Prix demandé | € 1.195.000 |
| Type de maison | Villa |
| Surface habitable | 389 m² |
| Terrasopp. | - |
| Superficie du terrain | 10.260 m² |
| Année de construction | 1918 |
| Année de rénovation | 2008 |
| Chambres à coucher | 3 |
| Salles de bains | 2 |
| Garages | 2 |
| Salles de douche | - |
| Revenu cadastral | € 1.052 |
|---|---|
| EPC | 115 kWh/m² |
| Code unique | 20230811-0002962884-RES-1 |
| Zone inondable | Non situé dans une zone sensible |
| Prescriptions urbanistiques | Oui |
| Permis de lotir | Non |
| Occupation urbanistique | Zone agricole |
| Droit de préemption | Non |
| Assignation | Non |
| Décision judiciaire | - |
Horse Immo Hoogstraat 20, 9340 Lede
- Téléphone:+32.53.60.65.66
- Courriel:info@horse-immo.be
- Site web:www.horse-immo.be






















































