À vendre à Kapelle-op-den-Bos, maison avec possibilités.
Tisseltstraat 90, 1880 Kapelle-op-den-Bos—Réf. 1487216
À vendre à Kapelle-op-den-Bos : maison spacieuse offrant de nombreuses possibilités et un accès facile à Bruxelles, Malines et Anvers.
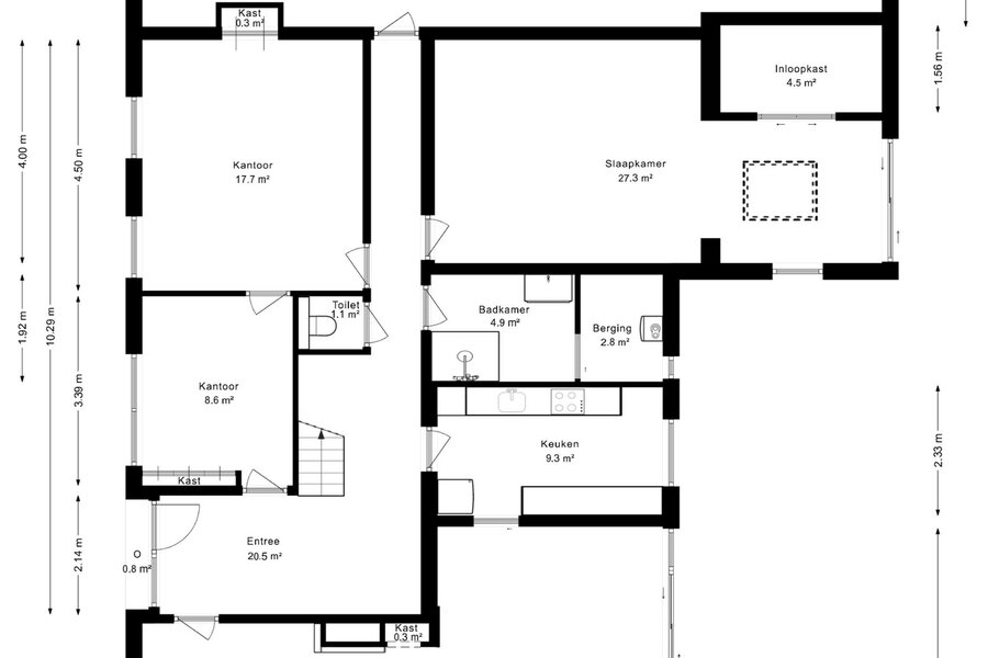
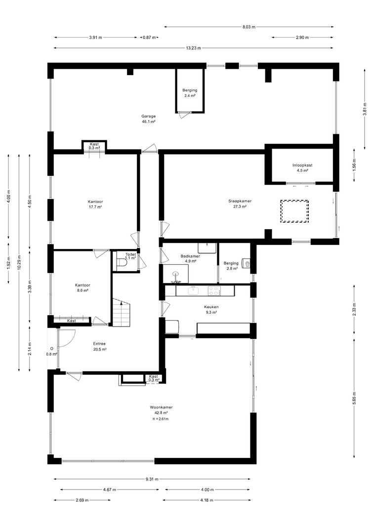
Cette maison compte au total 5 à 6 chambres et 2 salles de bains, ce qui en fait un logement idéal pour les familles nombreuses ou pour ceux qui recherchent davantage d'espace. Grâce à ses 2 chambres et sa salle de bains situées au rez-de-chaussée, elle convient également parfaitement aux personnes âgées qui souhaitent éviter les escaliers. Le cadre rural allie calme et accessibilité. La maison est située à proximité des écoles, des commerces, des transports en commun et de la gare. Vous bénéficiez d'un accès rapide aux villes environnantes grâce à l'autoroute toute proche. D'autres villages tels que Londerzeel, Meise, Wolvertem et Grimbergen sont très facilement accessibles.
Pièces principales :
• Grand garage
• Bureau avec placards intégrés
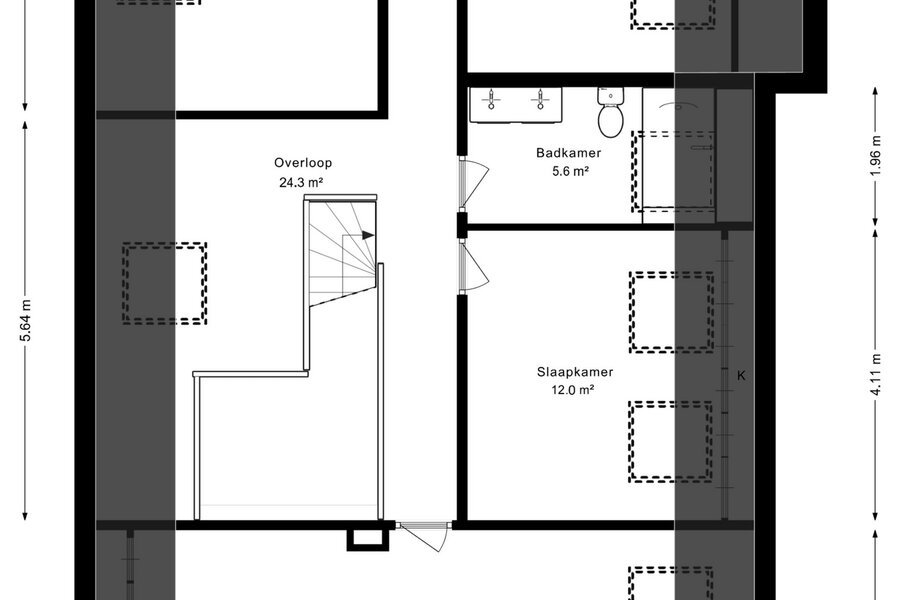
• Chambres 5 à 6 (32 m² - 17 m² - 13 m² - 9 m² - 27 m² - 30 m²)
• Salle de bains avec douche à l'italienne, lavabo.
• Mezzanine (7 m²)
• Salle de bains avec baignoire, toilettes et lavabo
• Cuisine
• Hall d'entrée (10 m²)
Atouts :
• 5 à 6 chambres et 2 salles de bains
• Possibilité de vivre sans monter d'escaliers grâce à 2 chambres et 1 salle de bains au rez-de-chaussée
• Liaison facile vers Bruxelles, Malines et Anvers
Vous souhaitez visiter ? Contactez ERA LEUS & TOYE au 02/335.11.12 et prenez rendez-vous avec Thierry Van Campenhout.
| ID de propriété | 1487216 |
|---|---|
| Prix demandé | € 635.000 |
| Type de maison | Villa |
| Surface habitable | 300 m² |
| Terrasopp. | - |
| Superficie du terrain | 825 m² |
| Année de construction | 1968 |
| Année de rénovation | - |
| Chambres à coucher | 5 |
| Salles de bains | 2 |
| Garages | 1 |
| Salles de douche | - |
| Revenu cadastral | € 1.254 |
|---|---|
| EPC | 338 kWh/m² |
| Code unique | 20250218-0003532560-RES-1 |
| Zone inondable | Non situé dans une zone sensible |
| Prescriptions urbanistiques | Oui |
| Permis de lotir | Non |
| Occupation urbanistique | Zone agricole |
| Droit de préemption | Oui |
| Assignation | - |
| Décision judiciaire | - |
ERA Leus & Toye Parklaan 28, 1930 Zaventem
- Téléphone:+32.2.725.20.02
- Courriel:leus@era.be
- Site web:www.era.be/nl/era-leus-vastgoed

























