KANTWERK, moderne nieuwbouwvilla
Kantwerkersstraat 3, 8650 Klerken—Réf. 4198945
KANTWERK is een kleinschalig en uiterst energiezuinig nieuwbouwproject bestaande uit 3 gekoppelde woningen in landelijke stijl en één moderne alleenstaande villa gelegen langs de Kantwerkersstraat.
Bouwonderneming Canneyt BV is niet aan zijn proefstuk toe. Door hun jarenlange ervaring weten deze vakmensen wat de behoeftes zijn van hun klanten.
Comfort, energiezuinigheid, kwaliteit en een afwerking tot in de kleinste details zijn dan ook de eigenschappen van deze kleinschalige realisatie.
Tijdens de ontwerpfase werd veel aandacht geschonken aan enerzijds de energiezuinigheid en anderzijds het wooncomfort van de bewoners:
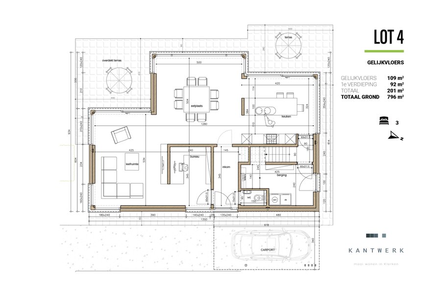
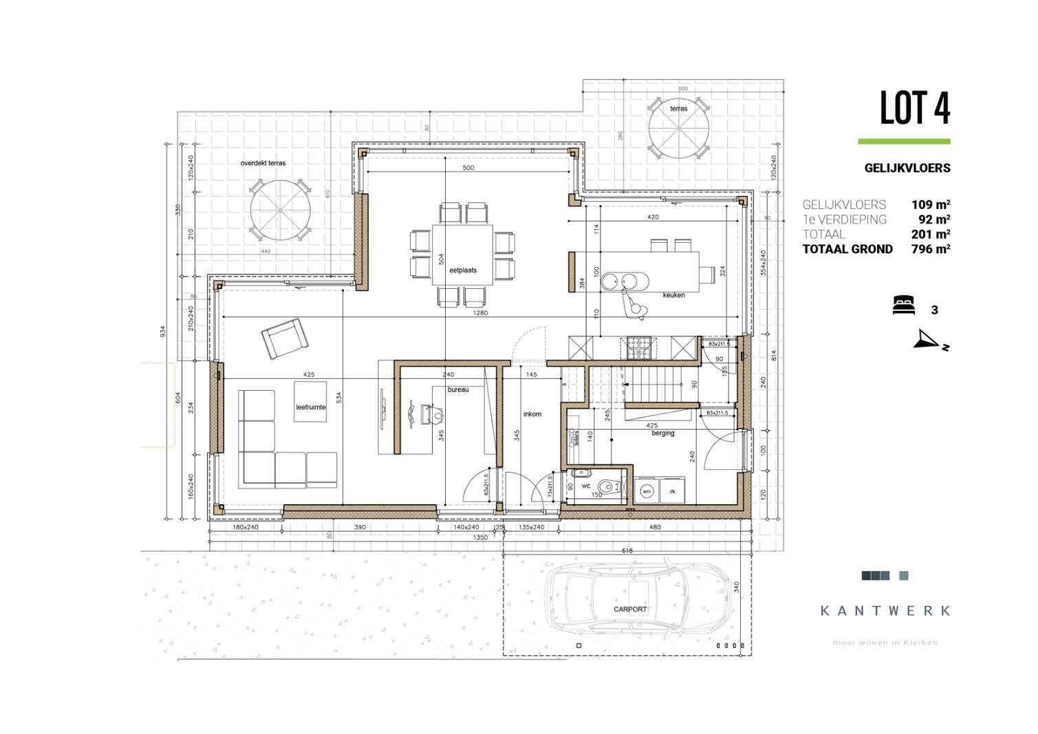
Indeling van villa: Op het gelijkvloers bevinden zich de ruime inkomhal met gastentoilet, de royaal ingedeelde leefruimte met open keuken van meer dan 60 m² en de aansluitende bureauruimte van 8 m². Op de eerste verdieping beschikt men over 3 slaapkamers (13,45 m², 13,45 m² en 17,84 m²) en een badkamer uitgerust met ligbad, douche, dubbele lavabo en aansluitende inloopdressing. De eerste verdieping is overigens ook voorzien van een afzonderlijk toilet en een berging. Buiten is de tuin volledig omheind en is de carport aangelegd en afgewerkt met een oprit in grindmatten. Daarnaast stippen we ook nog aan dat deze woning is opgebouwd met hoogwaardige ALU raamprofielen voorzien van screens.
Lastenboek:
Het lastenboek voorziet ruime budgetten voor verdere afwerking van uw droomwoning. De bouwheer heeft hierin kosten nog moeite gespaard om u verder te begeleiden in samenwerking met de betere leveranciers in de regio. We geven u hierover graag wat meer uitleg bij een gesprek op kantoor of tijdens een bezoek aan de werf.
Villa: Gerealiseerd op een ruim perceel van 796 m² en maar liefst 201 m2 aan bewoonbare oppervlakte.
Wat maakt KANTWERK uniek:
De oplevering van dit nieuwbouwproject is voorzien voorjaar 2025.
De afwerkingen voor tuin en terras zitten niet inbegrepen in bovenstaande prijszetting (meer info betreft oplevering en een uitgewerkte detailprijs per woning op aanvraag).
Bent u op zoek naar een unieke nieuwbouwwoning in landelijke stijl of een moderne alleenstaande villa? Plan dan snel uw afspraak! Contacteer ons op het nummer 051 50 11 51 of via diksmuide@diksimmo.be.
Bouwonderneming Canneyt BV is niet aan zijn proefstuk toe. Door hun jarenlange ervaring weten deze vakmensen wat de behoeftes zijn van hun klanten.
Comfort, energiezuinigheid, kwaliteit en een afwerking tot in de kleinste details zijn dan ook de eigenschappen van deze kleinschalige realisatie.
Tijdens de ontwerpfase werd veel aandacht geschonken aan enerzijds de energiezuinigheid en anderzijds het wooncomfort van de bewoners:
- Praktische indeling;
- veel lichtinval;
- vloerverwarming;
- warmtepomp (lucht/water) met zonnepanelen;
- vergaande afwerking;
- ...
Indeling van villa: Op het gelijkvloers bevinden zich de ruime inkomhal met gastentoilet, de royaal ingedeelde leefruimte met open keuken van meer dan 60 m² en de aansluitende bureauruimte van 8 m². Op de eerste verdieping beschikt men over 3 slaapkamers (13,45 m², 13,45 m² en 17,84 m²) en een badkamer uitgerust met ligbad, douche, dubbele lavabo en aansluitende inloopdressing. De eerste verdieping is overigens ook voorzien van een afzonderlijk toilet en een berging. Buiten is de tuin volledig omheind en is de carport aangelegd en afgewerkt met een oprit in grindmatten. Daarnaast stippen we ook nog aan dat deze woning is opgebouwd met hoogwaardige ALU raamprofielen voorzien van screens.
Lastenboek:
Het lastenboek voorziet ruime budgetten voor verdere afwerking van uw droomwoning. De bouwheer heeft hierin kosten nog moeite gespaard om u verder te begeleiden in samenwerking met de betere leveranciers in de regio. We geven u hierover graag wat meer uitleg bij een gesprek op kantoor of tijdens een bezoek aan de werf.
Villa: Gerealiseerd op een ruim perceel van 796 m² en maar liefst 201 m2 aan bewoonbare oppervlakte.
Wat maakt KANTWERK uniek:
- Energiezuinig project (warmtepomp (l/w), zonnepanelen per woning,…);
- kleinschalig project;
- rustige ligging;
- kwalitatieve architectuur en materiaalkeuze;
- tot in de puntjes afgewerkt, geen bijkomende kosten meer voor de koper;
- ...
De oplevering van dit nieuwbouwproject is voorzien voorjaar 2025.
De afwerkingen voor tuin en terras zitten niet inbegrepen in bovenstaande prijszetting (meer info betreft oplevering en een uitgewerkte detailprijs per woning op aanvraag).
Bent u op zoek naar een unieke nieuwbouwwoning in landelijke stijl of een moderne alleenstaande villa? Plan dan snel uw afspraak! Contacteer ons op het nummer 051 50 11 51 of via diksmuide@diksimmo.be.
| ID de propriété | 4198945 |
|---|---|
| Prix demandé | € 617.500 |
| Type de maison | Villa |
| Surface habitable | 201 m² |
| Terrasopp. | - |
| Superficie du terrain | 796 m² |
| Année de construction | 2024 |
| Année de rénovation | - |
| Chambres à coucher | 3 |
| Salles de bains | 1 |
| Garages | - |
| Salles de douche | - |
| Revenu cadastral | - |
|---|---|
| EPC | - |
| Code unique | - |
| Zone inondable | Non situé dans une zone sensible |
| Prescriptions urbanistiques | Oui |
| Permis de lotir | Oui |
| Occupation urbanistique | Zone d'habitat |
| Droit de préemption | Non |
| Assignation | Non |
| Décision judiciaire | - |
Diksimmo Esenweg 197, 8600 Diksmuide
- Téléphone:+32.51.50.11.51
- Courriel:diksmuide@diksimmo.be
- Site web:www.diksimmo.be
Agence




































