Moderne en energieneutrale nieuwbouwwoning
Molenbaan 71, 2920 Kalmthout—Ref. 7198381
Moderne en energieneutrale nieuwbouwwoning in moderne stijl – E-peil -2 gelegen nabij het centrum van Heide, station, winkels en openbaar vervoer
Prachtig afgewerkte nieuwbouwwoning die modern wooncomfort, energie-efficiëntie en een hoogwaardige afwerking moeiteloos combineert. Dankzij de bodem-water warmtepomp, vloerverwarming (koeling ook mogelijk), zonnepanelen, automatische zonnescreens én maatwerkkasten geniet je hier van een luxueus en duurzaam woonklimaat met een verwacht E-peil van -2.
De woning is rustig gelegen in een gezellige en kindvriendelijke wijk, op korte afstand van het centrum van Heide.
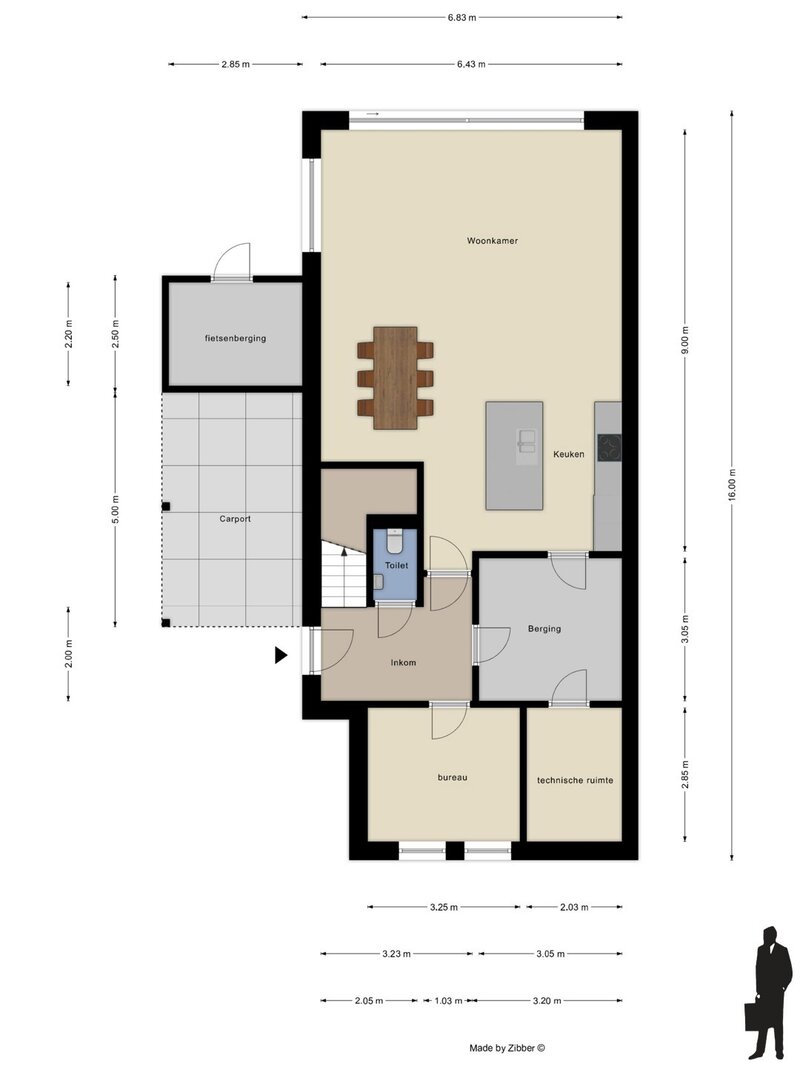
Indeling gelijkvloers:
-een lichtrijke leefruimte met open zicht op de tuin
-een luxe ingerichte keuken met kwalitatieve toestellen
-drie praktische bergingen
-een gastentoilet én een aparte bureauruimte: ideaal voor thuiswerk of een hobby.
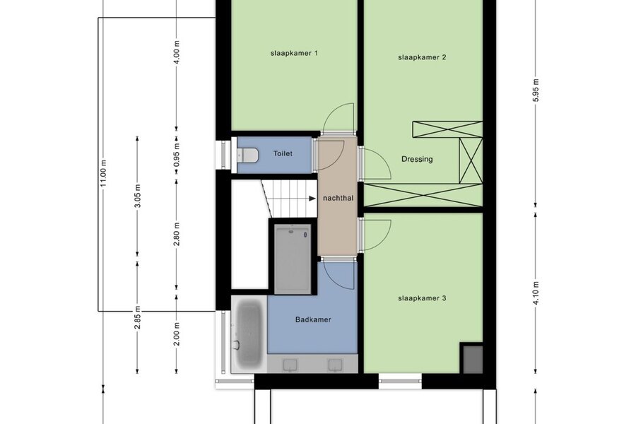
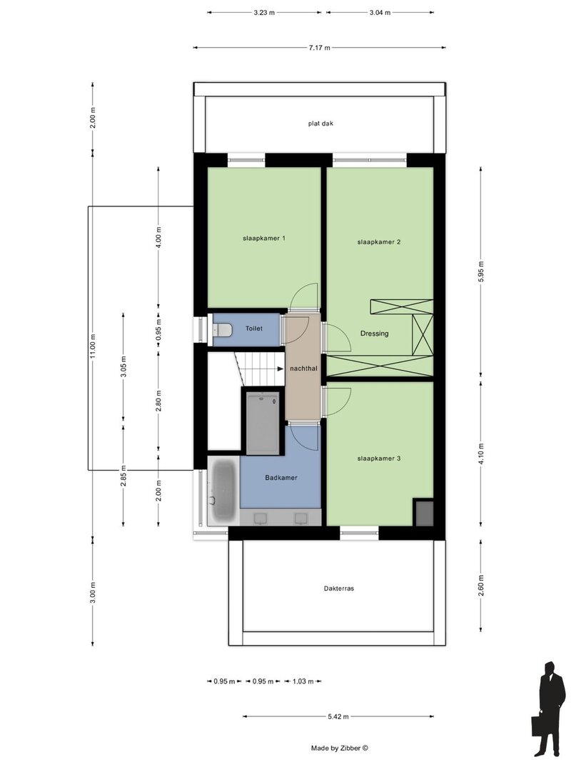
Verdieping:
-een stijlvolle badkamer met hoogwaardige afwerking,
-een apart nachttoilet en drie ruime slaapkamers. Eén van de slaapkamers is momenteel ingericht als dressing, maar kan eventueel opnieuw als slaapkamer worden benut.
Buitenruimte:
Parkeren doe je comfortabel onder de carport of op de oprit. Achteraan geniet je van een volledig omheinde, fraai aangelegde tuin met een terras, hagen en gazon. Een ruime tuinberging biedt plaats aan fietsen en tuingerief.
Deze woning is werkelijk tot in de puntjes afgewerkt (inclusief schilderwerk) en biedt een instapklare, toekomstgerichte woonoplossing op een toplocatie.
Grondaandeel bedraagt € 250.000 (+ 12% registratierechten).
5 jaar vrijstelling onroerende voorheffing
Constructie-aandeel bedraagt € 399.000 (+ 6% btw mits je aan de voorwaarden voldoet, anders is het 21% btw).
De prijs is exclusief btw, registratie, notariskosten en kosten aansluiting nutsvoorziening.
| Vastgoed ID | 7198381 |
|---|---|
| Vraagprijs | € 649.000 |
| Woningtype | Villa |
| Woonopp. | 187 m² |
| Terrasopp. | - |
| Perceelopp. | 372 m² |
| Bouwjaar | 2025 |
| Renovatiejaar | - |
| Slaapkamers | 3 |
| Badkamers | 1 |
| Garages | - |
| Douchekamers | - |
| Kadastraal Inkomen | - |
|---|---|
| EPC | - |
| Unieke code | - |
| Overstromingsgebied | Niet gelegen in gevoelig gebied |
| Stedenbouwkundige vergunning | Ja |
| Verkavelingsvergunning | Ja |
| Stedenbouwkundige bestemming | Woongebied |
| Voorkooprecht | Nee |
| Dagvaarding | Nee |
| Rechterlijke beslissing | - |
De Boer & Partners Immobiliën Groep Heidestatiestraat 26, 2920 Kalmthout
- Telefoon:+32.3.685.75.70
- Email:kalmthout@deboerenpartners.be
- Website:www.deboerenpartners.be
- Maandag - VrijdagOpen van 09.00 - 17.00
- Zaterdag Open van 10.00 - 14.00
- Zondag Gesloten
Makelaar











































