Ruime recente woning in groene omgeving nabij Tervuren
Ortar de Pauwstraat 10, 3080 Tervuren—Ref. 1468171
Deze recente woning verkeert in een staat vergelijkbaar met nieuw en werd steeds uitstekend onderhouden. Met een bruikbare vloeroppervlakte van maar liefst 199 m² biedt de woning bijzonder veel ruimte en comfort.
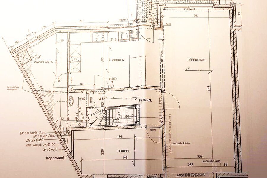
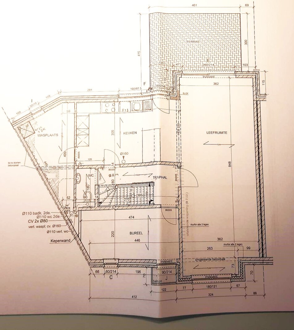
De indeling is functioneel: op het straatniveau bevinden zich de inkomhal, een bureel, verschillende kelders en een garage met plaats voor twee wagens. Op tuinniveau vindt u een gastentoilet, een volledig uitgeruste keuken, een wasplaats, een eetplaats, een ruime woonkamer, een bijkomend bureel en een aangenaam tuin-terras.
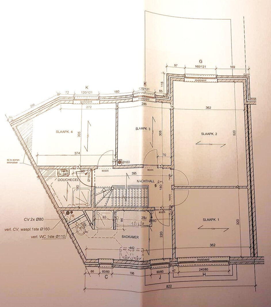
De verdieping omvat vier volwaardige slaapkamers en twee badkamers, wat deze woning ideaal maakt voor gezinnen of voor wie wonen en werken wil combineren.
De woning is rustig gelegen nabij het centrum van Tervuren, in een groene omgeving. Openbaar vervoer, scholen, winkels, sportfaciliteiten en het park bevinden zich op wandelafstand. Bovendien ligt het Arboretum in de onmiddellijke nabijheid.
Deze woning is energiezuinig. De elektrische installatie is conform.
Maak een afspraak via
https://mijnhuurprofiel.be/property/941694d3-d05d-4fba-b9ee-f9b31559a494
| Vastgoed ID | 1468171 |
|---|---|
| Vraagprijs | € 2.190 |
| Woningtype | Villa |
| Woonopp. | 199 m² |
| Terrasopp. | - |
| Perceelopp. | 101 m² |
| Bouwjaar | 2013 |
| Renovatiejaar | - |
| Slaapkamers | 4 |
| Badkamers | 2 |
| Garages | - |
| Douchekamers | - |
| Kadastraal Inkomen | - |
|---|---|
| EPC | 126 kWh/m² |
| Unieke code | 24104-G-2008/0228/EP12733/A001/D01/SD001 |
| Overstromingsgebied | Niet gelegen in gevoelig gebied |
| Stedenbouwkundige vergunning | Ja |
| Verkavelingsvergunning | Nee |
| Stedenbouwkundige bestemming | Woongebied |
| Voorkooprecht | Nee |
| Dagvaarding | Nee |
| Rechterlijke beslissing | - |
ERA IMMPULS Stationsplein 7, 3090 Overijse
- Telefoon:+32.2.688.06.68
- Email:immpuls@era.be
- Website:www.era.be/nl/era-immpuls

















