Ruime woning met karakter te koop in Meise.
Zonnelaan 9, 1860 Meise—Ref. 1487204
Te koop in Meise: karaktervolle open bebouwing in het centrum van Meise, op wandelafstand van scholen, openbaar vervoer en groene parken.
Deze woning combineert authentieke charme met bereikbaarheid. Dankzij de aanwezige zonnepanelen en twee batterijen (20 kWh) geniet u van duurzame energie en lagere energiekosten. De kamer met badkamer op het gelijkvloerse verdiep biedt extra comfort en flexibiliteit. Bovendien leent de woning zich perfect voor diverse woonvormen zoals co-housing, kangoeroe wonen of een vrij beroep. Andre dorpen zoals Wemmel, Grimbergen en Kapelle-op-den-Bos zijn makkelijk bereikbaar. Je geniet van een snelle verbinding naar de omliggende steden Brussel/Antwerpen via de autostrade.
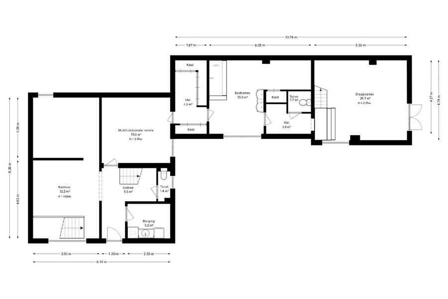
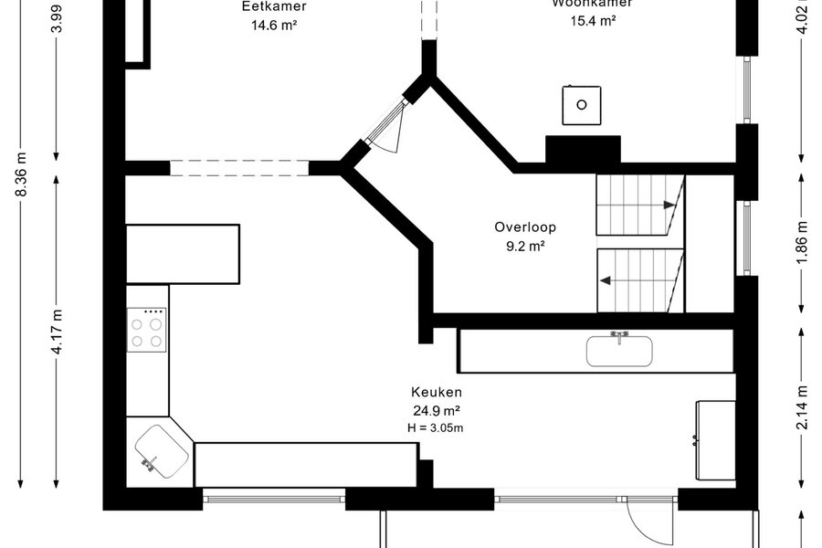
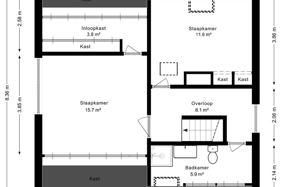
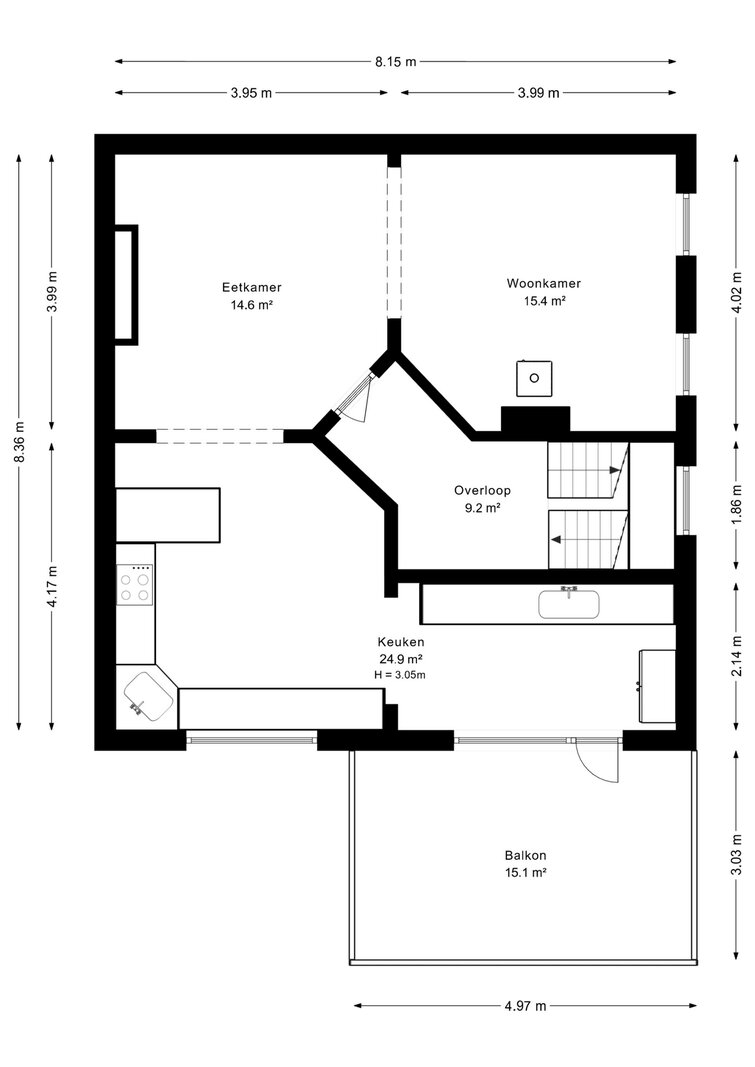
Belangrijkste ruimtes:
• Inkomhal met videofoon
• Hobbyruimte met TV-hoek en ingemaakte kasten
• Wijnkelder
• Bureel
• 2 Badkamers met douche, toilet en wastafel
• Slaapkamer met ingemaakte kasten ( 3 tot 4 slaapkamers)
• Terras
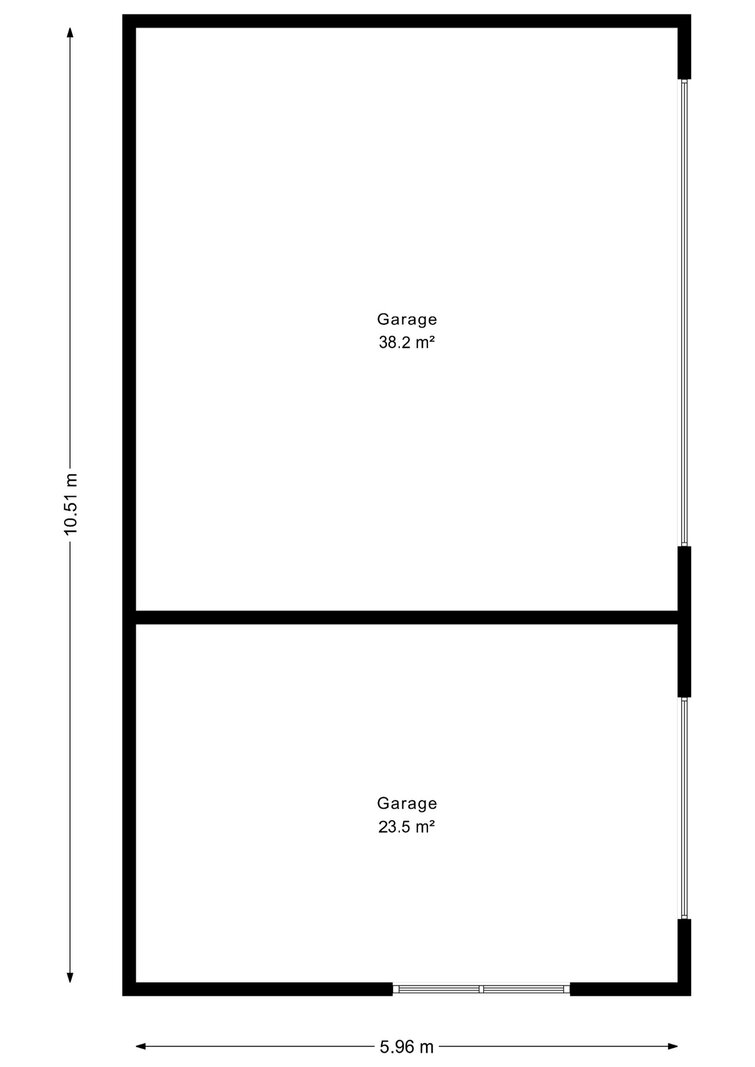
• Garage voor 3 wagens met automatische sectionale poort
• Wasplaats
Troeven:
• Zonnepanelen met 2 batterijen (20 kWh)
• Gelijkvloerse kamer met badkamer,
• Geschikt voor co-housing, kangoeroe wonen of vrij beroep
• Conforme elektriciteit en GEEN renovatie verplichting
Wens je een bezoek? Contacteer dan ERA LEUS & TOYE via 02/335.11.12 en plan een afspraak met Thierry Van Campenhout.
| Vastgoed ID | 1487204 |
|---|---|
| Vraagprijs | € 825.000 |
| Woningtype | Villa |
| Woonopp. | 260 m² |
| Terrasopp. | - |
| Perceelopp. | 1.535 m² |
| Bouwjaar | 1930 |
| Renovatiejaar | - |
| Slaapkamers | 4 |
| Badkamers | 2 |
| Garages | 2 |
| Douchekamers | - |
| Kadastraal Inkomen | € 2.191 |
|---|---|
| EPC | 390 kWh/m² |
| Unieke code | 20251110-0003566672-RES-3 |
| Overstromingsgebied | Niet gelegen in gevoelig gebied |
| Stedenbouwkundige vergunning | Ja |
| Verkavelingsvergunning | Nee |
| Stedenbouwkundige bestemming | Woongebied |
| Voorkooprecht | Ja |
| Dagvaarding | - |
| Rechterlijke beslissing | - |
ERA Leus & Toye Parklaan 28, 1930 Zaventem
- Telefoon:+32.2.725.20.02
- Email:leus@era.be
- Website:www.era.be/nl/era-leus-vastgoed






























