Nieuwbouwduplex te koop in Nieuwpoort
Albert I laan 37 bus 03.03, 8620 Nieuwpoort—Ref. 1371340
[[ DIT PAND NEEMT DEEL AAN DE ERA OPEN HUIZEN DAG OP 6/12 VAN 14:30 TOT 15:30 ]]
strong>Nieuwpoort: Luxueuze nieuwbouwduplex met ruime terrassen vlak bij het centrum!
Ontdek deze duplex van het prestigieuze nieuwbouwproject Sailor's Park 5 - Villa Manta.
Dit exclusief woonproject op slechts 2 km van de Zeedijk is gelegen in een rustige en residentiële buurt nabij het commerciële centrum van Nieuwpoort!
Met zijn moderne architectuur en hoogwaardige afwerking biedt deze residentie een unieke woonervaring voor wie op zoek is naar luxe en comfort aan de Belgische kust.
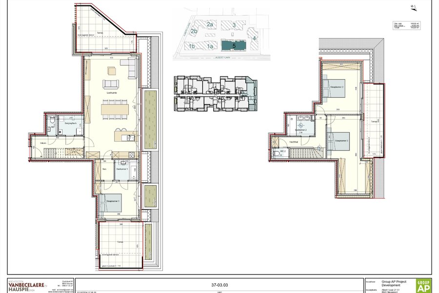
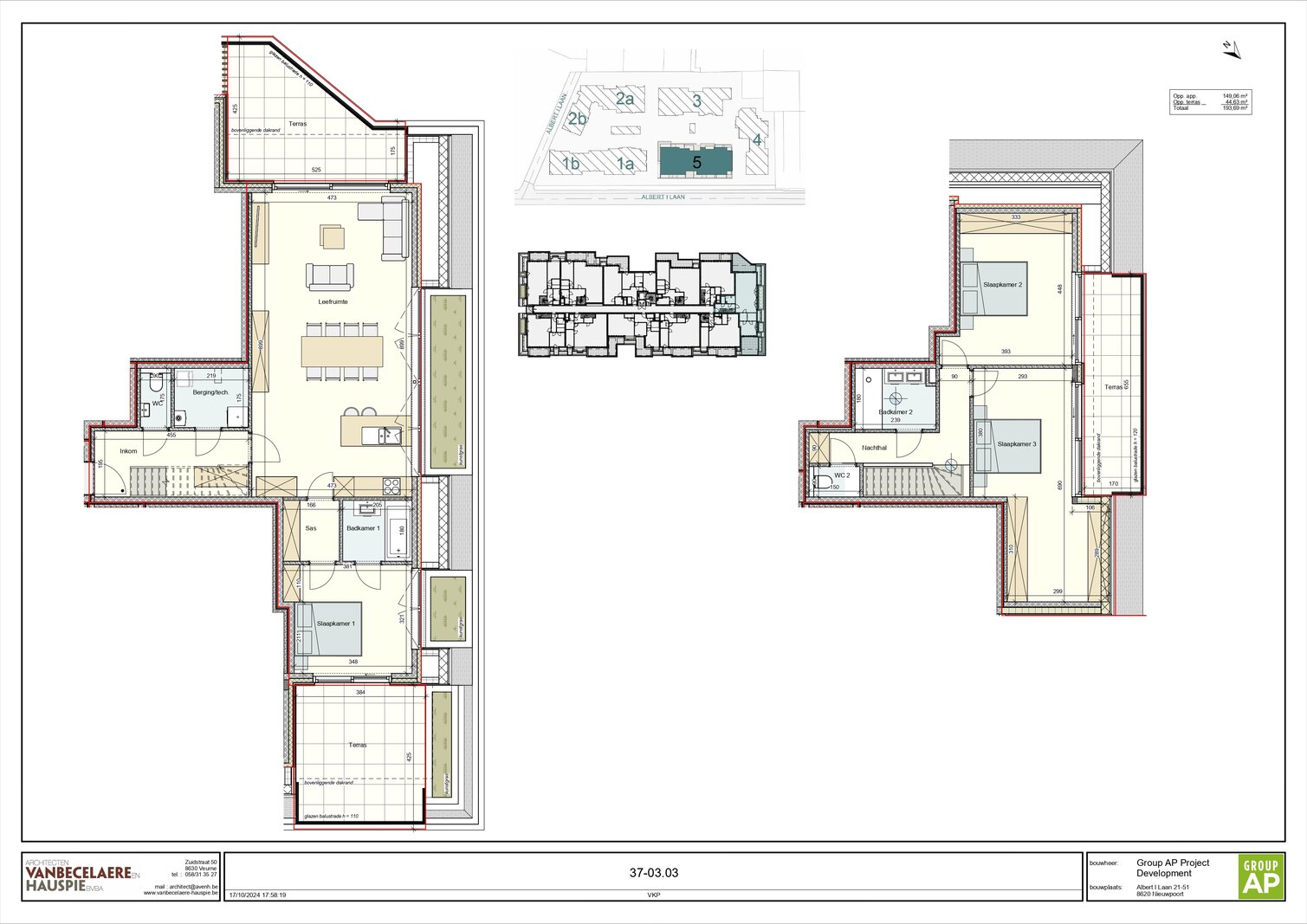
Indeling:
- op de 3de verdieping: Inkomhal, gastentoilet, berging met aansluiting voor wasmachine, trap, leefruimte met open keuken , zithoek, eethoek en aangrenzend zonneterras, slaapkamer 1 met aangrenzend terras en on-suite badkamer met enkele wastafel in meubel en keuze tussen ligbad, inloopdouche of hoekdouche.
- op de vierde verdieping: nachthal, slaapkamer 2, badkamer 2 met dubbele wastafel in meubel en keuze tussen ligbad, inloopdouche of hoekdouche, apart toilet, slaapkamer 3 met dressing en terras.
Ontdek deze duplex van het prestigieuze nieuwbouwproject Sailor's Park 5 - Villa Manta.
Dit exclusief woonproject op slechts 2 km van de Zeedijk is gelegen in een rustige en residentiële buurt nabij het commerciële centrum van Nieuwpoort!
Met zijn moderne architectuur en hoogwaardige afwerking biedt deze residentie een unieke woonervaring voor wie op zoek is naar luxe en comfort aan de Belgische kust.
Indeling:
- op de 3de verdieping: Inkomhal, gastentoilet, berging met aansluiting voor wasmachine, trap, leefruimte met open keuken , zithoek, eethoek en aangrenzend zonneterras, slaapkamer 1 met aangrenzend terras en on-suite badkamer met enkele wastafel in meubel en keuze tussen ligbad, inloopdouche of hoekdouche.
- op de vierde verdieping: nachthal, slaapkamer 2, badkamer 2 met dubbele wastafel in meubel en keuze tussen ligbad, inloopdouche of hoekdouche, apart toilet, slaapkamer 3 met dressing en terras.
Troeven:
- Grote recreactieruimte met verwarmde zwembaden, petanquevelden,...
- Optimale geluidsisolatie voor extra privacy.
- Moderne energie-efficiëntie en ventilatiesysteem.
Meer informatie? Contacteer Gert op 058 22 22 22.
| Vastgoed ID | 1371340 |
|---|---|
| Vraagprijs | € 650.000 |
| Woningtype | Appartement |
| Woonopp. | 149 m² |
| Terrasopp. | - |
| Perceelopp. | 193 m² |
| Bouwjaar | 2025 |
| Renovatiejaar | - |
| Slaapkamers | 3 |
| Badkamers | 2 |
| Garages | - |
| Douchekamers | - |
| Kadastraal Inkomen | - |
|---|---|
| EPC | - |
| Unieke code | - |
| Overstromingsgebied | Niet medegedeeld |
| Stedenbouwkundige vergunning | Ja |
| Verkavelingsvergunning | Nee |
| Stedenbouwkundige bestemming | Woongebied |
| Voorkooprecht | Nee |
| Dagvaarding | - |
| Rechterlijke beslissing | - |
ERA Servimo Zeelaan 276, 8670 Koksijde
- Telefoon:+32.58.51.23.23
- Email:servimo@era.be
- Website:www.era.be/nl/era-servimo
- Maandag - ZaterdagOpen van 09.00 - 12.30 – 13.30 - 17.30
- Zondag Gesloten
Makelaar























