Uitzonderlijke villa !
5550 Vresse-sur-Semois—Ref. Crêtes 2
Deze uitzonderlijke villa kijkt uit op een prachtig terrein van bijna één hectare (op te meten door een landmeter). Aan de voet van dit terrein : een poort die toegang geeft tot de Semois en een pad dat aansluit op de beroemde brug Saint-Lambert.
Ten noorden van het terrein : 2 te herstellen vijvers, gevoed door de stroom van Petit-Fays (oppervlakte van de twee vijvers ongeveer 5 are).
In dezelfde straat (op 25 meter van de villa) : 2 garages en 2 parkeerplaatsen.
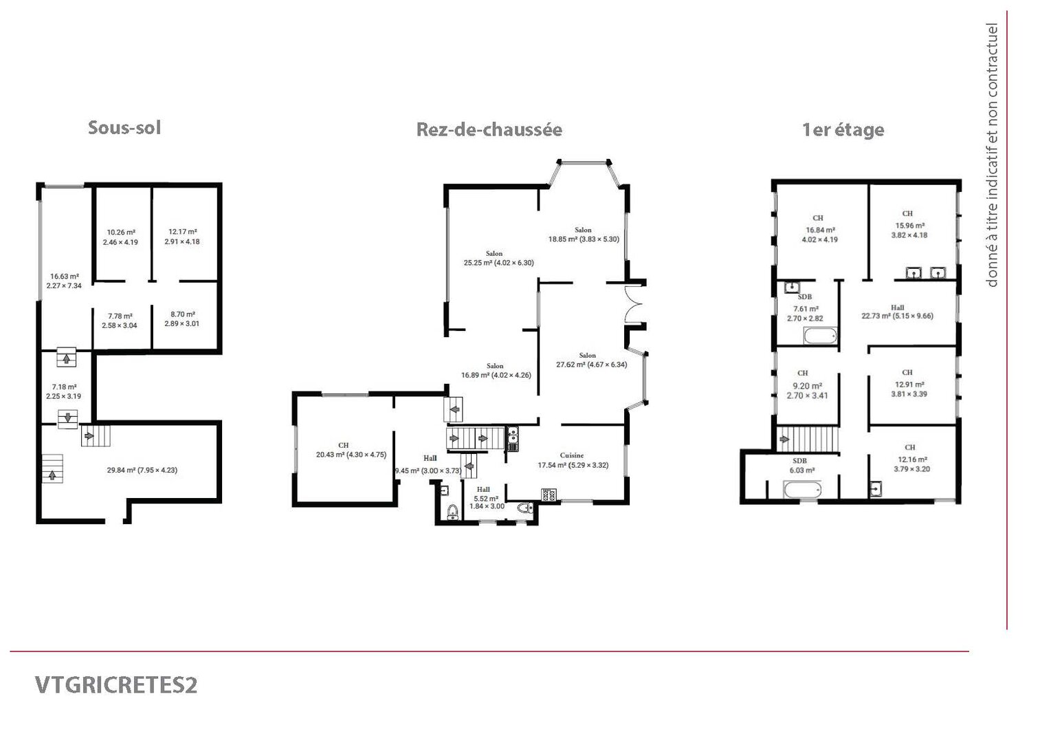
De villa omvat een inkomhal met een oud glas-in-loodraam, 2 toiletten, een kantoor met zicht op de tuin, een ontvangstruimte met openslaande deuren naar een groot en zonnig terras, een grote woonplaats met open haard, een eetkamer, een keuken, 5 kamers, 2 badkamers, meerdere kelders met toegang tot buiten.
Mogelijkheid om het tennisveld aan de voet van de eigendom te herstellen.
Inlichtingen : Julien GRANDJEAN (+32.470.19.40.56).
Ten noorden van het terrein : 2 te herstellen vijvers, gevoed door de stroom van Petit-Fays (oppervlakte van de twee vijvers ongeveer 5 are).
In dezelfde straat (op 25 meter van de villa) : 2 garages en 2 parkeerplaatsen.
De villa omvat een inkomhal met een oud glas-in-loodraam, 2 toiletten, een kantoor met zicht op de tuin, een ontvangstruimte met openslaande deuren naar een groot en zonnig terras, een grote woonplaats met open haard, een eetkamer, een keuken, 5 kamers, 2 badkamers, meerdere kelders met toegang tot buiten.
Mogelijkheid om het tennisveld aan de voet van de eigendom te herstellen.
Inlichtingen : Julien GRANDJEAN (+32.470.19.40.56).
| Vastgoed ID | Crêtes 2 |
|---|---|
| Vraagprijs | € 710.000 |
| Woningtype | Villa |
| Woonopp. | 250 m² |
| Terrasopp. | - |
| Perceelopp. | 9.000 m² |
| Bouwjaar | - |
| Renovatiejaar | - |
| Slaapkamers | 5 |
| Badkamers | 2 |
| Garages | 2 |
| Douchekamers | - |
| Kadastraal Inkomen | € 1.483 |
|---|---|
| EPC | - |
| Unieke code | 20240722019669 |
| Overstromingsgebied | Niet medegedeeld |
| Stedenbouwkundige vergunning | - |
| Verkavelingsvergunning | - |
| Stedenbouwkundige bestemming | Woongebied |
| Voorkooprecht | - |
| Dagvaarding | - |
| Rechterlijke beslissing | - |
Grandjean Immobilier rue Raymond Gridlet 17, 5575 Gedinne
- Telefoon:+32.61.51.37.12
- Email:info@grandjeanimmobilier.be
- Website:www.grandjeanimmobilier.be
Makelaar

































