Nieuwbouw duplexpenthouse
Van Meterenkaai 1 bus A0801, 2000 Antwerpen—Ref. D2000-21095
Algemene kenmerken:
- nieuwbouwproject op toplocatie in Antwerpen
- terras met uniek uitzicht op de Schelde en de jachthaven van Linkeroever
- vloerverwarming
- optie microtopping en maatwerk
- zonnepanelen
- verkoop deels onder registratie, deels onder btw
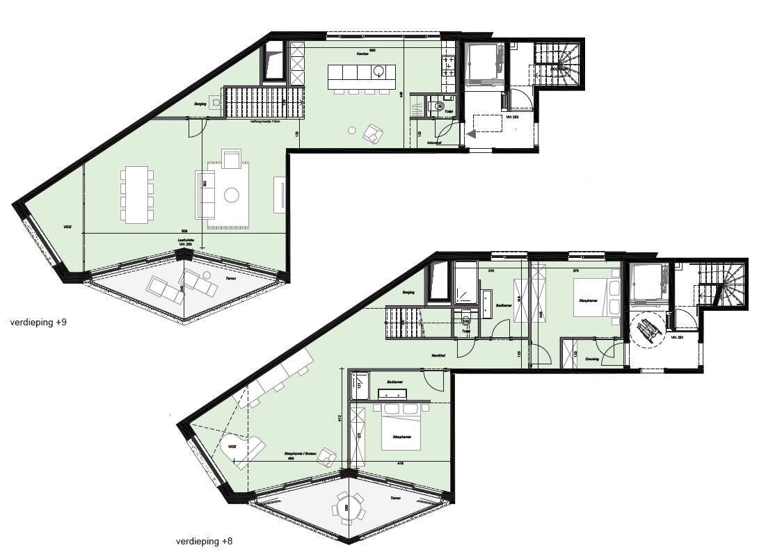
Indeling
9de verdieping
- inkomhal met apart toilet
- leefkeuken met een panoramisch zicht op de Stad.
- riante leefruimte met uniek zicht op de schelde en Linkeroever
- berging
- open terras
- trap naar beneden
8ste verdieping
- nachthal
- open kamer welke kan ingericht worden als bureau, bibliotheek of derde slaapkamer
- terras met schruifdraaisysteem
- masterbedroom aan de rustige achterzijde met ensuite dressing
- badkamer met inloopdouche en dubbele lavabo
- slaapkamer aan de voorzijde met toegang tot het terras
- douchekamer
- apart toilet
Microtopping “ Less is More”
Dit nieuwbouwproject in Antwerpen biedt verschillende extra opties naar afwerking toe zoals microtopping. Microtopping is een perfecte keuze voor mensen die houden van een naadloos oppervlak en een unieke, elegante en moderne uitstraling. U zal dus een haast eindeloze keuze hebben in kleuren, effecten en afwerking.
Even More
Goplus geeft je nog meer opties in r!vert, namelijk een optie voor maatwerk van het totaalinterieur. Dit gaat van een geïntegreerde wand in houtfineer tot scheidingswanden, dressing en deuren. The sky is the limit!
Verkoop onder BTW-stelsel.
Bent u geïnteresseerd in nieuwbouw, een appartement of een woning te koop in Antwerpen? Aarzel dan niet om ons te contacteren.
Had u graag uw eigen eigendom te koop aangeboden contacteer ons dan voor een vrijblijvende schatting, telefonisch op het nummer 03/206.76.76 of per mail naar antwerpen@dewaele.com. Ook voor alle andere vragen omtrent vastgoed, kopen of verkopen in Antwerpen kan u steeds bij ons terecht.
| Vastgoed ID | D2000-21095 |
|---|---|
| Vraagprijs | € 1.855.000 |
| Woningtype | Penthouse |
| Woonopp. | 219 m² |
| Terrasopp. | 22 m² |
| Perceelopp. | - |
| Bouwjaar | 2025 |
| Renovatiejaar | - |
| Slaapkamers | 2 |
| Badkamers | 2 |
| Garages | - |
| Douchekamers | - |
| Kadastraal Inkomen | - |
|---|---|
| EPC | - |
| Unieke code | - |
| Overstromingsgebied | Niet gelegen in gevoelig gebied |
| Stedenbouwkundige vergunning | Ja |
| Verkavelingsvergunning | Nee |
| Stedenbouwkundige bestemming | Woongebied met culturele,historische en/of estetische waarde |
| Voorkooprecht | Nee |
| Dagvaarding | Nee |
| Rechterlijke beslissing | Nee |
Premium makelaar
Dewaele Antwerpen Frankrijklei 84, 2000 Antwerpen
- Telefoon:+32.3.206.76.76
- Email:antwerpen@dewaele.com
- Website:www.dewaele.com
- Maandag - ZaterdagEnkel op afspraak
- Zondag Gesloten



















