Exclusieve en ruime villa in Moeskroen!
7700 Mouscron—Ref. 7632718
Gebouwd in 1994, onderscheidt deze villa zich door haar uitstekende staat van onderhoud, hoogwaardige materialen en performante technische installaties. Gelegen op een mooi perceel van 961 m² biedt de woning 152 m² bewoonbare oppervlakte en aangename, lichtrijke volumes.
Bij het binnenkomen leidt de inkomhal met geïntegreerde vestiaire naar een lichtrijke leefruimte met verzorgde afwerking. De blauwe hardstenen tegelvloer en de massieve parketvloer geven het gelijkvloers elegantie en karakter. De volledig uitgeruste keuken sluit harmonieus aan op de leefruimte en biedt directe toegang tot het ruime terras. Een praktische wasplaats met ingebouwde kasten en opbergruimte vervolledigt dit niveau. Het gelijkvloers is uitgerust met houten ramen met driedubbele beglazing voor optimaal thermisch en akoestisch comfort.
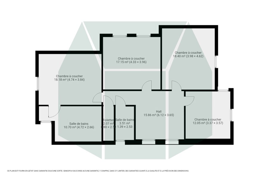
Op de verdieping geeft de nachthal toegang tot 4 slaapkamers, allemaal voorzien van ingebouwde kasten. De master bedroom beschikt over een privatieve marmeren badkamer die charme en verfijning uitstraalt. Een tweede badkamer vervolledigt de nachtruimte. Een bureau met recent vernieuwde parketvloer biedt een warme en lichtrijke werkplek. De verdieping is uitgerust met houten ramen met dubbele beglazing.
De woning is volledig onderkelderd en beschikt over een ruime kelder met tal van opbergmogelijkheden en een betegelde garage.
Kenmerken: centrale verwarming op stookolie, wandradiatoren, 20 zonnepanelen (±7 jaar oud), regenwaterput van 20.000 liter, LED-verlichting met recent domoticasysteem, alarmsysteem en bewakingscamera’s. De binnenafwerking benadrukt kwaliteitsvolle materialen zoals massief parket, blauwe hardsteen en marmer.
Een lichtrijke, functionele en perfect onderhouden villa, ideaal voor een gezin dat op zoek is naar ruimte, veiligheid en energiezuinig comfort.
Niet-contractuele publiciteit en geen bindend aanbod.
De eigenaars behouden zich het recht voor om een bod al dan niet te aanvaarden.
| Vastgoed ID | 7632718 |
|---|---|
| Vraagprijs | € 650.000 |
| Woningtype | Villa |
| Woonopp. | 249 m² |
| Terrasopp. | - |
| Perceelopp. | 961 m² |
| Bouwjaar | 1994 |
| Renovatiejaar | 2012 |
| Slaapkamers | 4 |
| Badkamers | 2 |
| Garages | 3 |
| Douchekamers | 2 |
| Kadastraal Inkomen | - |
|---|---|
| EPC | 161 kWh/m² |
| Unieke code | 20260327000227 |
| Overstromingsgebied | Niet medegedeeld |
| Stedenbouwkundige vergunning | - |
| Verkavelingsvergunning | - |
| Stedenbouwkundige bestemming | Andere |
| Voorkooprecht | - |
| Dagvaarding | - |
| Rechterlijke beslissing | - |
Immo Emeraude Mouscron Rue de Menin 400, 7700 Moeskroen
- Telefoon:+32.56.85.00.80
- Email:info.emeraude@dlgroupe.com
- Website:www.immo-emeraude.com








































