Woning met paardenstallen, piste en weiland op ca. 1,3 ha.
Klaterstraat 14, 2310 Rijkevorsel—Ref. 1415063
Droomt u van wonen in een groene omgeving, met alle faciliteiten voor uw paarden aan huis? Dan is deze unieke eigendom in Rijkevorsel, vlak bij Hoogstraten precies wat u zoekt. Op een perceel van ca. 1,3 hectare geniet u hier van rust, ruimte en het échte buitenleven.
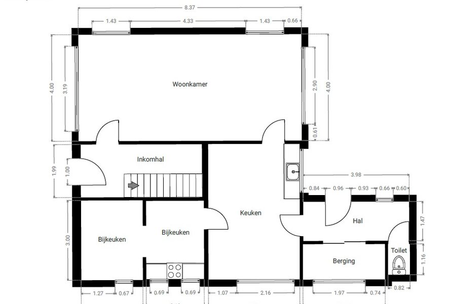
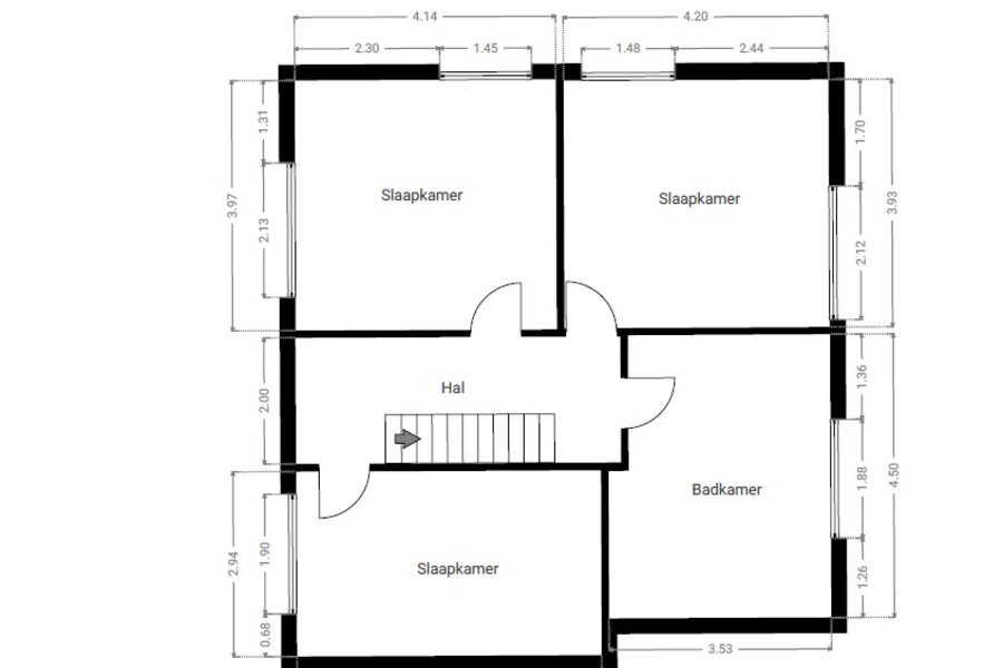
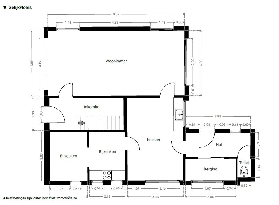
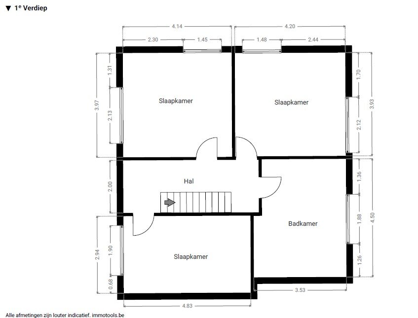
De woning verwelkomt u op het gelijkvloers met een inkomhal, een gezellige woonkamer, een ruime leefkeuken, een praktische bijkeuken/wasplaats en een apart toilet. Op de verdieping bevinden zich drie slaapkamers en een comfortabele badkamer perfect voor een gezin of wie houdt van extra ruimte.
Het domein is volledig ingericht voor paardenliefhebbers. Het ruime stalgebouw biedt plaats aan een 10-tal paardenboxen, daarnaast vindt u er een buitenpiste en omliggende weilanden. Alles wat u nodig heeft om uw passie professioneel of hobbymatig te beleven, is hier aanwezig.
Dankzij de vrije ligging midden in het groen geniet u dagelijks van een oase van rust, terwijl het centrum van Hoogstraten en Rijkevorsel toch op korte afstand bereikbaar zijn.
Kortom: deze eigendom combineert comfortabel wonen met de ultieme droom voor elke paardenliefhebber.
Wilt u deze uitzonderlijke hippische eigendom zelf ontdekken? Plan dan snel een bezoek via ERA Noord en laat u overtuigen door de unieke mix van wonen, natuur en paardenfaciliteiten.
| Vastgoed ID | 1415063 |
|---|---|
| Vraagprijs | € 750.000 |
| Woningtype | Villa |
| Woonopp. | 153 m² |
| Terrasopp. | - |
| Perceelopp. | 13.264 m² |
| Bouwjaar | 1966 |
| Renovatiejaar | - |
| Slaapkamers | 3 |
| Badkamers | 1 |
| Garages | - |
| Douchekamers | - |
| Kadastraal Inkomen | € 849 |
|---|---|
| EPC | 931 kWh/m² |
| Unieke code | 20250911-0003684136-RES-1 |
| Overstromingsgebied | Niet gelegen in gevoelig gebied |
| Stedenbouwkundige vergunning | Ja |
| Verkavelingsvergunning | Nee |
| Stedenbouwkundige bestemming | Agrarisch gebied |
| Voorkooprecht | Nee |
| Dagvaarding | Nee |
| Rechterlijke beslissing | - |
Era Noord Lindenlaan 1, 2340 Beerse
- Telefoon:+32 3 314 81 91
- Email:info@eranoord.be
- Website:www.era.be/nl/era-noord/beerse
Makelaar





























