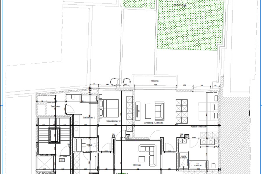
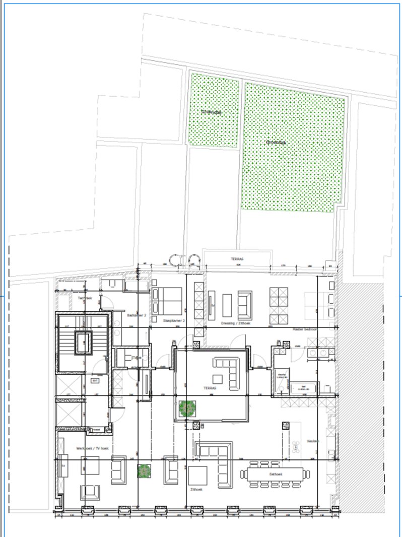
Casco penthouse met uitzonderlijk ruimtegevoel en terras
Koningin Astridplein 12-13, 2018 Antwerpen—Ref. W-04756L
Deze stijlvolle residentie wordt opgeleverd in casco-afwerking, waardoor u als koper de unieke kans krijgt om uw eigen smaak en stijl te vertalen in de inrichting. U kiest zelf de keuken, badkamers, vloer- wandbekleding, schilderwerken en maakt van dit appartement écht uw thuis.
De vier appartementen en het penthouse zijn reeds uitgerust met een volledige elektrische installatie, inclusief lichtpunten, stopcontacten en armaturen. Domotica kan slim geïntegreerd worden voor een maximaal gebruikscomfort, brand- en alarmdetectie zijn verder op elke bouwlaag voorzien.
Dankzij de zonnepanelen op het dak, het ventilatiesysteem type D en vloerverwarming in elk appartement, woont u hier niet alleen comfortabel maar ook energiezuinig en toekomstgericht. Voor de warme dagen is bovendien in elke unit een airco-installatie voorzien. Alle sanitaire leidingen zijn reeds geplaatst en een elektrische boiler zorgt voor warm water in keuken en badkamer.
Alle units beschikken over aantrekkelijke buitenruimtes met open zichten richting het Centraal Station. In de ondergrondse verdieping vindt u tevens privatieve bergingen en fietsstallingen terug.
Hier woont u in een kwalitatief en duurzaam gebouw waar modern wooncomfort en persoonlijke afwerking naadloos samenkomen. Aarzel niet om contact op te nemen met ons kantoor (03/233.24.00) voor meer informatie over de beschikbare units.
Gelegen aan het Koningin Astridplein, pal tegenover het Centraal Station, bevindt dit pand zich op een bruisende en strategische locatie in hartje Antwerpen. Het plein zelf zal een volledige heraanleg ondergaan die tegen 2028 voltooid zal zijn. Deze grootschalige vernieuwing zal het plein omvormen tot een modern, groen en aantrekkelijk stadsplein, een enorme meerwaarde voor de buurt én voor wie hier woont of investeert.
De vier appartementen en het penthouse zijn reeds uitgerust met een volledige elektrische installatie, inclusief lichtpunten, stopcontacten en armaturen. Domotica kan slim geïntegreerd worden voor een maximaal gebruikscomfort, brand- en alarmdetectie zijn verder op elke bouwlaag voorzien.
Dankzij de zonnepanelen op het dak, het ventilatiesysteem type D en vloerverwarming in elk appartement, woont u hier niet alleen comfortabel maar ook energiezuinig en toekomstgericht. Voor de warme dagen is bovendien in elke unit een airco-installatie voorzien. Alle sanitaire leidingen zijn reeds geplaatst en een elektrische boiler zorgt voor warm water in keuken en badkamer.
Alle units beschikken over aantrekkelijke buitenruimtes met open zichten richting het Centraal Station. In de ondergrondse verdieping vindt u tevens privatieve bergingen en fietsstallingen terug.
Hier woont u in een kwalitatief en duurzaam gebouw waar modern wooncomfort en persoonlijke afwerking naadloos samenkomen. Aarzel niet om contact op te nemen met ons kantoor (03/233.24.00) voor meer informatie over de beschikbare units.
Gelegen aan het Koningin Astridplein, pal tegenover het Centraal Station, bevindt dit pand zich op een bruisende en strategische locatie in hartje Antwerpen. Het plein zelf zal een volledige heraanleg ondergaan die tegen 2028 voltooid zal zijn. Deze grootschalige vernieuwing zal het plein omvormen tot een modern, groen en aantrekkelijk stadsplein, een enorme meerwaarde voor de buurt én voor wie hier woont of investeert.
| Vastgoed ID | W-04756L |
|---|---|
| Vraagprijs | € 1.250.000 |
| Woningtype | Penthouse |
| Woonopp. | 244 m² |
| Terrasopp. | 30 m² |
| Perceelopp. | - |
| Bouwjaar | 2025 |
| Renovatiejaar | - |
| Slaapkamers | 2 |
| Badkamers | 2 |
| Garages | - |
| Douchekamers | - |
| Kadastraal Inkomen | - |
|---|---|
| EPC | - |
| Unieke code | - |
| Overstromingsgebied | Niet medegedeeld |
| Stedenbouwkundige vergunning | Ja |
| Verkavelingsvergunning | - |
| Stedenbouwkundige bestemming | Andere |
| Voorkooprecht | - |
| Dagvaarding | - |
| Rechterlijke beslissing | - |
Premium makelaar
Engel & Völkers Antwerpen-Centrum Leopoldstraat 49, 2000 Antwerpen
- Telefoon:+32.3.233.24.00
- Email:Antwerpencentrum@engelvoelkers.com
- Website:www.engelvoelkers.com/belgium
- Maandag - ZaterdagOpen van 10.00 - 18.00
- Zondag Gesloten
Makelaar















