Luxe horecazaak met woonst, parking, terrassen en bureel te Oostduinkerke.
Koksijdesteenweg 72, 8670 Koksijde—Ref. BTKKKS072
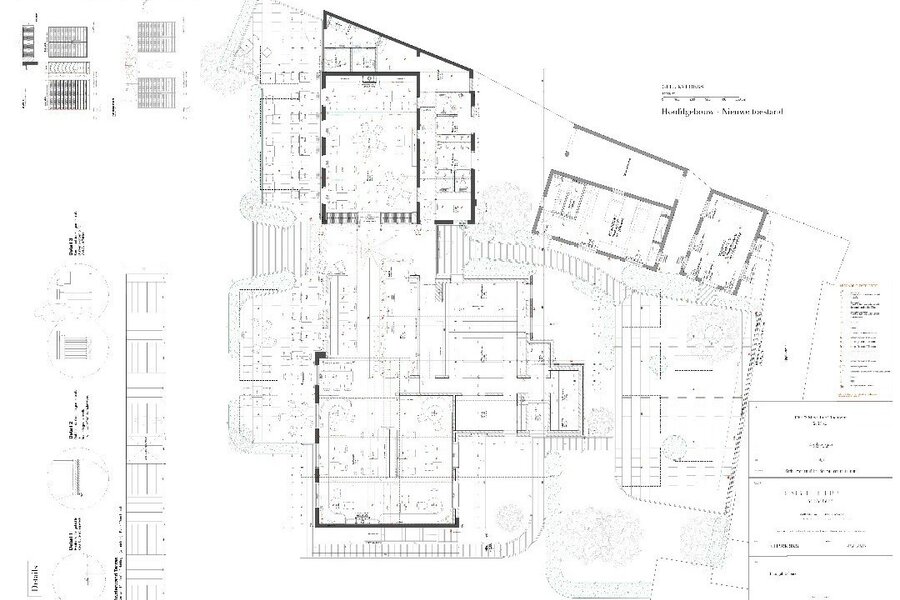
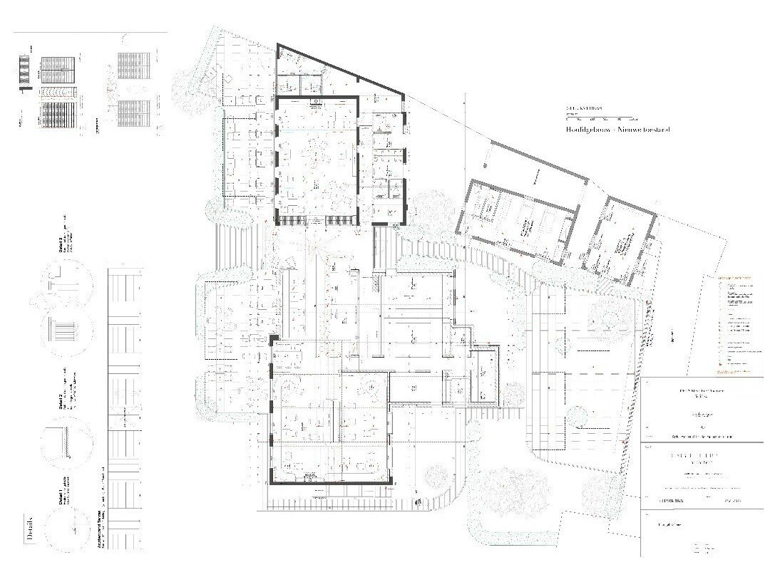
Deze ruime, en tot in de puntjes met luxe materialen gerenoveerde, horecazaak werd in 2019 vernieuwd en uitgebouwd en is gelegen langs een invalsweg te Oostduinkerke (Koksijde)! Het heeft een handige parking met +/- 36 plaatsen en grote arduinen zonneterrassen waar 90 man kan genieten. De horecazaak zelf heeft 90 zitplaatsen en werd prachtig vernieuwd (de eigenaar liet het voor zichzelf vernieuwen met zéér dure materialen!). Er is links een vergaderruimte met open haard (of extra restaurantdeel) en prachtige wijnfrigo's, aansluitend een mooie inkomhall met automatische glazen deuren, knappe marmeren bar, eetruimte met tweede open haard en zéér mooie raampartijen. Via de inkom is de mooi aangelegde tuin bereikbaar met o.a. grote zonneterrassen, bureel, kapel die omgebouwd werd tot wijnkelder, grote berging en een apart super gezellig woonhuisje met twee slaapkamers en terras. De keuken is volledig en zéér kwalitatief ingericht (Ben Martin). Het wordt verkocht met alle roerende goederen (prijs te bespreken). Geen overname! Wordt thans uitgebaat maar kan ook snel vrij zijn (geen handelshuur lopende!). Volgende zijn ook aanwezig: ontkalker, vloerverwarming, gashaarden, koel- en frigocellen, geïsoleerde muren, daken en vloeren, goedgekeurde elektriciteit, stads- en regenwater, met marmer afgewerkte toiletten, ... Vrij van brouwer! Ook ideaal voor feesten! Boven de horecazaak is ook slaapruimte en sanitair voorzien. Ideaal als opbrengsteigendom of wie een prachtzaak direct wil runnen met veel succes!
| Vastgoed ID | BTKKKS072 |
|---|---|
| Vraagprijs | € 2.400.000 |
| Woningtype | Villa |
| Woonopp. | 600 m² |
| Terrasopp. | - |
| Perceelopp. | 2.589 m² |
| Bouwjaar | - |
| Renovatiejaar | 2019 |
| Slaapkamers | - |
| Badkamers | - |
| Garages | - |
| Douchekamers | - |
| Kadastraal Inkomen | € 2.475 |
|---|---|
| EPC | - |
| Unieke code | 20250303 |
| Overstromingsgebied | Niet gelegen in gevoelig gebied |
| Stedenbouwkundige vergunning | - |
| Verkavelingsvergunning | - |
| Stedenbouwkundige bestemming | Andere |
| Voorkooprecht | - |
| Dagvaarding | - |
| Rechterlijke beslissing | - |
Puur Vastgoed Leopold I laan 132, 8000 Brugge
- Telefoon:+32.496.80.00.80
- Email:info@puurvastgoed.be
- Website:www.puur-vastgoed.be
Makelaar




































