Nieuwbouwappartement met zicht op het Maurice Lippensplein
Tramweg 5 bus 11, 8300 Knokke-Heist—Ref. 6522801
Residentie ‘Maurice’ is een exclusief nieuwbouwproject in het bruisende hart van Knokke-Heist, op een steenworp van Duinenwater en het Maurice Lippensplein. Dit prachtige appartement biedt een unieke woonervaring, waar luxe, comfort en een uitzonderlijke ligging samenkomen.
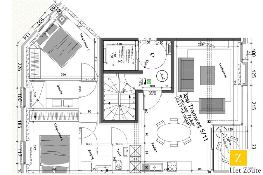
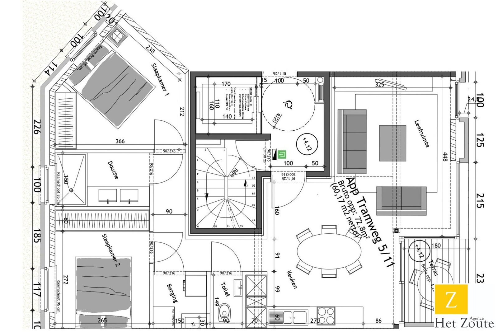
Dit prachtig afgewerkte appartement heeft een bewoonbare oppervlakte van 60m² en beschikt over een aangenaam terras van 4m² met uitzicht op het Maurice Lippensplein. De grote raampartijen zorgen voor een overvloed aan natuurlijk licht.
Bij het binnenkomen betreedt u een stijlvolle inkomhal die leidt naar de lichtrijke woonkamer. De open leefruimte werd ontworpen met oog voor detail en functionaliteit, en sluit naadloos aan op de volledig geïnstalleerde keuken. Hier geniet u van hoogwaardige materialen, moderne inbouwtoestellen en een elegant werkblad dat perfect past bij de hedendaagse woonwensen.
Het appartement beschikt over twee volwaardige slaapkamers. Dankzij de doordachte indeling bieden deze kamers voldoende ruimte en comfort, ideaal voor een hoofdverblijf of een stijlvolle pied-à-terre aan de kust. De moderne badkamer is uitgerust met een inloopdouche, een wastafelmeubel met opbergruimte en hoogwaardige afwerkingselementen. De aparte berging biedt extra opslagmogelijkheden en ruimte voor wasapparatuur.
Residentie ‘Maurice’ is gelegen op een absolute toplocatie. Het bruisende commerciële centrum van Knokke-Heist ligt op wandelafstand, met een breed aanbod aan exclusieve boetieks, gezellige restaurants en trendy cafés. Daarnaast biedt Duinenwater tal van ontspanningsmogelijkheden, zoals sportfaciliteiten, wandel- en fietsroutes en het bekende meer van Duinenwater. Dit maakt van residentie ‘Maurice’ niet alleen een fantastische woonplek, maar ook een uitstekende investeringskans.
Dankzij hoogwaardige isolatie en duurzame technieken geniet u van een energiezuinige woning met lage verbruikskosten. Er is bovendien de mogelijkheid tot aankoop van een makkelijk toegankelijke parkeerplaats in de residentie op verdieping -1.
Bent u op zoek naar een stijlvol en comfortabel appartement in Knokke-Heist, met een topligging en hoogstaande afwerking? Dit appartement in residentie ‘Maurice’ biedt alles wat u nodig heeft voor een zorgeloos verblijf aan de kust.
Contacteer Agence Het Zoute via verkoop@hetzoute.be of 050/60 33 33 om afspraak in te plannen.
Dit prachtig afgewerkte appartement heeft een bewoonbare oppervlakte van 60m² en beschikt over een aangenaam terras van 4m² met uitzicht op het Maurice Lippensplein. De grote raampartijen zorgen voor een overvloed aan natuurlijk licht.
Bij het binnenkomen betreedt u een stijlvolle inkomhal die leidt naar de lichtrijke woonkamer. De open leefruimte werd ontworpen met oog voor detail en functionaliteit, en sluit naadloos aan op de volledig geïnstalleerde keuken. Hier geniet u van hoogwaardige materialen, moderne inbouwtoestellen en een elegant werkblad dat perfect past bij de hedendaagse woonwensen.
Het appartement beschikt over twee volwaardige slaapkamers. Dankzij de doordachte indeling bieden deze kamers voldoende ruimte en comfort, ideaal voor een hoofdverblijf of een stijlvolle pied-à-terre aan de kust. De moderne badkamer is uitgerust met een inloopdouche, een wastafelmeubel met opbergruimte en hoogwaardige afwerkingselementen. De aparte berging biedt extra opslagmogelijkheden en ruimte voor wasapparatuur.
Residentie ‘Maurice’ is gelegen op een absolute toplocatie. Het bruisende commerciële centrum van Knokke-Heist ligt op wandelafstand, met een breed aanbod aan exclusieve boetieks, gezellige restaurants en trendy cafés. Daarnaast biedt Duinenwater tal van ontspanningsmogelijkheden, zoals sportfaciliteiten, wandel- en fietsroutes en het bekende meer van Duinenwater. Dit maakt van residentie ‘Maurice’ niet alleen een fantastische woonplek, maar ook een uitstekende investeringskans.
Dankzij hoogwaardige isolatie en duurzame technieken geniet u van een energiezuinige woning met lage verbruikskosten. Er is bovendien de mogelijkheid tot aankoop van een makkelijk toegankelijke parkeerplaats in de residentie op verdieping -1.
Bent u op zoek naar een stijlvol en comfortabel appartement in Knokke-Heist, met een topligging en hoogstaande afwerking? Dit appartement in residentie ‘Maurice’ biedt alles wat u nodig heeft voor een zorgeloos verblijf aan de kust.
Contacteer Agence Het Zoute via verkoop@hetzoute.be of 050/60 33 33 om afspraak in te plannen.
| Vastgoed ID | 6522801 |
|---|---|
| Vraagprijs | € 525.000 |
| Woningtype | Appartement |
| Woonopp. | 60 m² |
| Terrasopp. | 4 m² |
| Perceelopp. | 64 m² |
| Bouwjaar | 2024 |
| Renovatiejaar | - |
| Slaapkamers | 2 |
| Badkamers | 1 |
| Garages | - |
| Douchekamers | - |
| Kadastraal Inkomen | - |
|---|---|
| EPC | - |
| Unieke code | A |
| Overstromingsgebied | Niet gelegen in gevoelig gebied |
| Stedenbouwkundige vergunning | Ja |
| Verkavelingsvergunning | Nee |
| Stedenbouwkundige bestemming | Woongebied |
| Voorkooprecht | - |
| Dagvaarding | Nee |
| Rechterlijke beslissing | - |
Agence Het Zoute Kustlaan 105, 8300 Knokke-Heist
- Telefoon:+32.50.60.33.33
- Email:verkoop@hetzoute.be
- Website:www.hetzoute.be
- Maandag - DinsdagOpen van 09.30 - 12.30 – 14.00 - 18.00
- Woensdag Gesloten
- Donderdag - ZaterdagOpen van 09.30 - 12.30 – 14.00 - 18.00
- Zondag Gesloten
Makelaar










