HISTORISCH HUIS MODERNE EN KARAKTERISTIEKE METTET
Rue de Prumont 4, 5640 Mettet—Ref. 1441437
16e-eeuwse woning – Mettet
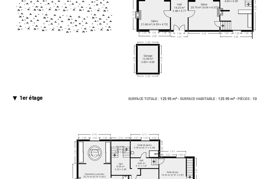
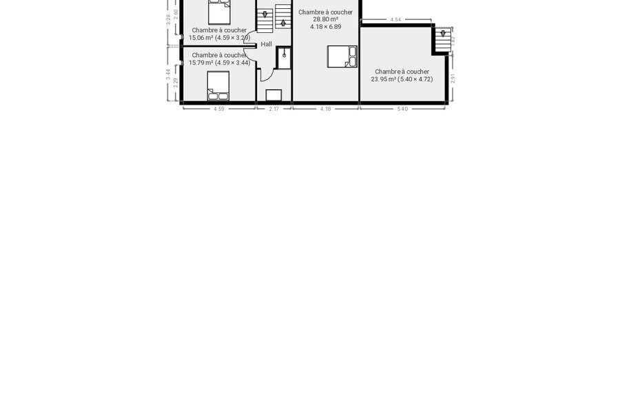
Dit historische stenen huis in het hart van het dorp combineert charme en moderniteit. Het is volledig gerenoveerd en biedt 352 m² woonoppervlakte en meer dan 15 kamers, ideaal voor gezinnen die van ruime kamers houden, vrije beroepen of als vakantiehuis.
Kenmerken:
-Ouderslaapkamer met kleedkamer en badkamer met toilet en bidet
-5 extra slaapkamers, mogelijkheid voor een 7e
-2 perfect uitgeruste doucheruimtes
- Moderne en uitgeruste keuken
- 2 grote, lichte woonkamers met hoogwaardige materialen
- 2 kelders, waarvan één gewelfd, ideaal als wijnkelder
- Uitgerust met zonnepanelen en alarm
- Antieke schouwen en karakteristiek binnenhoutwerk
Buiten:
Terrein van 14 are met tuin, terras en portaal.
Renovatie:
Nieuw dak, gerestaureerd dakgebinte, geoptimaliseerde isolatie, dubbele beglazing. EPC B.
📞 Info:
ERA La Clé: +32 81 84 21 21 – info@eralacle.be
Prijs op aanvraag, onder voorbehoud van aanvaarding door de eigenaar.
Neem vandaag nog contact met ons op om deze unieke woning te ontdekken!
| Vastgoed ID | 1441437 |
|---|---|
| Vraagprijs | € 550.000 |
| Woningtype | Villa |
| Woonopp. | 352 m² |
| Terrasopp. | - |
| Perceelopp. | 1.439 m² |
| Bouwjaar | 1850 |
| Renovatiejaar | - |
| Slaapkamers | 6 |
| Badkamers | 3 |
| Garages | 1 |
| Douchekamers | - |
| Kadastraal Inkomen | € 954 |
|---|---|
| EPC | 169 kWh/m² |
| Unieke code | 20250624036757 |
| Overstromingsgebied | Niet medegedeeld |
| Stedenbouwkundige vergunning | - |
| Verkavelingsvergunning | Nee |
| Stedenbouwkundige bestemming | - |
| Voorkooprecht | Nee |
| Dagvaarding | - |
| Rechterlijke beslissing | - |
ERA La Clé Rue de Marchovelette 17, 5000 Namen
- Telefoon:+32.81.84.21.21
- Email:info@eralacle.be
- Website:www.era.be/nl/era-la-cle
Makelaar



































