Gerenoveerde villa op circa 1,2HA centraal gelegen te OLVW.
Heiken 53, 2860 Sint-Katelijne-Waver—Ref. 7144155
Op zoek naar rust, ruimte en luxe in Sint-Katelijne-Waver? Deze volledig gerenoveerde villa (2022) combineert hedendaags comfort met een uitzonderlijk niveau van afwerking, gelegen op een prachtig privé-domein van circa 1,2 hectare. Volledige privacy en duurzaamheid staan centraal in deze unieke eigendom, die werd afgewerkt volgens de hoogste energie- en woonnormen.
Woningkenmerken:
E-peil A (98kWh/m²)
Warmtepompverwarming
68 zonnepanelen (10.000 Wp)
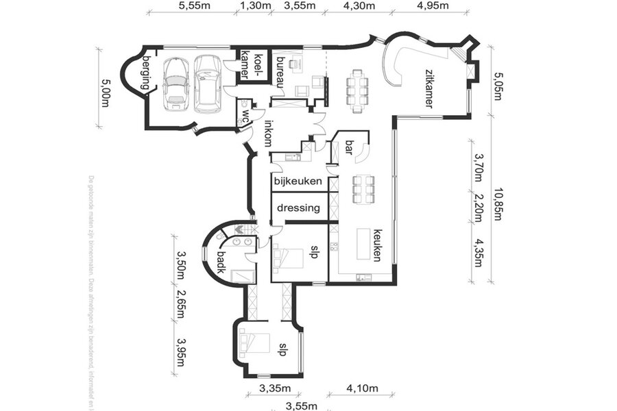
Luxe keuken met uitzicht op de tuin, aansluitend op de ruime leefruimte met bar
Meerdere slaapkamers waaronder 2 op het gelijkvloers en 1 op de verdieping met eigen badkamer
Twee badkamers, ruime inkomhal, bureau en berging/wasplaats
Dubbele garage en ruime oprit met automatische toegangspoort
De open leefruimte met zitkamer, eetgedeelte en bar vloeit naadloos over in de keuken – ideaal voor wie houdt van licht, ruimte en gezelligheid. De grote raampartijen zorgen voor een directe connectie met de tuin en het buitenleven.
Buitengewone buitenomgeving: tuin met diverse terrassen, privétennisveld, verwarmd zwembad met zonneterras.
Lange oprijlaan, volledige omheining en automatische poort, autoluwe straat (fietsstraat)
Locatie:
Deze villa is strategisch gelegen, grenzend aan R6, in een rustige, autoluwe straat, toch centraal in Sint-Katelijne-Waver.
Goede verbindingen naar Mechelen, Antwerpen en Brussel (via R6). Winkels, scholen en natuur alsook 2 ziekenhuizen AZ Sint-Maarten en Imelda op korte afstand.
Troeven op een rij
100% privacy op een uitgestrekt privéterrein
Energiezuinig wonen zonder in te boeten aan comfort
Combinatie van hedendaagse luxe en functionele indeling
Instapklaar en gerenoveerd met oog voor detail
Ben je op zoek naar een villa waar luxe, duurzaamheid en rust samenkomen? Deze unieke eigendom biedt alles wat je zoekt. Aarzel niet en plan vandaag nog je bezoek – dit pareltje is een zeldzame kans op de vastgoedmarkt!
| Vastgoed ID | 7144155 |
|---|---|
| Vraagprijs | € 1.495.000 |
| Woningtype | Villa |
| Woonopp. | 344 m² |
| Terrasopp. | - |
| Perceelopp. | 11.488 m² |
| Bouwjaar | 1992 |
| Renovatiejaar | 2022 |
| Slaapkamers | 3 |
| Badkamers | 2 |
| Garages | 1 |
| Douchekamers | - |
| Kadastraal Inkomen | € 2.040 |
|---|---|
| EPC | 98 kWh/m² |
| Unieke code | 20250926-000369851-RES-1 |
| Overstromingsgebied | Niet gelegen in gevoelig gebied |
| Stedenbouwkundige vergunning | Ja |
| Verkavelingsvergunning | Nee |
| Stedenbouwkundige bestemming | Woongebied |
| Voorkooprecht | Nee |
| Dagvaarding | Nee |
| Rechterlijke beslissing | - |
De Boer & Partners Immobiliën Groep Haachtsebaan 119, 3140 Keerbergen
- Telefoon:+32.16.41.51.51
- Email:keerbergen@deboerenpartners.be
- Website:www.deboerenpartners.be
- Maandag - VrijdagOpen van 09.00 - 17.30
- Zaterdag Open van 10.00 - 14.00 - Op afspraak
- Zondag Gesloten
Makelaar

















































