Huis met 1,6 hectare grond te koop in Durbuy
Chemin de la Chabotte 16, 6940 Durbuy—Ref. 1443027
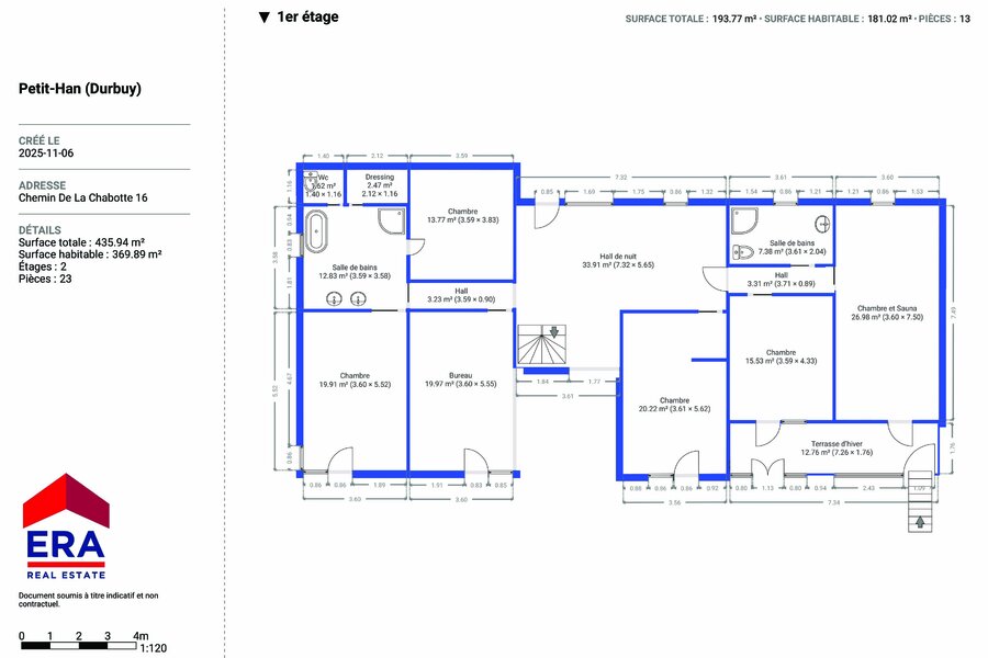
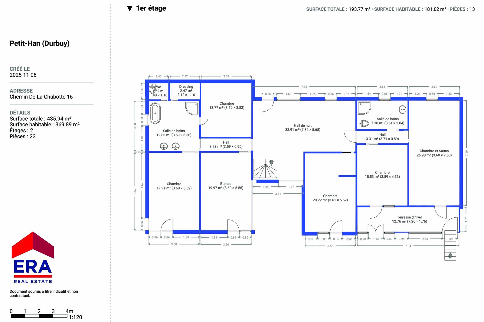
Het makelaarskantoor ERA B-LUX presenteert u met veel plezier deze prachtige vrijstaande woning in het charmante dorpje Petit-Han, op slechts enkele minuten van Durbuy.Dit ruime pand met een woonoppervlakte van 370 m² heeft 6 slaapkamers en ligt op een uitzonderlijke locatie aan het einde van de straat, wat rust en privacy garandeert.Het ligt op een terrein van 1,6 hectare en biedt een volledig vrij uitzicht op de omliggende natuur, ideaal om te genieten van een rustige en verkwikkende omgeving.Binnen zult u onder de indruk zijn van de royale volumes, de grote, lichte woonkamer en de goede energieprestaties met een EPC C en 22 fotovoltaïsche panelen.Deze verkoop vindt plaats in de vorm van een overdracht van aandelen, een interessante kans voor kopers die op zoek zijn naar een unieke omgeving en een voordelige vastgoedconfiguratie.Een zeldzaam pand dat ruimte, comfort en een bevoorrechte omgeving combineert.Geïnteresseerd? Neem dan contact op met makelaarskantoor ERA B-LUX op 084/311.888.
| Vastgoed ID | 1443027 |
|---|---|
| Vraagprijs | € 550.000 |
| Woningtype | Villa |
| Woonopp. | 369 m² |
| Terrasopp. | - |
| Perceelopp. | 16.404 m² |
| Bouwjaar | - |
| Renovatiejaar | - |
| Slaapkamers | 6 |
| Badkamers | 2 |
| Garages | 1 |
| Douchekamers | - |
| Kadastraal Inkomen | € 1.472 |
|---|---|
| EPC | 222 kWh/m² |
| Unieke code | 20251112019092 |
| Overstromingsgebied | Niet gelegen in gevoelig gebied |
| Stedenbouwkundige vergunning | Ja |
| Verkavelingsvergunning | Nee |
| Stedenbouwkundige bestemming | - |
| Voorkooprecht | Nee |
| Dagvaarding | Nee |
| Rechterlijke beslissing | - |
ERA B-Lux Chaussée de Liège 76, 6900 Marche-en-Famenne
- Telefoon:+32.84.31.18.88
- Email:info@erablux.be
- Website:www.era.be/fr/era-b-lux
Makelaar
















