Hoogstaand gerenoveerd appartement op het Zuid
Amerikalei 206, 2000 Antwerpen—Ref. 7284076
Op het einde van de Leien, aan de Bolivarplaats en het Vlinderpaleis, dicht bij invalswegen, én erg dicht bij het nieuwe Park Zuid en de Scheldekaaien – een mooie mix van cultuur, groen, lekkere adresjes en faciliteiten.
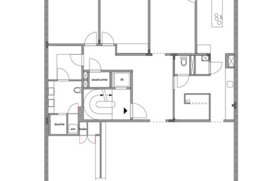
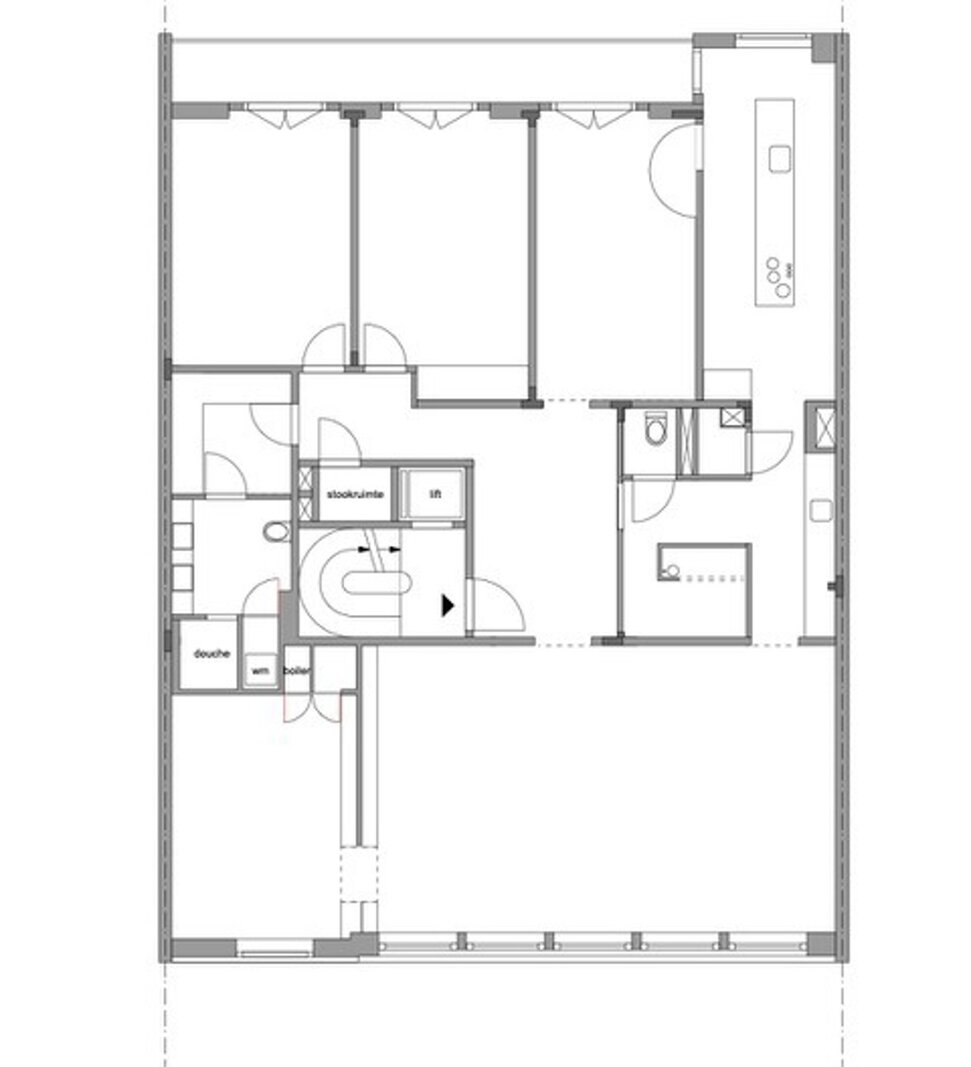
Dit appartement op de 2de verdieping kreeg in 2017 een totaalrenovatie i.s.m. architect Wim De Vos. Met de sleutelwoorden ‘licht, verbindingen en doorkijken’ in het achterhoofd werd het riante appartement getransformeerd tot een rustgevende plek. Doordachte architecturale keuzes zorgen voor eenheid en kalmte: marmoluem vloeren doorheen het hele appartement, uitgekiende openingen waardoor je helemaal van voor naar achteren kunt kijken en subtiele kleurschakeringen die meelopen met het natuurlijke daglicht – een meer dan geslaagd resultaat.
Ruime inkomhal met aparte vestiaire en gastentoilet. In de lichtrijke leefruimte met grote boekenwand lijken de ramen wel schilderijen met een altijd veranderend uitzicht. Het aanpalende kantoor kan je desgewenst inrichten als derde slaapkamer. Een knappe bijkeuken verbindt de leefruimte met de grote leefkeuken. Stijlvolle materialen, leuk toogje en veel werkplaats: hier kan je uitgebreid aan de slag. Van hieruit kan je naar het terras dat doorloopt over de achterzijde van het appartement, ideaal voor een koffiepauze terwijl je uitkijkt over de mooie, groene binnentuin. Aansluitend nog een een groot kantoor, weer met zalig zicht over terras en boomkruinen. Rustig aan de achterzijde: twee slaapkamers, hippe dressing en prachtige badkamer.
Dit appartement op de 2de verdieping kreeg in 2017 een totaalrenovatie i.s.m. architect Wim De Vos. Met de sleutelwoorden ‘licht, verbindingen en doorkijken’ in het achterhoofd werd het riante appartement getransformeerd tot een rustgevende plek. Doordachte architecturale keuzes zorgen voor eenheid en kalmte: marmoluem vloeren doorheen het hele appartement, uitgekiende openingen waardoor je helemaal van voor naar achteren kunt kijken en subtiele kleurschakeringen die meelopen met het natuurlijke daglicht – een meer dan geslaagd resultaat.
Ruime inkomhal met aparte vestiaire en gastentoilet. In de lichtrijke leefruimte met grote boekenwand lijken de ramen wel schilderijen met een altijd veranderend uitzicht. Het aanpalende kantoor kan je desgewenst inrichten als derde slaapkamer. Een knappe bijkeuken verbindt de leefruimte met de grote leefkeuken. Stijlvolle materialen, leuk toogje en veel werkplaats: hier kan je uitgebreid aan de slag. Van hieruit kan je naar het terras dat doorloopt over de achterzijde van het appartement, ideaal voor een koffiepauze terwijl je uitkijkt over de mooie, groene binnentuin. Aansluitend nog een een groot kantoor, weer met zalig zicht over terras en boomkruinen. Rustig aan de achterzijde: twee slaapkamers, hippe dressing en prachtige badkamer.
| Vastgoed ID | 7284076 |
|---|---|
| Vraagprijs | € 749.000 |
| Woningtype | Appartement |
| Woonopp. | 215 m² |
| Terrasopp. | 16 m² |
| Perceelopp. | - |
| Bouwjaar | - |
| Renovatiejaar | 2017 |
| Slaapkamers | 3 |
| Badkamers | 1 |
| Garages | - |
| Douchekamers | - |
| Kadastraal Inkomen | € 1.192 |
|---|---|
| EPC | 185 kWh/m² |
| Unieke code | - |
| Overstromingsgebied | Niet gelegen in gevoelig gebied |
| Stedenbouwkundige vergunning | Nee |
| Verkavelingsvergunning | Nee |
| Stedenbouwkundige bestemming | Woongebied met culturele,historische en/of estetische waarde |
| Voorkooprecht | Nee |
| Dagvaarding | Nee |
| Rechterlijke beslissing | - |
Immodôme Sint-Katelijnevest 24, 2000 Antwerpen
- Telefoon:+32.468.29.08.48
- Email:hello@immodome.be
- Website:www.immodome.be


















