Ruime open bebouwing in villawijk Brussel
Avenue de l'Amphore 15, 1020 Brussel—Ref. 1487165
Te koop: open bebouwing in een rustige villawijk van Brussel, gelegen aan Avenue de l'Amphore 15, op korte afstand van scholen, openbaar vervoer en belangrijke invalswegen.
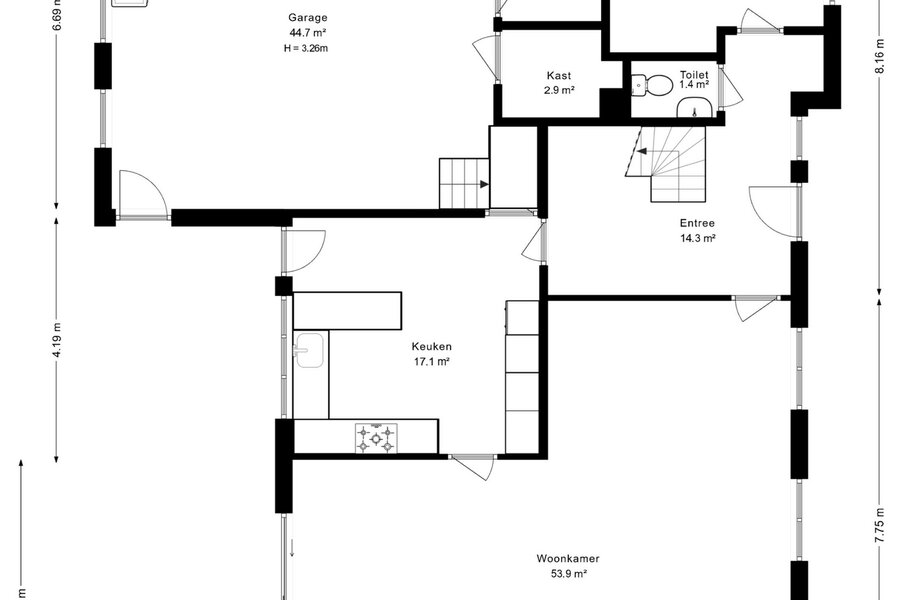
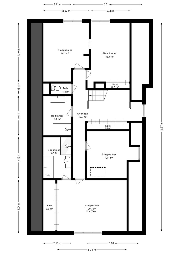
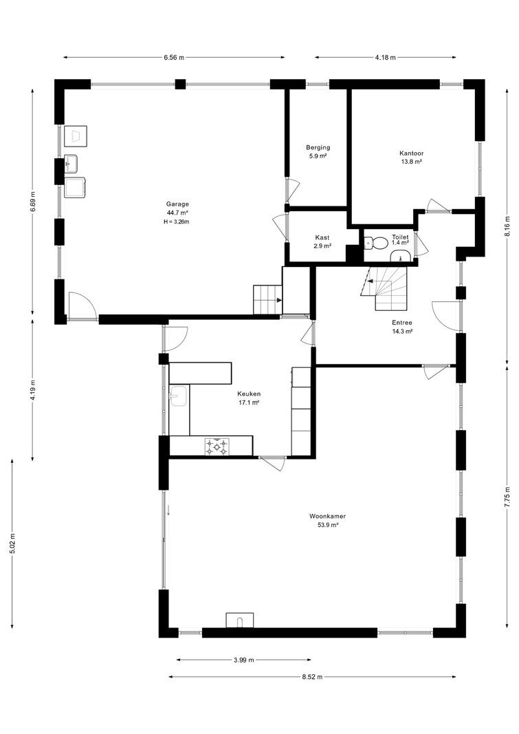
Deze woning uit 1982 biedt een solide basis voor wie op zoek is naar ruimte en een gunstige ligging. Met vier slaapkamers en twee badkamers is er plaats voor een groot gezin of wie graag gasten ontvangt. Het pand is ideaal gelegen op wandelafstand van winkels, openbaar vervoer, winkels en scholen.
Belangrijkste ruimtes:
• Woonkamer met grote ramen en veel lichtinval
• Vier slaapkamers ideaal voor gezin of thuiswerk
• Twee badkamers voor extra comfort
• Bureelruimte voor werk of hobby
• Dubbele Garage met directe toegang tot de woning
Troeven:
• Gelegen in een rustige villawijk nabij scholen en openbaar vervoer
• Zuid gerichte tuin
• Goede verbinding met belangrijke invalswegen
Neem vandaag nog contact op met uw makelaar voor een bezoek.
JOUW DROOMHUIS. ZO GEVONDEN!
| Vastgoed ID | 1487165 |
|---|---|
| Vraagprijs | € 810.000 |
| Woningtype | Villa |
| Woonopp. | 294 m² |
| Terrasopp. | - |
| Perceelopp. | 1.033 m² |
| Bouwjaar | 1982 |
| Renovatiejaar | - |
| Slaapkamers | 4 |
| Badkamers | 2 |
| Garages | 1 |
| Douchekamers | - |
| Kadastraal Inkomen | € 4.147 |
|---|---|
| EPC | 314 kWh/m² |
| Unieke code | 20260326-0000746821-01-9 |
| Overstromingsgebied | Niet medegedeeld |
| Stedenbouwkundige vergunning | Ja |
| Verkavelingsvergunning | Nee |
| Stedenbouwkundige bestemming | - |
| Voorkooprecht | Nee |
| Dagvaarding | Nee |
| Rechterlijke beslissing | - |
ERA Leus & Toye Parklaan 28, 1930 Zaventem
- Telefoon:+32.2.725.20.02
- Email:leus@era.be
- Website:www.era.be/nl/era-leus-vastgoed





























