Huis met 4 (5) slaapkamers in Tongeren
Sint-Catharinastraat 30, 3700 Tongeren—Ref. 1473292
Charmante woning is gelegen in het centrum van Tongeren, aan het toeristische "Begijnhof". De woning is een vastgesteld bouwkundig erfgoed, doch heeft dit beperkte juridische invloed daar de woning in de jaren 90 een grote renovatie heeft ondergaan waarbij de authentieke elementen zo goed als mogelijk bewaard zijn gebleven. De woning bevindt zich op wandelafstand van scholen, winkels, het openbaar vervoer en het park "De Motten".
INDELING
Gelijkvloers
De woning beschikt over twee authentieke kelders, waarvan één dient als technische ruimte terwijl de andere kan dienen als wijnkelder.
Exterieur
INDELING
Gelijkvloers
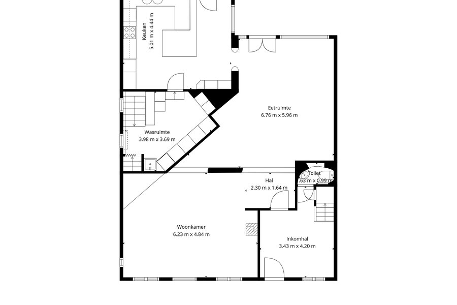
- Ruime inkomhal met apart toilet
- Open leef- en eetruimte met houtkachel, handgemaakte radiatoren en natuurlijk lichtinval
- Keuken voorzien van een keramische kookplaat, dubbele spoelbak, vaatwasser...
- Berging met spoelbak, aansluitingen voor wasmachine en droogkast en kasten
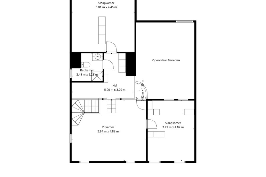
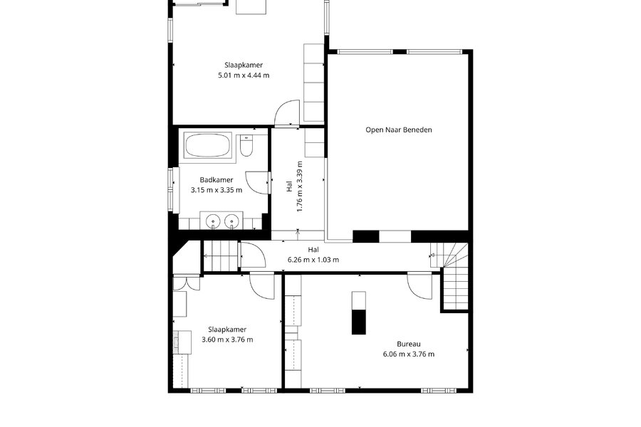
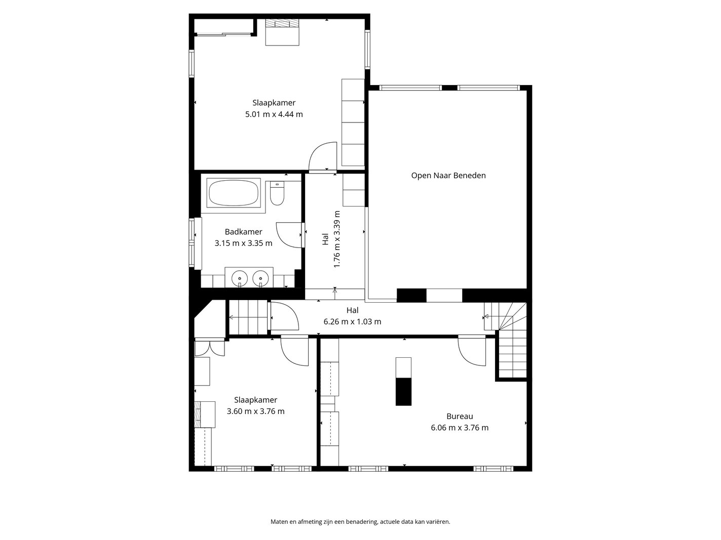
- Nachthal
- Bureel (hobbyruimte, extra slaapkamer)
- Twee slaapkamers (1 met airco)
- Badkamer 1 (dubbele wastafel en bad)
- Leefruimte
- Twee slaapkamers
- Badkamer 2 (enkele wastafel, douche en toilet)
De woning beschikt over twee authentieke kelders, waarvan één dient als technische ruimte terwijl de andere kan dienen als wijnkelder.
Exterieur
- Ruim terras met wateraansluitingen (regenwaterput)
- Carport voor 3 wagens
- Ruime oprit (extra parking) toegangkelijk via sectionale poort
- EPC D, dus géén renovatieverplichting
- Prachtige ligging aan het Begijnhof
- Stadswoning met terras, parking en carport
| Vastgoed ID | 1473292 |
|---|---|
| Vraagprijs | € 575.000 |
| Woningtype | Villa |
| Woonopp. | 294 m² |
| Terrasopp. | - |
| Perceelopp. | 419 m² |
| Bouwjaar | 1899 |
| Renovatiejaar | - |
| Slaapkamers | 4 |
| Badkamers | 2 |
| Garages | - |
| Douchekamers | - |
| Kadastraal Inkomen | € 1.712 |
|---|---|
| EPC | 358 kWh/m² |
| Unieke code | 20250512-0003598720-RES-4 |
| Overstromingsgebied | Niet gelegen in gevoelig gebied |
| Stedenbouwkundige vergunning | - |
| Verkavelingsvergunning | Nee |
| Stedenbouwkundige bestemming | Woongebied |
| Voorkooprecht | Nee |
| Dagvaarding | Nee |
| Rechterlijke beslissing | - |
ERA Connect Bilzersteenweg 45B, 3730 Hoeselt
- Telefoon:+32.89.69.59.59
- Email:wouter@eraconnect.be
- Website:www.era.be/nl/era-connect



































