Exclusief penthouse van 315 m² in hartje Tongeren,
3700 Tongeren—Ref. 86392981
In het historisch centrum van Tongeren, op slechts 200 meter van de Grote Markt, bieden wij dit uitzonderlijk penthouse in een rustige residentie te koop aan.
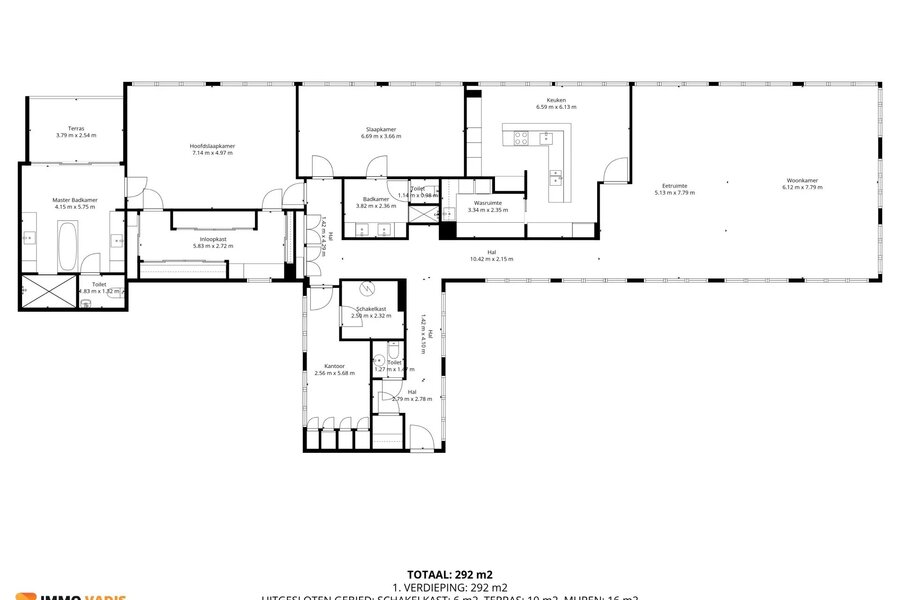
Met een woonoppervlakte van 315 m² en een ruim buitenterras combineert dit penthouse stijlvol wonen met optimaal comfort. De afwerking is van hoogstaande topkwaliteit met volle eiken parketvloeren, natuurstenen tegels en een volledig uitgeruste keuken met designapparaten die voor een luxueuze uitstraling zorgen.
De leefruimtes zijn lichtrijk en open, perfect onderhouden waardoor dit pand instapklaar is. Dankzij de brede gangen, drempelloze overgangen en slimme indeling is de volledige woning rolstoelvriendelijk.
Daarnaast beschikt dit aanbod over een dubbele garagebox en een grote private kelderberging in de ondergrondse parking van het gebouw.
Alle voorzieningen bevinden zich op wandelafstand: winkels, restaurants, scholen, openbaar vervoer en historische bezienswaardigheden van Tongeren.
Beschrijving van het pand:
- Inkomhal met een verstevigde 3-puntsluiting op de voordeur
- Doorloop naar vestiaire en toilet met wasbakje en spiegel
- Vestibule (19 m²) naar leefruimte
- Stijlvolle eetkamer met ruim salon (80 m²) met volle eiken parketvloer
- Luxueuze, hyperuitgeruste keuken ( 35 m²) met marmeren vloer, voorzien van natuurstenen werkbladen, 3 spoelbakken, inductiekookplaat, Atag inbouwtoestellen en ingebouwde wijnkoelkast en 2 ovens met warmhoudlades.
- Aansluitende werkkeuken met voorzieningen voor wasmachine en droogkast
- Corridor met inbouwkasten naar de slaapvertrekken
- Bureau/slaapkamer (13 m²) met inbouwkasten
- Technische ruimte
- Slaapkamer (25 m²) met ensuite badkamer (10 m²) met wastafel, spiegel, toilet en ruime inloopdouche
- Royale master suite van 34 m², ingericht met een geïntegreerd televisiesysteem, subtiel verzonken in een maatwerkkast, en aansluitend een luxueuze inloopdressing van 15 m², volledig op maat ontworpen en voorzien van veel bergruimte
- Exclusieve wellnessbadkamer. Centraal prijkt een stijlvol vrijstaand bad met geïntegreerde overloopfunctie. Uniek aan dit ontwerp is dat het bad eenvoudig kan worden omgevormd tot een massagetafel,ideaal voor wie een spa-ervaring aan huis wenst. De royale dubbele inloopdouche met glazen wanden en twee afzonderlijke badkamermeubels met ingebouwde lavabo’s maken het helemaal af.
- Aansluitend aan de mastersuite en badkamer is er een buitenterras van 12 m², zuidgericht en betegeld
Interesse? Bel 0469/430998 of mail ine@immovadis.be
Met een woonoppervlakte van 315 m² en een ruim buitenterras combineert dit penthouse stijlvol wonen met optimaal comfort. De afwerking is van hoogstaande topkwaliteit met volle eiken parketvloeren, natuurstenen tegels en een volledig uitgeruste keuken met designapparaten die voor een luxueuze uitstraling zorgen.
De leefruimtes zijn lichtrijk en open, perfect onderhouden waardoor dit pand instapklaar is. Dankzij de brede gangen, drempelloze overgangen en slimme indeling is de volledige woning rolstoelvriendelijk.
Daarnaast beschikt dit aanbod over een dubbele garagebox en een grote private kelderberging in de ondergrondse parking van het gebouw.
Alle voorzieningen bevinden zich op wandelafstand: winkels, restaurants, scholen, openbaar vervoer en historische bezienswaardigheden van Tongeren.
Beschrijving van het pand:
- Inkomhal met een verstevigde 3-puntsluiting op de voordeur
- Doorloop naar vestiaire en toilet met wasbakje en spiegel
- Vestibule (19 m²) naar leefruimte
- Stijlvolle eetkamer met ruim salon (80 m²) met volle eiken parketvloer
- Luxueuze, hyperuitgeruste keuken ( 35 m²) met marmeren vloer, voorzien van natuurstenen werkbladen, 3 spoelbakken, inductiekookplaat, Atag inbouwtoestellen en ingebouwde wijnkoelkast en 2 ovens met warmhoudlades.
- Aansluitende werkkeuken met voorzieningen voor wasmachine en droogkast
- Corridor met inbouwkasten naar de slaapvertrekken
- Bureau/slaapkamer (13 m²) met inbouwkasten
- Technische ruimte
- Slaapkamer (25 m²) met ensuite badkamer (10 m²) met wastafel, spiegel, toilet en ruime inloopdouche
- Royale master suite van 34 m², ingericht met een geïntegreerd televisiesysteem, subtiel verzonken in een maatwerkkast, en aansluitend een luxueuze inloopdressing van 15 m², volledig op maat ontworpen en voorzien van veel bergruimte
- Exclusieve wellnessbadkamer. Centraal prijkt een stijlvol vrijstaand bad met geïntegreerde overloopfunctie. Uniek aan dit ontwerp is dat het bad eenvoudig kan worden omgevormd tot een massagetafel,ideaal voor wie een spa-ervaring aan huis wenst. De royale dubbele inloopdouche met glazen wanden en twee afzonderlijke badkamermeubels met ingebouwde lavabo’s maken het helemaal af.
- Aansluitend aan de mastersuite en badkamer is er een buitenterras van 12 m², zuidgericht en betegeld
Interesse? Bel 0469/430998 of mail ine@immovadis.be
| Vastgoed ID | 86392981 |
|---|---|
| Vraagprijs | € 945.000 |
| Woningtype | Penthouse |
| Woonopp. | 300 m² |
| Terrasopp. | - |
| Perceelopp. | 300 m² |
| Bouwjaar | 2008 |
| Renovatiejaar | - |
| Slaapkamers | 3 |
| Badkamers | - |
| Garages | 1 |
| Douchekamers | - |
| Kadastraal Inkomen | - |
|---|---|
| EPC | 147 kWh/m² |
| Unieke code | 9143 |
| Overstromingsgebied | Niet medegedeeld |
| Stedenbouwkundige vergunning | - |
| Verkavelingsvergunning | - |
| Stedenbouwkundige bestemming | Andere |
| Voorkooprecht | - |
| Dagvaarding | Ja |
| Rechterlijke beslissing | Ja |
Immo Vadis Tipstraat 116 2, 3740 Bilzen-Hoeselt
- Telefoon:+32.89.44.91.92
- Email:info@immovadis.be
- Website:immovadis.be/nl/




























