Karaktervolle villa in Beveren
Gentseweg 177, 9120 Beveren—Ref. 1438451
Te koop: Karaktervolle villa in Beveren, Oost-Vlaanderen, gelegen aan de Gentseweg. Deze woning uit 1979 biedt veel leefruimte en een praktische indeling, ideaal voor grote gezinnen of wie houdt van comfort. Met vijf slaapkamers, twee badkamers en een royale living is er plaats voor iedereen. De aanwezigheid van een veranda en een binnenzwembad maken dit huis extra bijzonder.
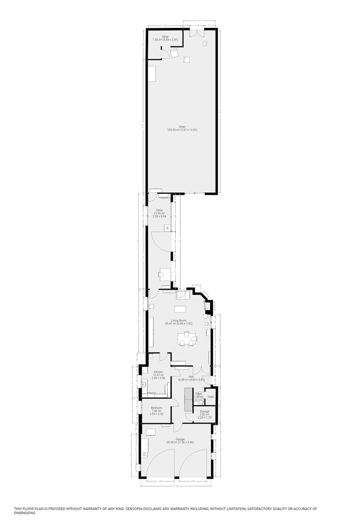
De woning ligt op een goed bereikbare locatie, dicht bij voorzieningen en met vlotte verbindingen naar omliggende steden. De grote garage en meerdere bergingen zorgen voor voldoende opbergruimte.
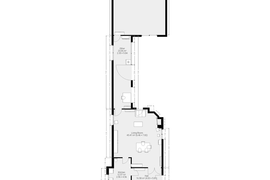
Belangrijkste ruimtes:
• Ruime woonkamer (45,41 m²) met veel lichtinval
• Volledig ingebouwde keuken (12,57 m²) met ingemaakte kasten
• 5 slaapkamers variërend van 7,44 m² tot 32,54 m²
• 2 badkamers, één met ligbad en één met douche
• Veranda (23 m²) voor extra leefruimte
• Wellnessruimte met zwembad
• Garage (39,38 m²) met berging
Troeven:
• 5 mogelijke slaapkamers, 2 badkamers
• Binnenzwembad met aparte technische ruimte
• Tennisveld achteraan de woning
Neem vandaag nog contact op voor een bezoek.
JOUW DROOMHUIS. ZO GEVONDEN!
| Vastgoed ID | 1438451 |
|---|---|
| Vraagprijs | € 799.000 |
| Woningtype | Villa |
| Woonopp. | 314 m² |
| Terrasopp. | - |
| Perceelopp. | 2.136 m² |
| Bouwjaar | 1979 |
| Renovatiejaar | - |
| Slaapkamers | 5 |
| Badkamers | 2 |
| Garages | 1 |
| Douchekamers | - |
| Kadastraal Inkomen | € 2.501 |
|---|---|
| EPC | 361 kWh/m² |
| Unieke code | 20221116-0002713927-RES-2 |
| Overstromingsgebied | Niet gelegen in gevoelig gebied |
| Stedenbouwkundige vergunning | - |
| Verkavelingsvergunning | Nee |
| Stedenbouwkundige bestemming | Woongebied |
| Voorkooprecht | Nee |
| Dagvaarding | - |
| Rechterlijke beslissing | - |
ERA Wonen Gentse Baan 45A, 9100 Sint-Niklaas
- Telefoon:+32.3.296.37.69
- Email:wonen@era.be
- Website:www.era.be/nl/era-wonen
- Maandag - VrijdagOpen van 09.00 - 12.00 – 13.00 - 18.00
- Zaterdag Enkel op afspraak
- Zondag Gesloten
Makelaar
































