NET VERKOCHT **** Villa Rayfira - Normandic Style # cottage - voormalige dokterspraktijk / véél potentieel !
Victor Van Sandelaan 16, 9230 Wetteren—Ref. PL.25.247
NET VERKOCHT ..... Villa "Rayfira" met cottage-invloeden, in 1923-1924 gebouwd naar een ontwerp van architect A. Coppe (Gent) en later aangepast naar de plannen van architect Ch. Hoge (Gent).
" Vrijstaande woning in mooie omringende deels beboomde tuin, afgesloten van de straat door smeedijzeren hek tussen bakstenen pijlers met witte banden. Imposant oranjebakstenen volume op oorspronkelijk H-vormig grondplan, bestaande uit vijf traveeën en twee bouwlagen op kelderverdieping, onder haaks op elkaar geplaatste leien schilddaken voorzien van vorstkam en bekroond door enkele opvallende schoorsteenpartijen. "
Kortom, een eigendom met karakter en geschiedenis. Deze eigendom heeft een 'héél goede stoel' en structuur. Waarin een schatkamer van authentieke & waardevolle elementen te ontdekken zijn en voor 100% kunnen behouden worden tijdens een ' intelligente ' renovatie & modernisering.
Ideaal project voor wie de handen uit de mouwen wenst te steken ... en deze unieke parel naar de eigen hand weet te zetten en wenst te doen herleven als vanouds ... .
Enkele richting gevende offertes zijn ter beschikking ( o.a. Van Weemaes Glas & raam renovatie ).
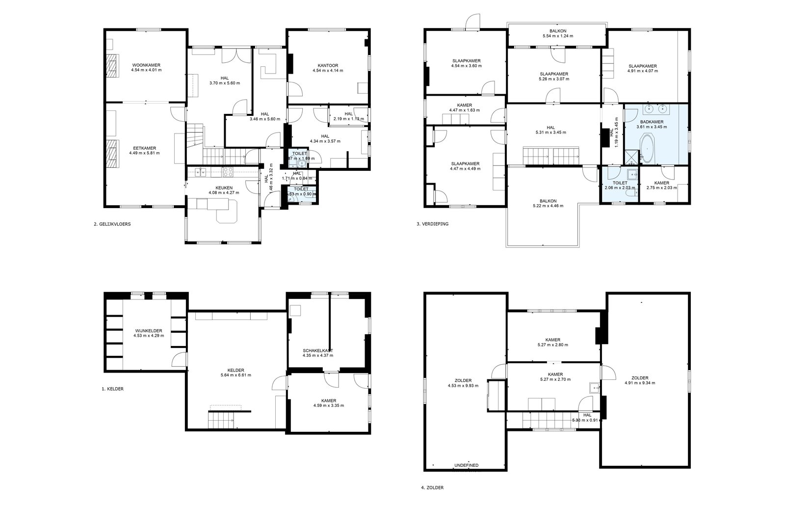
U krijgt voor uw gedane inspanningen in return een unieke eigendom met charme, karakter, uitstraling en authenticiteit. Dit alles eventueel in combinatie wonen, home office en/of een zakelijke zelfstandige activiteit. Naar eigen hand te zetten en in te delen naar eigen wensen. De zolderverdieping biedt mogelijkheden tot bijkomend 2 à 3 (slaap)kamers.
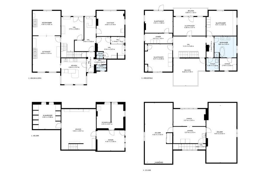
Plannen in bijlage. +/- 400 m2 bewoonbare oppervlakte. Garage/bijgebouw. Perceel van 1576m2 biedt eveneens ontwikkelingsmogelijkheden.
Wenst u meer informatie of wenst u het potentieel van deze eigendom ter plekke te komen ontdekken?
Neemt u dan contact op met Patrick Landuyt
" Vrijstaande woning in mooie omringende deels beboomde tuin, afgesloten van de straat door smeedijzeren hek tussen bakstenen pijlers met witte banden. Imposant oranjebakstenen volume op oorspronkelijk H-vormig grondplan, bestaande uit vijf traveeën en twee bouwlagen op kelderverdieping, onder haaks op elkaar geplaatste leien schilddaken voorzien van vorstkam en bekroond door enkele opvallende schoorsteenpartijen. "
Kortom, een eigendom met karakter en geschiedenis. Deze eigendom heeft een 'héél goede stoel' en structuur. Waarin een schatkamer van authentieke & waardevolle elementen te ontdekken zijn en voor 100% kunnen behouden worden tijdens een ' intelligente ' renovatie & modernisering.
Ideaal project voor wie de handen uit de mouwen wenst te steken ... en deze unieke parel naar de eigen hand weet te zetten en wenst te doen herleven als vanouds ... .
Enkele richting gevende offertes zijn ter beschikking ( o.a. Van Weemaes Glas & raam renovatie ).
U krijgt voor uw gedane inspanningen in return een unieke eigendom met charme, karakter, uitstraling en authenticiteit. Dit alles eventueel in combinatie wonen, home office en/of een zakelijke zelfstandige activiteit. Naar eigen hand te zetten en in te delen naar eigen wensen. De zolderverdieping biedt mogelijkheden tot bijkomend 2 à 3 (slaap)kamers.
Plannen in bijlage. +/- 400 m2 bewoonbare oppervlakte. Garage/bijgebouw. Perceel van 1576m2 biedt eveneens ontwikkelingsmogelijkheden.
Wenst u meer informatie of wenst u het potentieel van deze eigendom ter plekke te komen ontdekken?
Neemt u dan contact op met Patrick Landuyt
| Vastgoed ID | PL.25.247 |
|---|---|
| Vraagprijs | Op aanvraag |
| Woningtype | Villa |
| Woonopp. | 400 m² |
| Terrasopp. | - |
| Perceelopp. | 1.576 m² |
| Bouwjaar | 1923 |
| Renovatiejaar | - |
| Slaapkamers | 4 |
| Badkamers | 1 |
| Garages | 1 |
| Douchekamers | 1 |
| Kadastraal Inkomen | € 1.732 |
|---|---|
| EPC | 319 kWh/m² |
| Unieke code | |
| Overstromingsgebied | Niet gelegen in gevoelig gebied |
| Stedenbouwkundige vergunning | Nee |
| Verkavelingsvergunning | Nee |
| Stedenbouwkundige bestemming | Woongebied |
| Voorkooprecht | Nee |
| Dagvaarding | Nee |
| Rechterlijke beslissing | Nee |
Premium makelaar
PL-Real Estate Nazarethstraat 6, 9840 De Pinte
- Telefoon:+32.477.62.47.90
- Email:Patrick.Landuyt@PL-RealEstate.com
- Website:www.PL-RealEstate.com































