Exclusieve nieuwbouwvilla op ruim perceel
Kerkstraat 61A, 8670 Koksijde—Ref. 3924929
Deze exclusieve nieuwbouwvilla, gelegen in het hart van Koksijde, biedt luxe, ruimte en natuur in een perfecte harmonie. De villa is gelegen op een ruim perceel van 1809m² en biedt voldoende privacy en rust, met een prachtig open uitzicht op het landschap. De woning heeft een doordachte indeling, met grote glaspartijen die zorgen voor veel natuurlijk licht en een naadloze verbinding met de natuur.
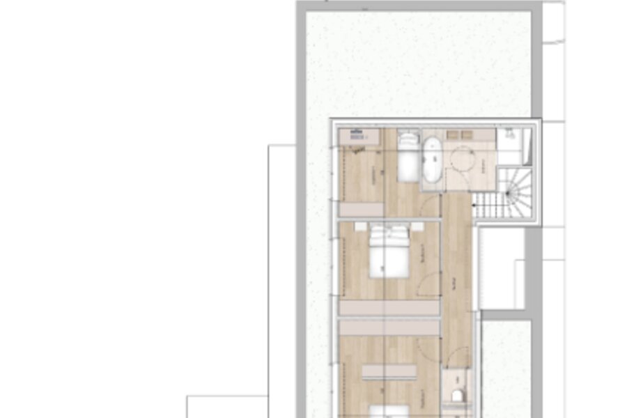
De villa is bereikbaar via een oprijlaan en omvat een ruime, lichtrijke leefruimte met open keuken, waar grote glaspartijen voor een overvloed aan natuurlijk licht zorgen en een panoramisch uitzicht bieden. Aangrenzend aan de keuken zijn er een praktische berging, garage en een gastentoilet. De masterbedroom met royale dressing en ensuite badkamer bevindt zich op het gelijkvloers, wat zorgt voor optimale privacy. De overige drie slaapkamers en een tweede badkamer zijn te vinden op de bovenverdieping.
De villa heeft een bewoonbare oppervlakte van 265 m² en ligt op slechts enkele minuten fietsen van het strand, tevens met alle nodige voorzieningen binnen handbereik.
Pluspunten:
Meer info: 0478 92 47 50
of www.home-estate.be
Vg-Gdv-Gvkr-Vv-Wg
De villa is bereikbaar via een oprijlaan en omvat een ruime, lichtrijke leefruimte met open keuken, waar grote glaspartijen voor een overvloed aan natuurlijk licht zorgen en een panoramisch uitzicht bieden. Aangrenzend aan de keuken zijn er een praktische berging, garage en een gastentoilet. De masterbedroom met royale dressing en ensuite badkamer bevindt zich op het gelijkvloers, wat zorgt voor optimale privacy. De overige drie slaapkamers en een tweede badkamer zijn te vinden op de bovenverdieping.
De villa heeft een bewoonbare oppervlakte van 265 m² en ligt op slechts enkele minuten fietsen van het strand, tevens met alle nodige voorzieningen binnen handbereik.
Pluspunten:
- 265m² bewoonbare opp – perceel van 1809m²
- Panoramisch uitzicht op een toplocatie
- 4 slaapkamers en 2 badkamers
- Zonnepanelen, warmtepomp, vloerverwarming
- Afwerking aanpasbaar aan de wensen van de koper
- Strakke architectuur, luxe afwerking, doordachte indeling
Meer info: 0478 92 47 50
of www.home-estate.be
Vg-Gdv-Gvkr-Vv-Wg
| Vastgoed ID | 3924929 |
|---|---|
| Vraagprijs | € 975.000 |
| Woningtype | Villa |
| Woonopp. | 266 m² |
| Terrasopp. | - |
| Perceelopp. | 1.809 m² |
| Bouwjaar | 2026 |
| Renovatiejaar | - |
| Slaapkamers | 4 |
| Badkamers | 2 |
| Garages | 1 |
| Douchekamers | - |
| Kadastraal Inkomen | - |
|---|---|
| EPC | - |
| Unieke code | - |
| Overstromingsgebied | Niet gelegen in gevoelig gebied |
| Stedenbouwkundige vergunning | Ja |
| Verkavelingsvergunning | Ja |
| Stedenbouwkundige bestemming | Woongebied |
| Voorkooprecht | Nee |
| Dagvaarding | Nee |
| Rechterlijke beslissing | - |
Home Estate Gavergrachtstraat 93, 9031 Drongen
- Telefoon:+324.78.92.47.50
- Email:info@home-estate.be
- Website:www.home-estate.be/nl/













