Nieuwbouwproject luxe villa te Merelbeke
Hoogstraat 26, 9820 Merelbeke—Ref. 6339891
Droom je van een nieuwe, moderne villa in een rustige, groene omgeving? Dan is dit een unieke kans voor u!
Deze stijlvolle en kwalitatieve villa is uiteraard energiezuinig (Label A) heeft een warme stijl, is doordacht en praktisch ingericht en ligt bovendien in een rustige straat op wandelafstand van de Scheldevallei, het Hollebeekpark, het Rotary-bos en kasteel Krombrugge.
INDELING:
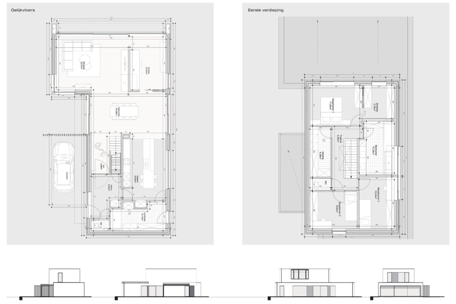
Gelijkvloers: ruime inkomhal met trap, gastentoilet met lavabo, een lichtrijke leefruimte met rechtstreekse toegang tot de tuin, gevolgd door de open keuken met annex een bureau en een praktische berging.
Verdieping: drie volwaardige slaapkamers, (1 slaapkamers met annex een grote dressing) een luxe badkamer (ligbad en inloopdouche) met een apart toilet en een grote berging.
De inrichting van de keuken en de badkamer bepaalt uzelf met een zeer ruim budget van 33.000 € voor de keuken en 12.500 € voor de badkamer!
Deze energiezuinige villa wordt uiteraard gebouwd volgens de strenge bouwvoorschriften met zonnepanelen, warmtepomp, ventilatie systeem D, HR dubbel glas in aluminium profielen, vloer-spouw- en dakisolatie, een alarmsysteem enz.
TROEF: DE LIGGING! Deze riante villa ligt op wandelafstand van scholen, openbaar vervoer en de Scheldevallei.
Het opritten complex R4, E40 en E 17 op slechts 5 km.
Verkoopprijs:
Grond: 450.000 EUR. en constructie: 705.000 EUR.
Excl. BTW, registratierechten en kosten
Wenst u meer info, de plannen en het lastenboek, bel Marianne: 0478 38 12 88
Deze stijlvolle en kwalitatieve villa is uiteraard energiezuinig (Label A) heeft een warme stijl, is doordacht en praktisch ingericht en ligt bovendien in een rustige straat op wandelafstand van de Scheldevallei, het Hollebeekpark, het Rotary-bos en kasteel Krombrugge.
INDELING:
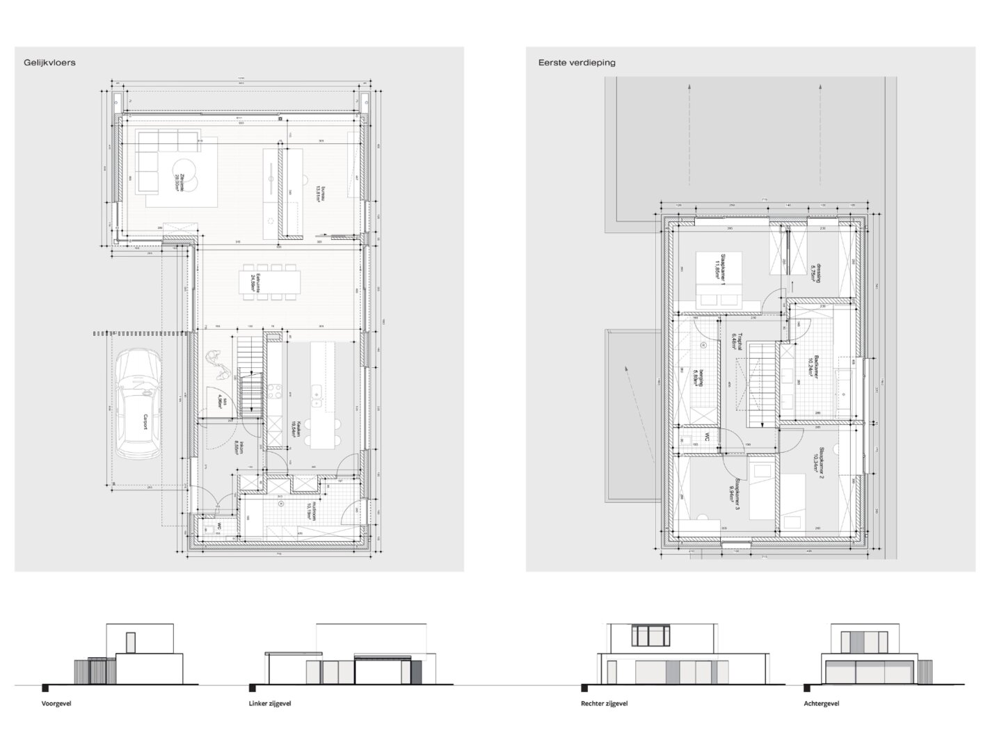
Gelijkvloers: ruime inkomhal met trap, gastentoilet met lavabo, een lichtrijke leefruimte met rechtstreekse toegang tot de tuin, gevolgd door de open keuken met annex een bureau en een praktische berging.
Verdieping: drie volwaardige slaapkamers, (1 slaapkamers met annex een grote dressing) een luxe badkamer (ligbad en inloopdouche) met een apart toilet en een grote berging.
De inrichting van de keuken en de badkamer bepaalt uzelf met een zeer ruim budget van 33.000 € voor de keuken en 12.500 € voor de badkamer!
Deze energiezuinige villa wordt uiteraard gebouwd volgens de strenge bouwvoorschriften met zonnepanelen, warmtepomp, ventilatie systeem D, HR dubbel glas in aluminium profielen, vloer-spouw- en dakisolatie, een alarmsysteem enz.
TROEF: DE LIGGING! Deze riante villa ligt op wandelafstand van scholen, openbaar vervoer en de Scheldevallei.
Het opritten complex R4, E40 en E 17 op slechts 5 km.
Verkoopprijs:
Grond: 450.000 EUR. en constructie: 705.000 EUR.
Excl. BTW, registratierechten en kosten
Wenst u meer info, de plannen en het lastenboek, bel Marianne: 0478 38 12 88
| Vastgoed ID | 6339891 |
|---|---|
| Vraagprijs | € 1.155.000 |
| Woningtype | Villa |
| Woonopp. | 270 m² |
| Terrasopp. | - |
| Perceelopp. | 940 m² |
| Bouwjaar | 2024 |
| Renovatiejaar | - |
| Slaapkamers | 3 |
| Badkamers | 1 |
| Garages | - |
| Douchekamers | - |
| Kadastraal Inkomen | - |
|---|---|
| EPC | - |
| Unieke code | - |
| Overstromingsgebied | Niet medegedeeld |
| Stedenbouwkundige vergunning | Ja |
| Verkavelingsvergunning | Ja |
| Stedenbouwkundige bestemming | Woongebied |
| Voorkooprecht | Nee |
| Dagvaarding | Nee |
| Rechterlijke beslissing | - |
Premium makelaar
Cornelis Goeman Hundelgemsesteenweg 306, 9820 Merelbeke
- Telefoon:+32.9.424.01.01
- Email:info@cornelis-goeman.be
- Website:www.cornelis-goeman.be/nl










