Lichtrijke kantoren met veel potentieel
Frankrijklei 25, 2000 Antwerpen—Ref. 5527112
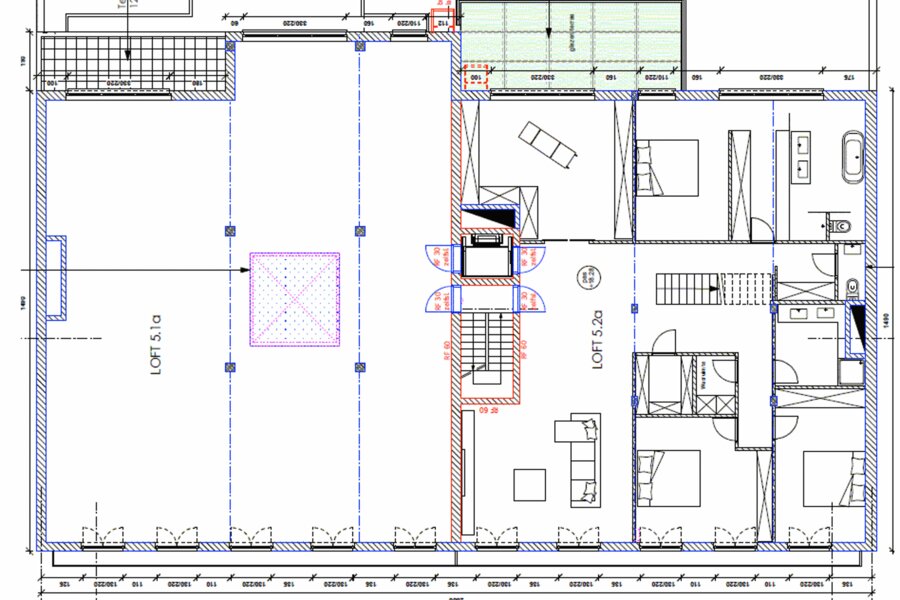
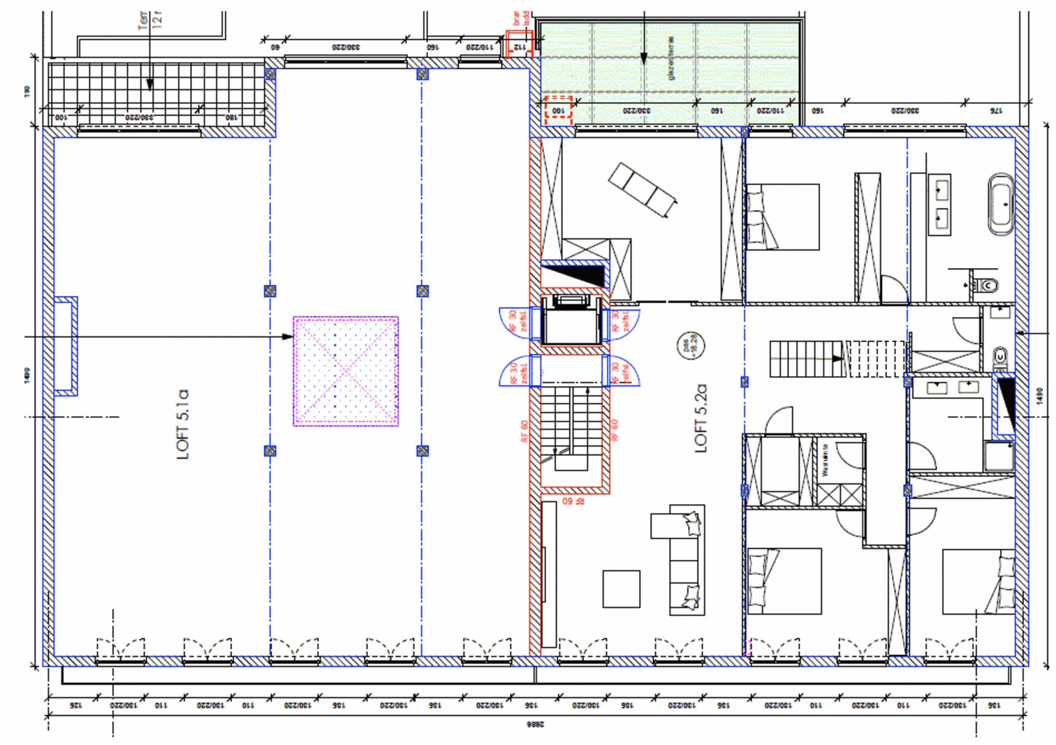
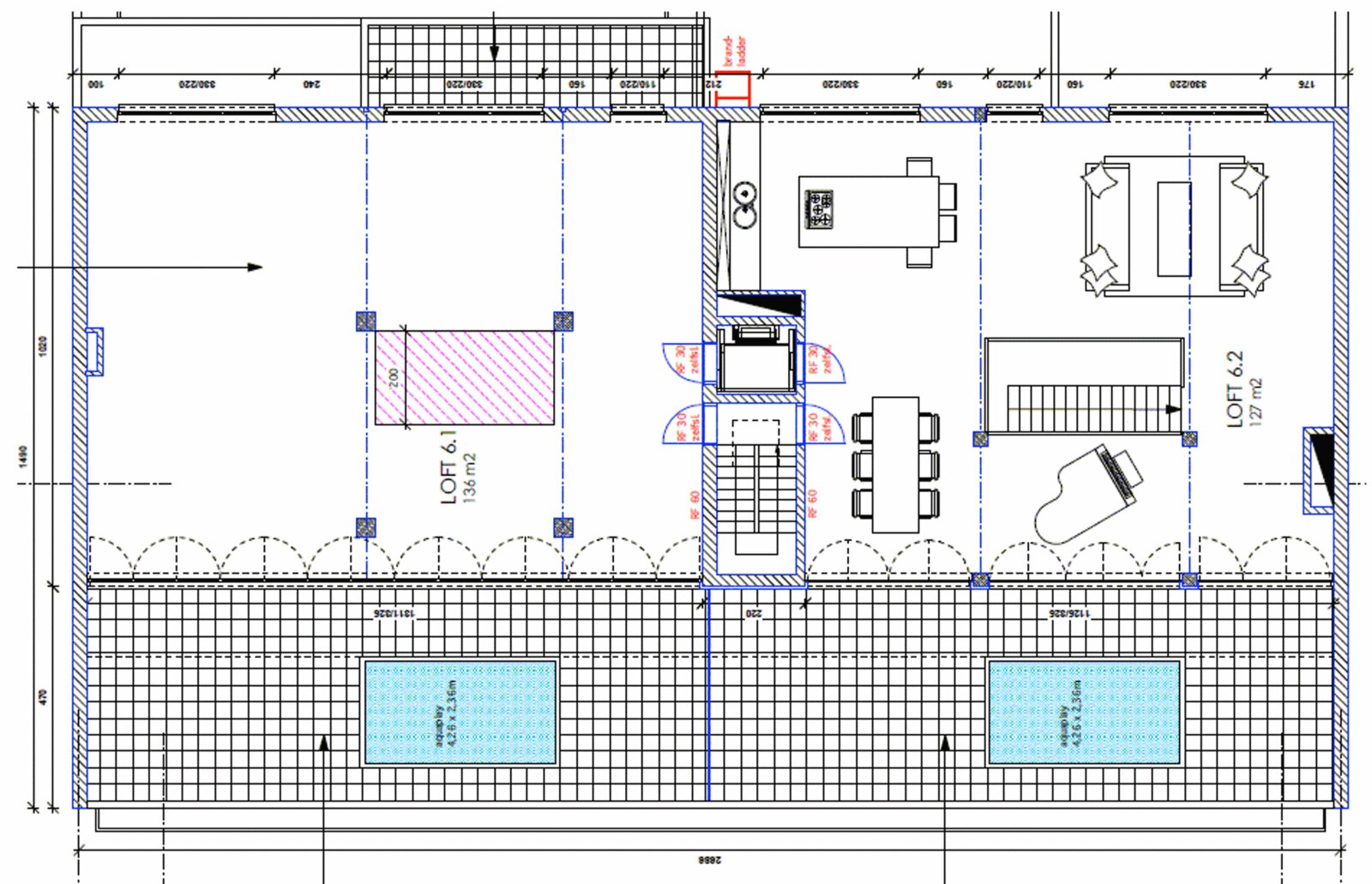
In 2008 werd dit oude schoolgebouw omgetoverd tot hoogwaardig afgewerkte appartementen genaamd “Opera Lofts". De 7 en 8ste verdiepingen werden nieuw bovenop de oude constructie gebouwd, hierdoor geniet men van moderne technieken, optimale isolatie en een nieuwe dakconstructie. De verdiepingen worden momenteel gebruikt als kantoor/showroom maar mits nodige aanpassingen en vergunningen, kan u deze kantoren ombouwen tot 2 ruime duplex appartementen of 4 kleinere units. Door de grote, open ruimtes zijn de mogelijkheden oneindig.
De kantoren zijn uitgerust met het nodige sanitair, alsook een volledig geïnstalleerde keuken met aangrenzende eetruimte. Eveneens kan men heerlijk genieten van de avondzon op de grote west-georiënteerde terrassen.
De kantoren worden momenteel met een mooi rendement verhuurd tot en met december 2026. Bent u geïnteresseerd in een goede investering of project, aarzel dan niet om ons te contacteren.
Eén van de grootste troeven van het appartement is zonder twijfel de ligging. Met de verschillende winkelstraten, culturele trekpleisters en het openbaar vervoer in de buurt, zal u, u zeker geen moment vervelen. Een wandeling op zondag naar de Vogelenmarkt, een voorstelling in “het Elckerlyk Theater” of shoppen op de Meir? Dit allemaal op wandelafstand. Door de nabijheid van het centraal station, springt u eveneens in “no time” de trein op. Ook op de terrassen geniet u van de fantastische ligging, daar valt u meteen in een zwijm voor het uitzicht over de hele stad.
De kantoren zijn uitgerust met het nodige sanitair, alsook een volledig geïnstalleerde keuken met aangrenzende eetruimte. Eveneens kan men heerlijk genieten van de avondzon op de grote west-georiënteerde terrassen.
De kantoren worden momenteel met een mooi rendement verhuurd tot en met december 2026. Bent u geïnteresseerd in een goede investering of project, aarzel dan niet om ons te contacteren.
Eén van de grootste troeven van het appartement is zonder twijfel de ligging. Met de verschillende winkelstraten, culturele trekpleisters en het openbaar vervoer in de buurt, zal u, u zeker geen moment vervelen. Een wandeling op zondag naar de Vogelenmarkt, een voorstelling in “het Elckerlyk Theater” of shoppen op de Meir? Dit allemaal op wandelafstand. Door de nabijheid van het centraal station, springt u eveneens in “no time” de trein op. Ook op de terrassen geniet u van de fantastische ligging, daar valt u meteen in een zwijm voor het uitzicht over de hele stad.
| Vastgoed ID | 5527112 |
|---|---|
| Vraagprijs | € 2.500.000 |
| Woningtype | Appartement |
| Woonopp. | 749 m² |
| Terrasopp. | - |
| Perceelopp. | - |
| Bouwjaar | 2008 |
| Renovatiejaar | - |
| Slaapkamers | 1 |
| Badkamers | - |
| Garages | 2 |
| Douchekamers | 668 |
| Kadastraal Inkomen | - |
|---|---|
| EPC | - |
| Unieke code | UC:2907403 |
| Overstromingsgebied | Niet medegedeeld |
| Stedenbouwkundige vergunning | Ja |
| Verkavelingsvergunning | Nee |
| Stedenbouwkundige bestemming | Andere |
| Voorkooprecht | Nee |
| Dagvaarding | - |
| Rechterlijke beslissing | - |
Premium makelaar
Engel & Völkers Antwerpen-Centrum Leopoldstraat 49, 2000 Antwerpen
- Telefoon:+32.3.233.24.00
- Email:Antwerpencentrum@engelvoelkers.com
- Website:www.engelvoelkers.com/belgium
- Maandag - ZaterdagOpen van 10.00 - 18.00
- Zondag Gesloten
Makelaar






















