VOLLEDIG AFGEWERKTE EN ENERGIEZUINIGE NIEUWBOUWWONING TE SCHAFFEN
Kleinbergstraat 39, 3290 Diest—Ref. 3104
Volledig afgewerkte en energiezuinige nieuwbouwwoning op perceel van 4are84ca te Schaffen.
Foto's van huidige toestand dewelke in de komende periode nog volledig zal afgewerkt worden.
Belangrijkste troeven:
- Centrale doch zeer rustige ligging
- Kwalitatief en volledig afgewerkt volgens lastenboek
- Keuken volledig door koper te kiezen volgens budget in lastenboek
- Praktisch ingedeelde 262m² bewoonbare oppervlakte!
- 3 tot 5 slaapkamers mogelijk
- Daikin Warmtepomp
- Zonnepanelen (3600 Wp)
- Buitenaanleg en omheining inbegrepen
- Oplevering Augustus 2026
- Vaste trap naar zolder
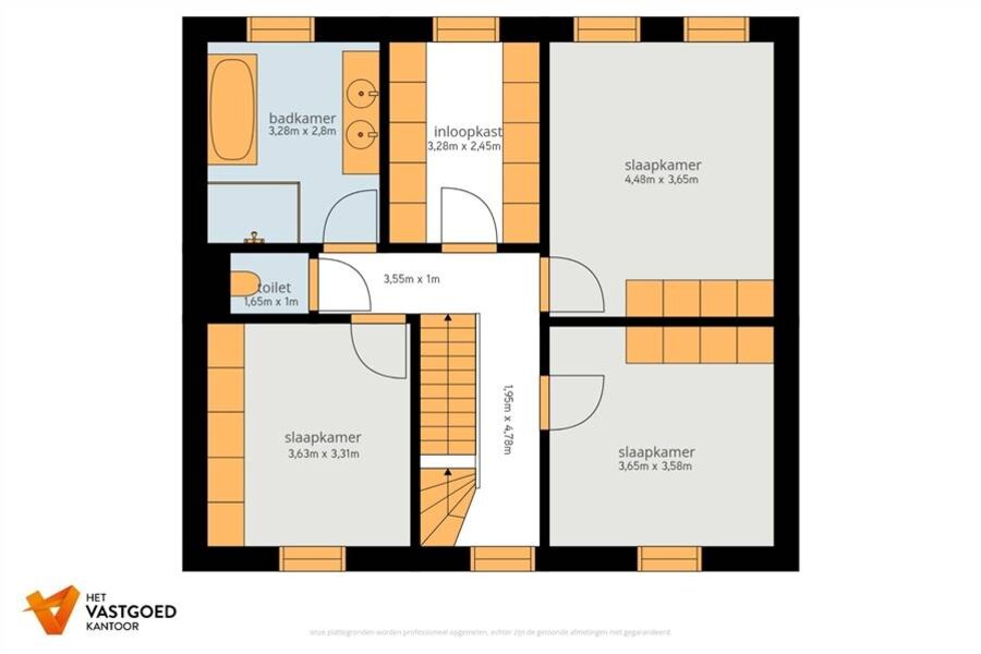
Bekijk zeker ook de grondplannen met de afmetingen. Zo krijgt u van thuis uit al een perfect beeld van wat deze woning te bieden heeft!
Wenst u meer info of een vrijblijvende bezichtiging, contacteer dan ons kantoor op het nummer 011 85 15 15 en wij helpen u graag verder.
Foto's van huidige toestand dewelke in de komende periode nog volledig zal afgewerkt worden.
Belangrijkste troeven:
- Centrale doch zeer rustige ligging
- Kwalitatief en volledig afgewerkt volgens lastenboek
- Keuken volledig door koper te kiezen volgens budget in lastenboek
- Praktisch ingedeelde 262m² bewoonbare oppervlakte!
- 3 tot 5 slaapkamers mogelijk
- Daikin Warmtepomp
- Zonnepanelen (3600 Wp)
- Buitenaanleg en omheining inbegrepen
- Oplevering Augustus 2026
- Vaste trap naar zolder
Bekijk zeker ook de grondplannen met de afmetingen. Zo krijgt u van thuis uit al een perfect beeld van wat deze woning te bieden heeft!
Wenst u meer info of een vrijblijvende bezichtiging, contacteer dan ons kantoor op het nummer 011 85 15 15 en wij helpen u graag verder.
| Vastgoed ID | 3104 |
|---|---|
| Vraagprijs | € 520.000 |
| Woningtype | Villa |
| Woonopp. | 262 m² |
| Terrasopp. | - |
| Perceelopp. | 484 m² |
| Bouwjaar | - |
| Renovatiejaar | - |
| Slaapkamers | 3 |
| Badkamers | - |
| Garages | 1 |
| Douchekamers | - |
| Kadastraal Inkomen | - |
|---|---|
| EPC | - |
| Unieke code | - |
| Overstromingsgebied | - |
| Stedenbouwkundige vergunning | Ja |
| Verkavelingsvergunning | Ja |
| Stedenbouwkundige bestemming | Woongebied |
| Voorkooprecht | Nee |
| Dagvaarding | Nee |
| Rechterlijke beslissing | - |
Het Vastgoedkantoor Koolmijnlaan 147, 3580 Beringen
- Telefoon:+32.14.39.99.99
- Email:info@hetvastgoedkantoor.be
- Website:www.hetvastgoedkantoor.be/nl/

































