Te koop in Meise, ruime woning met 5 kamers.
Akeleilaan 4, 1860 Meise—Ref. 1468132
Te koop in Meise: ruime woning met 5 slaapkamers en bureel, ideaal voor grote gezinnen of voor en vrij beroep.
Deze woning biedt 5 kamers en is ideaal voor wie wonen wil combineren met een vrij beroep dankzij de aparte wachtzaal en praktijkruimte. De ligging is centraal en rustig, met scholen, winkels, park en openbaar vervoer op wandelafstand. Bovendien is er een vlotte verbinding naar de autostrade richting Brussel en Antwerpen. Andere dorpen zoals Wolvertem, Grimbergen en Kapelle-op-den-Bos zijn zeer makkelijk bereikbaar.
Belangrijkste ruimtes:
• Ruime keuken (16 m²) met dubbele spoelbak, vaatwasser, keramische kookplaat, oven, koelkast en dampkap.
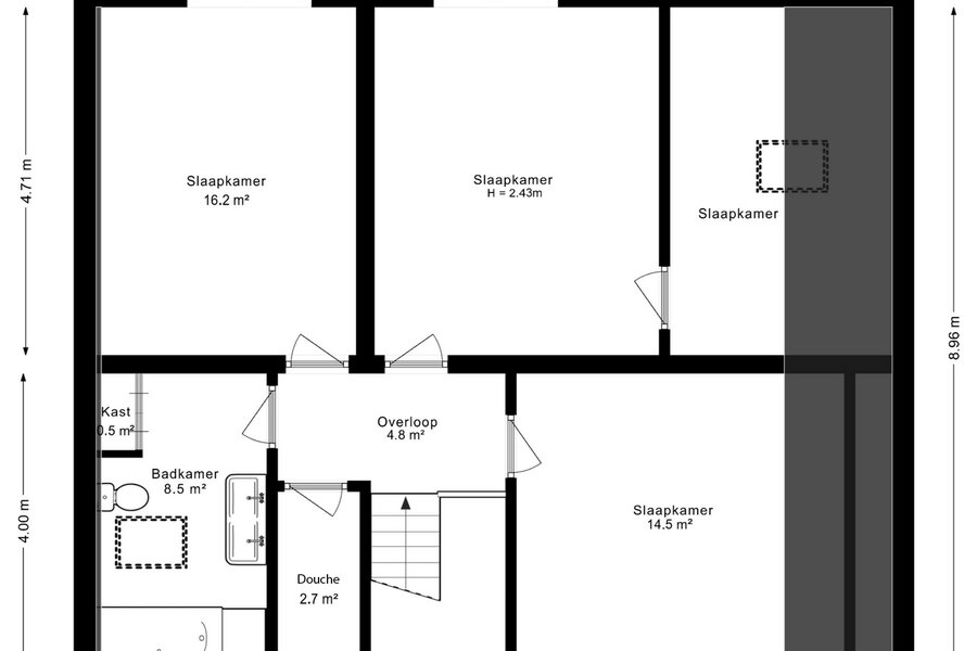
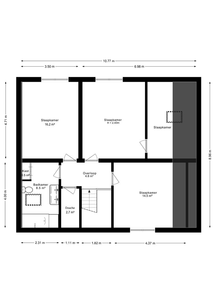
• 5 slaapkamers met veel lichtinval.
• Bureel
• Dressing voor extra opbergruimte.
• 2 badkamers: één met douche, één met ligbad, toilet, dubbele wastafel en ingemaakte kasten.
• Garage (48 m²) met automatische sectionale poort, verlichting en verwarmingsketel.
• 2 aparte toiletten met handenwasser.
Troeven:
• 5 kamers en een bureel, (mogelijkheid voor vrij beroep).
• Centraal en rustig gelegen, openbaar vervoer en winkels op wandelafstand.
• Gemakkelijke verbinding met autostrade richting Brussel en Antwerpen.
Wens je een bezoek? Contacteer dan ERA LEUS & TOYE via 02/335.11.12 en plan een afspraak met Thierry Van Campenhout.
| Vastgoed ID | 1468132 |
|---|---|
| Vraagprijs | € 675.000 |
| Woningtype | Villa |
| Woonopp. | 300 m² |
| Terrasopp. | - |
| Perceelopp. | 666 m² |
| Bouwjaar | 1996 |
| Renovatiejaar | - |
| Slaapkamers | 5 |
| Badkamers | 2 |
| Garages | 1 |
| Douchekamers | - |
| Kadastraal Inkomen | € 2.657 |
|---|---|
| EPC | 215 kWh/m² |
| Unieke code | 20260129-0003786641-RES-1 |
| Overstromingsgebied | Niet gelegen in gevoelig gebied |
| Stedenbouwkundige vergunning | Ja |
| Verkavelingsvergunning | Nee |
| Stedenbouwkundige bestemming | Woongebied |
| Voorkooprecht | Nee |
| Dagvaarding | Nee |
| Rechterlijke beslissing | - |
ERA Leus & Toye Parklaan 28, 1930 Zaventem
- Telefoon:+32.2.725.20.02
- Email:leus@era.be
- Website:www.era.be/nl/era-leus-vastgoed



























